新房装修,设计真的很重要,一个好的设计方案可以发挥空间的最大价值,让日常生活更轻松舒适。今天分享的是一套86㎡的装修案例,房屋坐落于深圳,原本的两房格局,经过设计改造,不仅实现三房,还拥有衣帽间。听起来就觉得不可思议,别着急一起看看装修结果吧!(设计:陈道贵室内设计工作室)

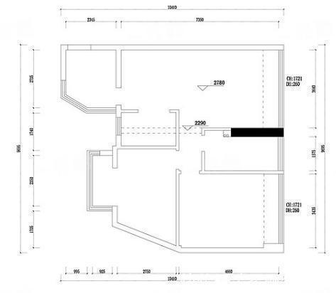
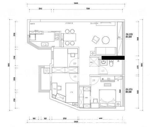
原户型结构分析:建面86㎡的两房格局,入户太大空间过于浪费,厨房太小使用不便,儿童房不大空间异形,此外过道直冲主卧房门。

装修布置图,改造分析:1、重新规划入户,提高空间利用率,合理的空间分割,实现玄关和厨房功能;2、原有厨房改造成卧室,拆除和儿童房之间的隔墙,利用收纳柜做隔断;3、改变主卧进门方向,避免过道直冲房门。格局变化后实现主卧衣帽间功能,同时过道也多了一组收纳柜。

改造后的入户门厅,空间相比之前狭小很多,但实用性一点不差。储物和留白比例恰到好处,简洁又实用。门把手和挂钩选择了黑色,利用白色背景衬托,沉稳大方让门厅变得简单美好。

合理的空间分割,将原本宽敞的入户空间划分为门厅和厨房,鞋柜和玻璃门结合做隔断,既保证了门厅收纳,又兼顾了采光通透。门厅采用无主灯设计,高度更统一,照明效果也更舒适均匀。


入户阳台改造的厨房,不规则的橱柜设计,弥补了户型的缺陷,良好的采光提高了视觉宽敞效果。嵌入式厨房电器,美观实用。

隐藏在拐角的餐厅,简易实用又不缺乏收纳。一组通高的餐边柜,使得餐厅杂物得到合理的收纳。简易造型的桌椅,自然的纹理、柔和的色泽,让人感受到自然的气息。餐厅墙面设置了软木墙板,可以记录生活美好时刻也可以留言。线条感十足的吊灯,暖色调的灯光,为餐厅增添了一抹温馨。


客厅,灰色纹理的瓷砖覆盖整个墙面与地面,搭配柔和的家具,视觉上不单调,也不会太过冰冷。靠窗设置了一排地柜,可坐可躺还增加了收纳。


过道尽头利用一幅抽象画装饰,增添一丝艺术气息让空间不单调。格局变化后,过道增加了一组转角收纳柜,与墙面完美的结合,丝毫不影响美观。


卫生间大理石的洗手台与墙面宛如一体,洗手台一直延伸到马桶上方,可以用于收纳,不需要再单独安装纸巾盒。磨砂玻璃门做隔断,引入光线又提高私密。
推荐阅读
- 屋主|56㎡小户型老房改造,小而美的设计!
- 现代风|168㎡现代风,带着浓郁的归属感与愉悦感
- 深色|155㎡简约风,承载着三代人的生活,不花哨让家务少一半
- 混淆感|146㎡北欧经典白色三居室,诠释令人心醉的优雅
- 大悦城|家里这两个地方别漏了贴瓷砖,许多人为了省钱,入住就后悔了
- 饱和度|173㎡轻奢新中式,古典和现代的碰撞,唯美浪漫!
- 背景墙|97㎡现代风,以时尚打造空间,以新颖突出特点
- 地板|160㎡四居室,玄关比我家卧室都大,这才是真正的低调奢华有内涵
- 棚户区改造|开盘预告|合肥又有6盘要加推,均价1.39-2.54万/㎡全都有
- 小房间|参观140㎡大婚房,朋友都夸餐边柜有档次,我却更喜欢主卧的飘窗
