“围合式”布局,在新房设计中,相信很多朋友都不陌生,就是空间采用弧形结构来设计,或者家具居中摆放;从而使空间的动线更加自由,视觉上更显宽敞大气。不过这种布局,一般在大户型中比较常见,小户型由于空间面积受限,很少会有人这样做。
那么这种围合式布局,能不能在小户型中实现呢?其实是可以的,并且效果会更好。比如本期带来的这套案例,餐厅及通道这块,就采用围合式来布局的,非常巧妙,大家也可以来参考下。
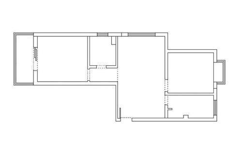
平面结构图

新房面积82㎡,标准的两室两厅一厨一卫户型,常住人口只有屋主夫妇两人,外加几只狗狗。原户型规划比较中规中矩,不过由于屋主比较喜欢私密性设计,再结合客餐厅属于一体化结构,所以在空间上,也进行了比较大的改动,以便重新来定义空间的动线。
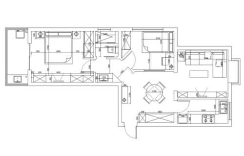
平面方案图

空间布局改造如下
1、将客厅与次卧来个大对调,提高客厅的私密性,避开入户即是客餐厅的尴尬。
2、缩小卫生间的面积,将台盆独立在外,形成干湿分离结构,并使小过道更加宽敞。
3、次卧与过道之间的墙体,采用45度来设计,让餐厅形成围合式布局,增加空间感。
4、主卧电视墙做一排大衣柜,并在台盆旁边做了一个三角收纳柜,提高储物能力。
餐厅
【 小户型|看了她家,才发现围合式布局,并不是大户型专属,小户型效果更好】

进门就是餐厅,由于通往卧室的小过道墙体改成了45度,整个空间差不多形成了围合式结构。同时,为了符合空间的统一性,选择圆形的餐桌居中摆放,也非常的应景,且增加了动线的流畅性,避免一进门就给人一种拥堵感。
鞋柜与餐边柜以组合柜呈现,不仅分别解决了基本的生活需求,也再次保证了空间的工整性,且不会对通道动线产生影响。

为了保留客厅的私密性,以空间对调的方式来布局,虽说打破了原有的客餐厅一体化优势,但也让家里的空间划分更加明显了,且不会影响到空间感及采光。而在空间色调搭配上,以浅色的墙面来搭配深色的家具,则透露出了一种美式小清新,营造出了非常舒适的空间感。
客厅

电视背景墙采用装饰柜来设计,可以起到不错的收纳功能。细腻的线条装饰,也衬托出了明显的层次,既实用又美观。

沙发背景墙满刷上浅灰色乳胶漆,既干净且与顶部有了明显的对比。深褐色的布艺沙发,以及原木色的茶几,则突显出了浓浓的韵味。考虑到客餐厅的面积比较小,选择壁挂式空调,既节省空间,也能保证基本的需求。更何况,客厅空调的使用率,在生活中也是最低的,所以也并没有必要配置柜机。
厨房

墙地一体的复古瓷砖,再次呼应出了美式风,白色的L形橱柜,则充分利用空间,且方便卫生打理。
推荐阅读
- 屋主|56㎡小户型老房改造,小而美的设计!
- 小钱|游点好笑!收手机的新方式,一抓一个准!这老师怕是柯南看多了?
- 大门|房子大门万万不能朝这地方开,师傅看了摇头,怪不得我家越住越穷
- 公示|一处体育中心项目、一处小型口袋公园!市北两项目规划公示,配套升级
- 碧桂园|小城市的房住不炒,遇上返乡置业
- 小户型|发现丈夫赠人房产 妻子怒讨买房款
- 小房间|参观140㎡大婚房,朋友都夸餐边柜有档次,我却更喜欢主卧的飘窗
- 卫生间|什么才叫好户型?来看看这5个标准,你家房子符不符合?
- 修建|精选10套三层户型图纸,占地面积均不足百平,尤其适合新农村修建
- 楼层|对于买房选楼层,一旦你忽视这5件小事,就只能买到“垃圾楼层”
