
装修房子,多数没有经验的人都会忍不住询问一下别人的意见,请教问题是好事,但切记不要因为别人的意见影响了你本身的决定。这位女屋主在装修时,就非常有远见,同样是缺乏经验的第一次装修,她向别人请教装修知识和意见的同时,也会理性的保留自己的的设计想法。
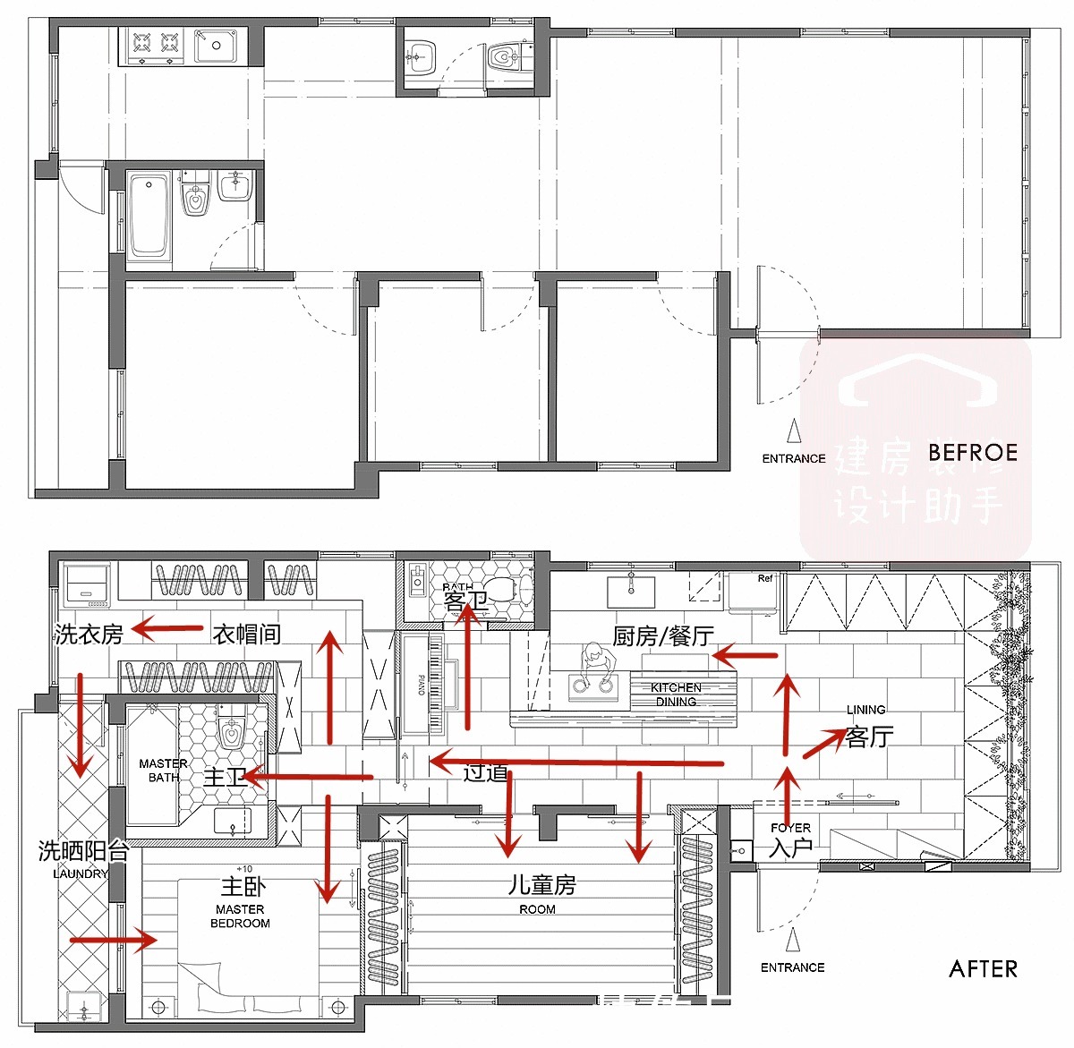
别人都很反对她去掉客厅,她最终还是坚持舍弃客厅,并且把全屋的空间都利用到极致。入住之后一家人都特别满意。这绝不是为了标新立异做的设计,而是真正契合自己生活诉求做的设计。其实现在舍弃客厅的家也越来越多了,如果你住过这样的房子,就会发现:实用性只会增加,不会减少!房屋情况简介这套房子的使用面积有100㎡(数据不含公摊),原户型是一个标准的三室两厅一厨两卫格局。三个卧室都极小,没有单独门厅,整个餐厅区很狭长,不好利用。
▲设计图前后对比考虑到家里有四口人,两个大人两个幼儿,对空间休闲功能、收纳功能需求较高,结合房屋本身条件作出如下改造:做“舍弃客厅”设计,不买成品沙发茶几,直接以定制卡座代替。两个很小的卧室打通,改成一个大卧室,以柜子代替隔墙,收纳倍增。厨房移到餐厅区域,设置超大餐厨一体化空间。均匀餐厅空间,在客卫门口改出一个“过道琴房”。把原来的厨房和剩余餐厅的面积融合,打造成附属主卧的超大衣帽间,兼顾洗衣房。屋内实景白色的入户半透明屏风是可以左右推拉的,遮挡入户视线减轻突兀感的同时,又不会影响家人进出,划分出玄关空间的同时,“隔而不断”也让整个设计更为灵动有趣。
▲可移动屏风电视机平时不常看,使用时其实也主要是听声音,增加生活气息而已。所以不必考虑常规的观影视角,直接用鞋柜代替电视柜,同时还解决了门厅区域的收纳问题。
▲起居室大数据告诉我们,对现代的多数家庭而言,客厅的闲置率越来越高了,人们内心富足后,根本不在意一个客厅装修的效果是否能为自己充面子,而是真正理性的考虑到自身的居住诉求。
房子贵,房屋面积有限,客厅空间最好的利用方式,就是“舍弃客厅功能”,屋主家就是如此,改造后,这个主空间变成了真正意义上的起居室。
这是一个没有被严格定义功能的空间,没有成品的沙发,没有围合式的观影格局。当你需要陪伴孩子时,它是“游乐园”。当你需要阅读时,它是休闲书房。当你需要会客时,它是一个围坐畅谈的娱乐区。卡座完美利用了整个空间的边角区域,减少卫生死角,更好打理清洁。辅助抱枕、软垫,一样能当沙发舒适入座。关键是,卡座内部收纳了孩子的超多玩具,以此保证储物机能充足,不必担心杂物过多导致的凌乱。
粉绿色的背景墙自然清新,和木色卡座搭配在一起,超完美,加之绿植的点缀和呼应,太美了,整体呈现的轻松气息让人超解压。地面铺设地砖是为了好打扫,平时都会再铺上一层地毯,辅以懒人豆袋点缀,方便孩子落座玩耍。
推荐阅读
- 客厅|参观向华强和陈岚的豪宅,房子层高太矮了,住着不压抑吗
- 亮点|等了6个月终于能晒晒新房了,都挺满意的,客厅是最大的亮点
- 庭院|取消客厅三件套,只摆一张大长桌,79㎡的家简洁质朴,太满意了
- 餐厅|这套新房真有创意,客厅改主卧,电视背景墙后面设吧台!
- 装修|越来越多人阳台不装推拉门了,如今流行将阳台包进客厅,太聪明了
- 客厅|有钱人从不在家里放这4样东西,暗喻越住越穷,有钱人都会避开
- 隔断|112㎡清新北欧风,客厅砌个半墙隔出一间书房,2居变3居真实用
- 客厅|西安一对夫妻在客厅打羽毛球,两人水平不相上下,网友:房子够大
- 客厅|住建部部长:房子是用来住的,不是用来炒的
- 客厅|37㎡独单光改水电就1万块,拆砸也3000多,老房子改造真费钱
