明珠湾区起步区规划图
截至目前,横沥岛已有葛洲坝地产、美的、旭辉、深业、建发、绿城、星河、南沙城投、越秀、中铁建10家房企入驻。
而深业集团在广州的第二个项目便深入横沥岛,可窥其之“野心”。
当然,能力要配得上野心,占据了“好地段”,也需要“好产品”加持。
03
主推建面约100-180㎡三至四房
吹风价为3.7-3.9万/㎡
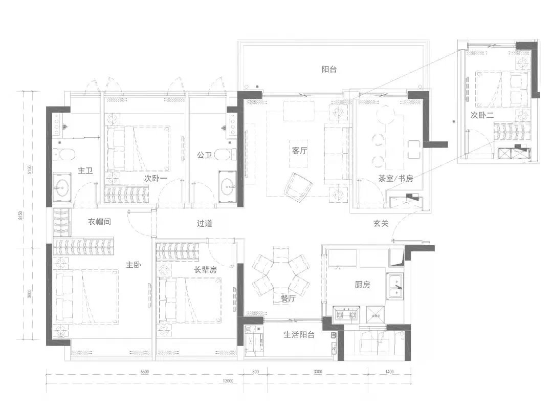
据悉,深业颐泽府共规划有20栋小高层住宅,其中1栋为人才房,主推建面约100-180㎡三至四房。
此外,项目还自带一所18班幼儿园,容积率为3.8。
在小区内部配套上,项目还将建设4 个主题乐园,包括儿童娱乐活动区、休闲会客厅、运动健身和共享书屋等功能模块。
如此看来,项目全龄化配套设施的覆盖度还是比较高的。

深业颐泽府示意图
项目首推16#,高32层,为三梯四户设计,产品涵盖建面约100-140㎡三至四房,毛坯出售,总货量约有120套。
其中,建面约100㎡3+1房两厅两卫,带有约6.3米宽阳台,竖厅设计,餐客厅和阳台贯通,采光通风俱佳。

建面约100㎡户型图
建面约120㎡四房两厅两卫则带有双阳台设计,景观阳台和生活阳台南北对流。

建面约120㎡户型图
而建面约140㎡户型是四房两厅三卫,采用双主卧设计,南北向双阳台,空间十足。

建面约140㎡户型图
据悉,项目将于元旦开放展厅和样板房,项目展厅位于南沙灵山岛汇通二街1-1(中交汇通中心A6栋)。
至于价格,置业顾问透露首推吹风价为3.7-3.9万/㎡,预计明年中旬才开盘。
04
片区内已有多个项目
对手多,竞争大
目前,深业颐泽府周边已经分布有美的江上沄启、旭辉曜玥湾、湾区·金融城、旭悦金湾等项目。

其中,美的江上沄启主推建面约98-142㎡三至四房,均价为3.6万/㎡;
旭辉曜玥湾主推建面约95-125㎡三至四房,均价为3.3-3.6万/㎡;
湾区·金融城主推建面约70-135㎡二至四房,均价为3.6万/㎡;
而旭悦金湾主推建面约78-110㎡三至四房,吹风价为3.6万元/㎡。
此外,美的江上沄启和旭辉曜玥湾更靠近江边,江景优势更加突出,而湾区·金融城则更靠近地铁站,交通更为便利。
对比之下,深业颐泽府江景优势、交通优势均为中等,且为毛坯出售,吹风价却达到3.7-3.9万/㎡,你怎么看?
推荐阅读
- 亮点|等了6个月终于能晒晒新房了,都挺满意的,客厅是最大的亮点
- 泰禾集团|泰禾地产“经营乏力”?曾经年赚千亿,现负债百亿,多个楼盘烂尾
- 健康|力高集团深耕健康人居,跨越周期持续发展
- 大健康南沙基地|广药集团王老吉大健康南沙基地(一期)项目正式封顶
- 年终奖|年底离职,公司扣下了三年的项目奖,等了很久的房子买不成了
- 丁祖昱|滨江集团:房企可持续良性发展样本
- 华侨城集团|华侨城物业中标襄阳市科技馆新馆运行管理服务项目
- 房地产市场|优质房企受青睐 龙光集团财务经营稳固获认可
- 银行|带方案出让!江西省交通投资集团拿下临空区104亩商业用地!
- 世茂集团|南昌铜锣湾广场三期备案~青云谱3号线江铃站添近2万㎡商业综合体
