灰蓝装点大空间,简约元素渲染家居,融合成独特的现代风格
业主崇尚最自然简单的生活方式,不喜欢奢华复杂的设计,希望通过最简单的元素打造一个足够安静舒适的空间,让自己可以在繁忙的工作中寻找到一个安静的放松空间。

房屋户型:
两室
房屋面积:
158平方米
装修预算:
50万
设计师:
李文伟
主要建材:
线板、木皮、喷漆、大理石、黑铁漆、铁件、玻璃、木地板、壁纸

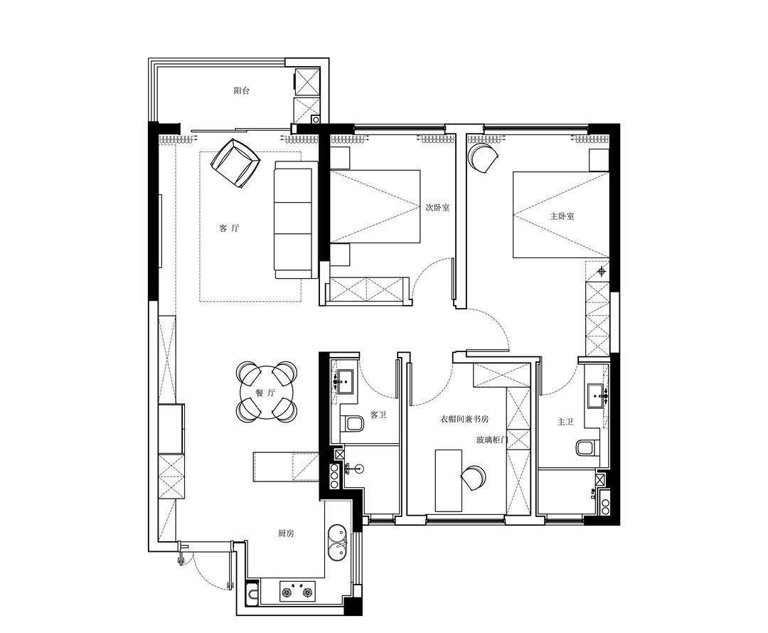
【户型图】

改造之后的空间布局更加的清晰,每一个空间内的功能都得到了完善,除了必要的生活区和休闲区,没有其他多余的空间,阳台也得到了最极致的利用,处处都彰显着业主对生活的追求和热爱。

【玄关】

设计重点:定制储物柜满足多样的储物需求
原来的玄关是没有独立的收纳区的,考虑到业主家里的杂物比较多,在玄关定制了大容量的收纳柜,各种规格的收纳区可以满足不同的储物需求,关上柜门又不会影响玄关的美观,让空间更加的整洁干练。
【客厅】


设计重点:深色系渲染出客厅的安稳与沉静
客厅的整个空间都选用了非常沉稳的深色系,突出空间的安稳与沉静。无主灯的设计风格并不影响空间的光线,地灯和线灯的设计巧妙地丰富了整个客厅的氛围,又不失独有的空间魅力。


靠近阳台的单人刺绣沙发非常的吸睛,点缀着客厅更多了些复古的风情。日常坐在窗边看看窗外的都市美景,享受当下的美好与安静,思绪也可以飘到所有想去的远方。


造型独特的落地灯,高品质的皮质沙发,软糯的毛绒地毯在这里巧妙地融合在一起,形成了最和谐的画卷,犹如编织的毛线,展现着绵延的魅力与独特。
【餐厅】
设计重点:灵活吧台增加空间趣味感
餐厅位于客厅一侧,让空间在视觉上更加开阔。餐桌边增设的小吧台即可以作为一个临时的就餐区,也可以作为平时的阅读区,满足多样的实用需求。又能巧妙地连接客厅和餐厅。

透过客厅阳台的阳光可以照射到吧台区,整个空间都被温柔的阳光拥抱着,感受着当下的温柔和轻松。

灵活的小吧台,按照业主的需求可以随意移动,不仅增加了餐厅的层次感,还加深了空间的深度,让这里成为整个空间的亮点,也让生活更充满趣味。
【卧室】
推荐阅读
- 餐厅|这套新房真有创意,客厅改主卧,电视背景墙后面设吧台!
- 海绵|新年新气象,装点美丽新生活!顾家卧室床推荐,建议收藏!
- 墙面|64平的小户型公寓,用软装装点整个家,你能给它打几分
- 客餐厅|122㎡现代北欧风,卡座餐厅+窗边吧台的设计,让家更有情调!
- 简约|大3房就爱原木风:甜嫩粉+雾灰蓝色调打造自然简约亲子宅
- 吧台|重庆夫妻的新家,因太会装修而走红,凭白墙与原木就让家温馨治愈
- 储物|餐厅装修有三宝,卡座、吧台、餐边柜,我家一样都不少
- 客厅|109平北欧风三居室,灰蓝搭配构造一个小清新的家
- 餐边柜|120㎡极简新房,清亮的薄荷绿墙面,吧台和餐边柜是最大亮点
- 收纳|这套新房真有创意,客厅改主卧,电视背景墙后面设吧台!
