三室改成四室,增加收纳空间,一家六口也不用担心储物空间不够啦
这个房屋是一家六口在居住,家里的除了业主夫妻以外还有业主的父母和他们的两个孩子,本来这个房屋是一个简单的三居室,不过有了二胎之后家里的空间就不够了,所以业主决定对这个房屋做出装修改造,将之前的三居室改成四居室,为家里的二胎增加一个单独的儿童房,另外家里有了两个孩子之后也需要更多的储物空间,装修的时候设计师也增加了很多储物空间,就算是一家六口也不用担心家里的储物空间不够啦。
房屋户型:
四室
房屋面积:
116平方米
装修预算:
30到50万元
所在城市
:广州
设计师
:王思思
主要建材
:烤漆玻璃、茶玻、优白玻璃、不锈钢、银色织纹美耐板、比利时浅色橡木超耐磨木地板、白橡木喷砂木皮、特殊色烤漆、白色石纹人造石、进口壁纸、环保无毒涂料

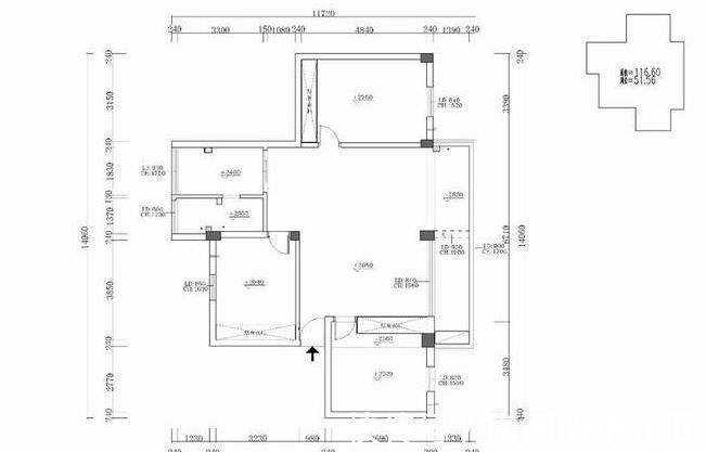
【户型图】
有了二胎之后家里不仅是多了一个需要照顾的孩子,更需要业主花费更多的心思,为了能够让业主和家人居住得更为舒适,所以在装修的时候将之前的三室改成了四室,每一个空间都增加了强大的收纳功能,将多出来的阳台一分为二,满足一家人的储物需求,让老房子更适应一家六口的起居生活。

【玄关】
设计重点:定制鞋柜
入户的玄关位置选择了定制的鞋柜,定制的柜子可以根据业主家里的实际需求做出调整和改动,会更适合这种对储物需求有更大要求的家庭选择,定制的鞋柜不仅可以满足日常放置鞋子的需求,还可以用来放置一些杂物。玄关墙壁上的装饰画也可以换成全家福,会更温馨一些。

【厨房】
设计重点:暖灰和白色结合
厨房选择了暖灰色的地柜和白色的吊柜,两种不同颜色的橱柜搭配在一起同样很实用,还可以让厨房空间更有层次感,看起来更为整洁。厨房的通风和采光也很好,橱柜都是根据业主的做饭习惯来定制的,平时使用的时候会更方便一些。


【客厅】
设计重点:蓝色背景墙
【 一家六口|三室改成四室,增加收纳空间,一家六口也不用担心储物空间不够啦】客厅选择了蓝色的背景墙,静谧清新的蓝色让客厅更为舒适通透。

为了增加家里的储物空间客厅也增加了定制柜,不过客厅的柜子并没有围绕着整个墙壁,而是在靠近阳台的位置设计了一个大柜子,这样既不会影响室内的采光和通透性也可以增加储物空间。


【餐厅】
设计重点:卡座设计
家里的人比较多,卡座的设计即可以储物也可以容纳更多的人用餐,吃饭的时候也不会觉得拥挤。

推荐阅读
- 书房|成都80平三室之家,一体式餐厨设计,仿佛把日剧场景搬回家
- 承重墙|109㎡四口之家,全屋配色太清爽,三室两厅不压抑!
- 柳州|柳州又一家企业C位出道,实力曝光!
- 佛山|90后夫妻爆改异形破旧老房,67㎡也挤出小三室,还有专门的工作室
- 简约风|140平现代简约风三室装修,全屋用莫兰迪色系太温馨了
- 现代简约|上海58㎡“老破小”逆天改造,一家住三代人绰绰有余
- 设计|40㎡小房也能住一家三口,玄关设计被争相模仿,丝毫不输大户型!
- 简约|90后一家四口住130㎡住宅,轻奢优雅,享受精致慢生活!
- 操作台|78㎡3室2厅,住下一家5口,每一平米都是这样被榨干的!
- 中式|晒一家三口的新房子,150㎡中式装修,住的很惬意!
