用红色还是蓝色来做点缀?选亮色还是暗色的家具?我想很多人在装修时都会有选择困难症,在硬装定型后,想要让家变得更加时尚,软装部分的颜色选择就尤为重要了。
直到看完这套装修案例,彻底颠覆了我之前“重硬装,轻软装”的思维,看来想让家更时尚,还要合理的软装搭配,而且优秀的软装搭配并不是随意的多色组合,一定有很专业的美学知识特别是色彩学在里面,不同颜色的组合,合适的家具搭配,才能让家更加丰富多彩。
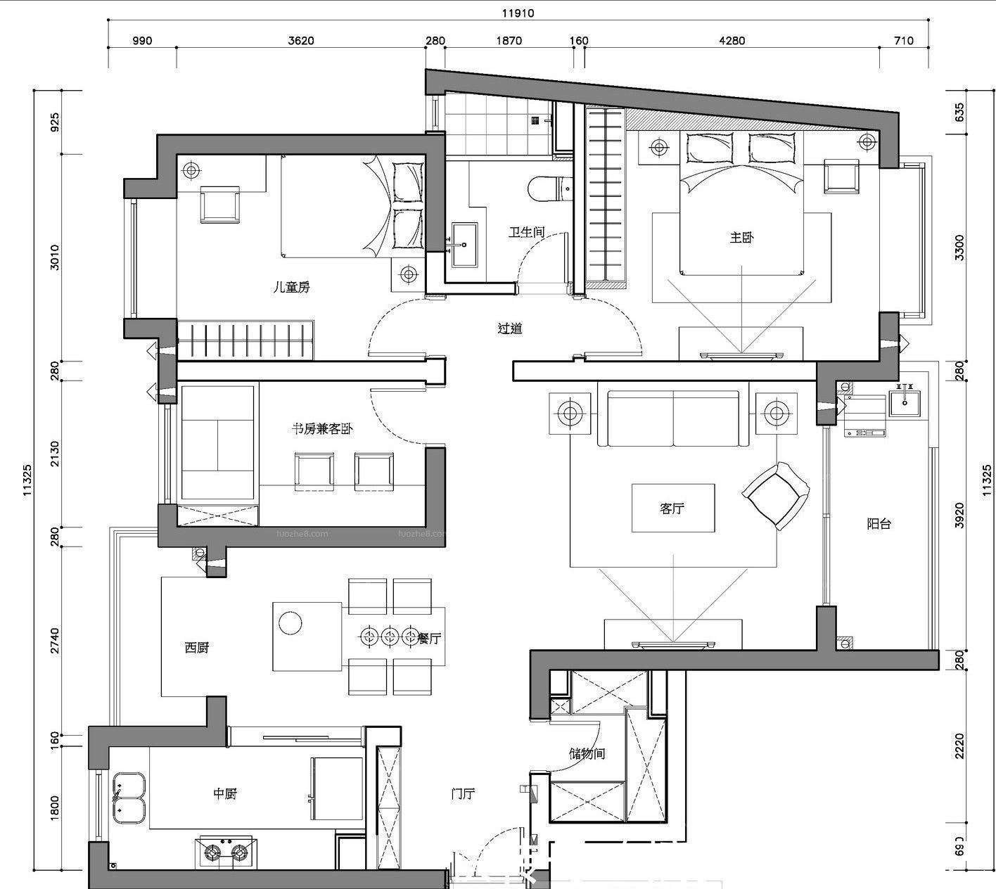
全屋布局图房子建筑面积为135平米,实用面积为120平米,从户型图来看,整间屋接近正方形,标准的三室两厅一卫,除了主卧,另外打造成了儿童房和书房兼客卧,客厅的面积不小,其他的像阳台、储物室一应俱全,可以说相当不错的户型。

客厅装修图房主是一家三口,男主从事高端西服定制,女主为企业高管,对家的品质都有一定的要求,主要营造出时尚的感觉,整个硬装以线条来凸显层次,再用华丽的软装来衬托,所以在这套作品运用了比较难驾驭的黄色作为点睛之笔。

客厅整体以白色打底,这就给软装设计留有很大的发挥空间,除了电视背景墙留白外,其余地方均配有亮色,沙发背景墙用线条做勾勒,搭配抽象的艺术画,有种异域的风情,黄蓝相间的窗帘让落地窗更显大气之感,棕色的皮质沙发组合花式地毯,冲淡了客厅的冷色,显得处处温馨。
【 房主|装修遇到了选择困难症,用多彩的软装解决,搭配出时尚大气的风格】

餐厅和客厅风格保持了一致,餐椅选用了红色,突出了色彩,也让空间更加丰富,在墙壁多处布置了艺术装饰品,让洁白的空间更显得立体且有品位。

卧室卧室用暖色的木地板冲淡了白色的冷清,屋顶和墙面均用线条做装饰,蓝色的窗帘搭配黑色的床头柜,给卧室增添了诸多亮色。

考虑到女房主追求高品质生活,在卧室靠窗放置了梳妆台,方便她打扮,另一边是条纹状的衣柜。灰色的床头软包,在射灯的照射下不是那么的刺眼,舒适的休息环境就此而成。

厨房厨房布局呈L型,橱柜采用亮黑色,和其余的白色在视觉上形成反差,黑白配也彰显出高端大气的感觉。

卫生间卫生间讲究实用性,暖黄色的墙体地面搭配洁白的卫浴,让整个卫生间显得干净卫生,智能马桶让生活更加便捷,淋浴房做了干湿分离,打理起来也更加方便。

魔都的世界欢快却不缺乏时尚气息,从时尚界跨度到家居界,冷峻黑白灰与温馨黄色的搭配,是艺术对视觉的征服,是视觉观感对艺术美学的完美诠释。冷暖交接的平衡之道可以为空间带来非凡的视觉体验。
推荐阅读
- 装修|乔迁新房3月以泪洗面!当初的不理智,连犯15个极品装修坑!作孽
- 装修|淋浴房还可以坐着洗澡,一开始很不理解,装修后才发现太实用了!
- 施工者|不管家多大,装修时做好这12处细节,美观与舒适并存,幸福感提升
- 心塞|5个月装修一套房,硬装让我喜出望外,结果家具一上全废了!心塞
- 装修|空调外机万万不能这样挂墙,若不是师傅提醒,我家都装错了!
- 洗头|崩溃现场:装修的10条坑,我都替你踩扁了,请你一定要避开
- 抽油烟机|婆婆抠出新境界,5万装修婚房还带家电,如此寒酸真让人不想嫁了
- 碧桂园|小城市的房住不炒,遇上返乡置业
- 房子|越来越多人用这“两个方法”装修房子,可升值十几万!
- 卫生间|房屋装修6大暗坑,哪个踩了都会导致返工,希望你没踩到。
