很多在农村建房的朋友总是纠结是否要专门请个设计师来定制一套图纸,其实这也要视情况而定。如果你打算花个十几二十万建一栋普通的民宅似乎没有这个必要,网上也有很多不错的图纸可以选择,几百块就能买一套,建房没问题。但是对于一些要求相对较高,又有独特需求的朋友来说,请设计师量身定制是非常有必要的,毕竟那几千块的设计费对于整个建房的费用来说可谓是“小巫见大巫”了,不值一提。下面这个案例是广东的一位业主董先生,本人在城市里工作,家中父母有老宅,房子虽旧当然也能住,安全性也没问题,只是不舒服。还有一个最大的问题是作为董先生本人脸上似乎不太光彩,为什么呢?当年董先生考进了城市,父母都引以为荣,经常在亲戚邻里间炫耀自己的儿子有出息,如今同村很多人都纷纷都建起了新房,而自家还是老宅,难免脸上无光。被人说三道四滋味自然是不舒服,于是董先生下定决心在老家建新房,不仅要建,还要建一栋与众不同的,父母住着舒服,将来自己告老还乡也有个归宿。

网上很多套图不想用,感觉没有自己的特点,于是找到我们要求量身定制。在城市久了,而独目染接触了很多新事物,对于房子的要求自然也不一样,希望简约现代一点,宅基地只有120多平,但感觉上要大气。卧室也要多一点,父母老了习惯分房睡,儿女回来了也要有足够的空间,亲戚朋友来访还要有客房。于是我们出了这款现代风格三层别墅设计方案,董先生看了非常满意,我们一起来了解下。

别墅整体外观为简约的现代风格,外形上又不是特别的前卫,在农村比较容易接受。外立面以灰褐色文化石搭配奶白色真石漆,参差交错的拼接方式非常有设计感和层次感。蓝灰色的坡屋顶与整体的造型完美地结合在一起,稳重大气、简约时尚。看着洋气,但建筑材料是最普通的,确保在农村施工无障碍。

由于宅基地的北面有遮挡物,因此房子设计三面采光,足以保证了室内的良好通风和阳光照射充足。侧面和背面的效果更加简洁,主次分明,以达到良好的整体效果。

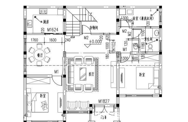
我们再来看看户内的设计情况。农村的老人还是习惯住在一层,接地气,不用爬上爬下那么麻烦,同时对于腿脚不便的老人也安全。一层两间卧室均朝南,老两口一人一间。正中是一个用于接待宾客的大客厅,非常敞亮,邻居来了倍儿有面。餐厨区在建筑的西北角位置,均西侧采光,餐厅最多可容纳10人左右同时进餐。建筑的东北角位置是洗浴间、洗衣间、卫生间,浴室和卫生间分开,避免了同时使用的冲突,浴室里面兼洗衣间。就连楼梯下的空间也利用了起来,作为家庭的杂物间,储存些日常杂物非常方便。

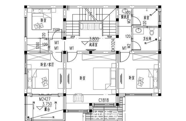
二层设计有四个房间,房间的用途可根据业主的实际需求灵活使用。如果家庭人口不多的话,我们建议把中间或者西南角的卧室改作客厅,具体怎么用可随业主心意,变通性很强,西南角有一个开放式露台,即可休闲,亦可做晾晒之地。二层的浴室仍然是和卫生间保持独立,中间是一个小起居室,虽然不大,但也温馨舒适,巧妙地利用了这个空间。
推荐阅读
- 施工|面宽均为12米的两栋自建房,简单施工易,造价25万上下
- 建房子|面宽11米, 进深16.5米的农村三层别墅, 前后有花院还带车库, 完美!
- 别墅|参观亲戚上海的豪宅,别墅硬是住成农村房,真是糟蹋了好房子
- 购房置业|今年起,农村老家的老房子,统统按照“新规”处理,子女提前知晓
- 修建|精选10套三层户型图纸,占地面积均不足百平,尤其适合新农村修建
- 上海市|2022年农村人要“享福了”?实行按户补贴,跟村民们的房子有关
- 洗衣房|这三款农村四合院设计图让不少城里人羡慕,父母看了也欢喜
- 购房置业|农村建新房就选这套四层别墅,占地100多平,8间卧室人人都有地睡
- 别墅|土豪农村盖大别墅,人人羡慕,如今却成为全村人眼中的大笑料
- |占地8.38X9.8米,小宅基地怎么修
