用隐形门连接客厅,整合家居空间,让回家变成一件有意义的事
在我们正在高速发展的世界中,我们总会不由自主地被现代生活推着走。我们要被迫去努力,去交朋友,去变成连自己都感觉到陌生的自己。
幸运的是,在这个星球上,在这座城市里,总会有一个地方,亮着温暖的灯,灯光深处,还有个盼你回去的人。小时候只知道,家是爱的港湾,而长大了,慢慢发现,家是我们的起点也是生活的目的与意义。
户型:三室
面积:100平米
预算:30~50万
城市:上海
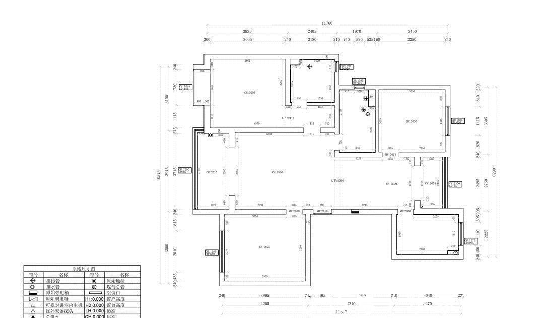
【户型图】

由设计图就能明显感觉到,房子的使用人数少,房间面积适中,但是仅有一个卧室,而设计了衣帽间、书房这样的空间,提升居住品质。客
厅空间比较大,和餐厅临近布置,是整个房子的活动中心,链接各个空间。设计了两个卫生间,考虑到了以后可能的需求。房子也具有很大的调整的可能,如果将来有了小朋友或者父母亲友过来居住,衣帽间与书房都可以按照需求做出调整。

可以看到,设计师对于原始户型图没有做过多的调整,主要是将阳台部分的墙体打掉,增大客厅的使用面积。将卫生生间的墙体稍作调整,减少主卫的面积,使空间更加通透。
【客厅】

设计重点:阳台卡座
从室内照片就可以看出,业主对于装修的要求不高,设计一切从简,没有用到过多的修饰手法和贵重的家居用品,总体来说比较简单,中规中矩,天花板也未加修饰,采用无主灯的设计。

客厅以灰色为主色调,颜色饱和度较低,室内光线也比较柔和,总体给人的感觉还是很舒服的。
沙发采用灰色调的布艺沙发,结合木材质的书柜以及门,铁质茶几,在材质上也更加丰富。颜色上则比较低调,用一条粉红色毯子和一小片绿叶植物,来活跃空间氛围。


这个设计里还比较舒服的一点就是,将电视旁的门和墙体进行一体化设计,使整个画面看起来更加统一。原木色和电视柜的白色的组合也比较舒服自然。
【厨房】

设计重点:方格墙砖
就我个人而言,最喜欢的是厨房的设计。无论是配色上,还是材质上,都给人耳目一新的感觉,相较于客厅的设计,更能够给人一种大气的感觉。
橱柜同样选用了木质纹理,黑色长条形的把手安装在长条形的抽屉上恰到好处。顶部纯白的柜子将黑色的吸油烟机凸显出来。
最能为厨房增色的就是墙体的小方块面砖,原本厨房都是一些大面积的物体,用小面积的东西形成一个平衡。台面上各种颜色的厨具也为厨房增色不少,既具有设计感,又多了一些活力。
【餐厅】

设计重点:餐桌
设计师选取了原木色的餐桌和座椅,与整体的设计相呼应。这样设计的出发点当然是好的,但是却有点过多了,整个房间的设计大量的运用了木材,但是确实千篇一律,不加以区分,会让人有种审美疲劳。如果改用金属材质、跳色的或者深色的餐桌或许会更好一些。
推荐阅读
- 装修|淋浴房还可以坐着洗澡,一开始很不理解,装修后才发现太实用了!
- 中间商|出租房屋可以不用中介,打造自助门店,同样收租金
- 造纸|生活用纸,黄卫生纸真的好于白色卫生纸吗?来听造纸员工怎么说!
- 灰尘|家中阳台不要装推拉门了,装这种更实用个性,不得不感叹太聪明了
- 情形|速看!武汉住房公积金贷款信用审核新标准发布
- 餐边柜要做成什么样子才实用又好看看看这几款餐边柜设计
- 宝龙地产|银行大厦几十层高,能“物尽其用”吗?各个楼层都是干啥的?
- 二手房|古交市首笔国有土地使用权出让收入征收落地
- 卫生间|129平现代美式三居室,打造出一个舒适又温馨的美式家
- 置物区|全屋定制柜子时,记得把这3个柜子做到位,钱不白花用着也舒服!
