四方食事,不过一碗人间烟火。
玄关的鞋柜设计是重点,很多鞋柜的失误设计就是上面留空下面没有留孔,最好的鞋柜设计就是上面不留空,这样就没有灰尘了打扫起来也方便。下面留空是为了鞋柜空气的流通,这样就解决鞋柜有异味的难题了。

家是我们认知世界的起点,它建立了我们对艺术感知,在时代中找寻到自我。

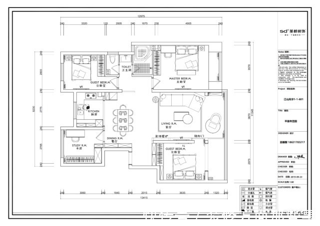
【 二厅|129平现代风四居室,在灰色空间汇总加入木质元素,更加有温度】本案为四房二厅一卫一厨的多层住宅,整体空间以灰色为主,加入木质元素,使空间看起来更加有温度。
推荐阅读
- 卫生间|129平现代美式三居室,打造出一个舒适又温馨的美式家
- 三居室|118平现代风三居室,一个简单而纯粹还原生活色彩的家
- 郑州|买房月供曝光!郑州最新平均工资8694元,撑得起房贷么?
- 石家庄|144平的面积,无人值守棋牌室,这是如何做到的?
- 简单感|现实的平衡取舍,才是生活之道!143平现代风格设计欣赏!
- 她家148平米,进门就被玄关迷住,不做吊顶跟背景墙,阳台超漂亮
- 修建|精选10套三层户型图纸,占地面积均不足百平,尤其适合新农村修建
- 南通|拍卖成功!江苏南通一处197平住宅192万成交!
- 购房置业|农村建新房就选这套四层别墅,占地100多平,8间卧室人人都有地睡
- 现代简约|青岛房价不是低洼地了,房价高达1.6万一平
