68平米小户型的家除了一家三口之外,还包括未来的二胎宝贝,及两只狗和猫。小夫妻希望家里开阔一点,动线能更加自由。另外女主人喜欢蓝色,所以也希望家里能有更多的蓝色元素。
地点:北京
面积:68㎡
户型:二居室
风格:现代风
人口:三口人二犬一猫

原户型图
68㎡的小户型,本身户型存在很多像烟囱占道。床太大放不进卧室,小房间不好分配空间等问题,让原本局促的空间更狭小。
改造方案承重墙体不动,于是对墙体做了些调整:

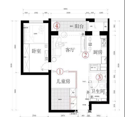
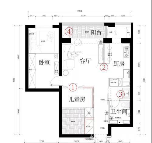
改造后
①玄关增加收纳柜,儿童房扩容设计
将进门左手边增加玄关柜,还用半透明玻璃拼墙与储物间结合,将儿童房面积扩大,拉近与客厅的距离。
②厨房改变出入口,餐厅合并到客厅
打破与客厅相邻的墙面,变成开放式厨房。
由于屋主对餐桌需求不大,将原本的用餐区并入了客厅。
冰箱、矮柜等大物直接放在最顶端的小房间内,充分利用空间。
③卫生间增设蓝色谷仓门,更加隐秘
踏入玄关后,左手边的墙面涂刷了蓝色,卫生间门也改成蓝色谷仓推拉门,风格更加统一。
④阳台增设日光卧榻
在落地窗边做了个卧榻,增加储物收纳空间,也放了个猫爬架,闲坐着时逗逗猫、遛遛狗,很是舒适。
>>>玄关

玄关改造后,增添了玄关收纳柜,墙面贴了张穿衣镜,实用性更完善。
>>>客厅
小户型的客厅,是家人生活的重心。

以此为中心,动线往前通往厨房,往后走入卧室,往左的阳台新做了榻榻米,往右则是儿童房。

灯光的选用方面,考虑到天花板的高度,放弃了吊灯,选择无主灯设计,利用放射性的光源,让空间变得更大。
>>>厨房

厨房入口的改变,开放的厨房更加多功能,容纳了洗衣机、烘干机,高效利用空间。业主对餐桌的需求不大,就在电视墙后方做了个小型吧台,作为日常用餐的去处。有亲友到访的时候,就将客厅的折叠茶几展开,变成餐桌,也足够使用。

那显眼的猫咪游戏柱是为了掩盖原始的烟道,因为无法拆除,遂将旧烟囱反变成了猫咪的游戏柱。
>>>儿童房

儿童房采用玻璃拼接半墙的设计,再装了一扇玻璃推拉门。大面积采用玻璃的材质,一方面为了能将客厅的光线引入儿童房,另一方面也是为了让大人在客厅也能时刻注意到房里小朋友的情况。
推荐阅读
- 置物区|全屋定制柜子时,记得把这3个柜子做到位,钱不白花用着也舒服!
- 薄荷蓝|走进她家,才知什么叫美观与实用并存,全屋温暖又清爽,太舒服了
- 灵魂深处|全屋定制案例|儒雅新中式,展现灵魂深处的东方情怀
- 全屋|日子过久了才发现,越简单自然的装修越让人迷恋,全屋看着真舒服!
- 全屋|次卧空间小,老婆灵机一动不装“床”,孩子一眼就喜欢上了晒晒
- 智睿|老装修升级计划 篇九十五:魔都二手房全屋灯光改造,给自己一个明亮智能的家!
- 全屋|164m2现代简约全屋简洁大方,有质感!
- 乳胶漆|等买了房,就照他家这么装,全屋不吊顶,不做背景墙,越看越耐看
- 承重墙|109㎡四口之家,全屋配色太清爽,三室两厅不压抑!
- 长方形|28万打造159㎡法式风情洋房,光吊顶就3万多,开放式厨房超有情调
