

第7套:宽敞大厅+舒适阳台+多卧室,13×11米小二层农村别墅,主体预算40万

占地尺寸:13m×11.4m
占地面积:166.9㎡
建筑面积:309.9㎡
建筑高度:9.92m
建筑情况:5卧 2厅 1餐厅 1厨房 2卫 1阳台


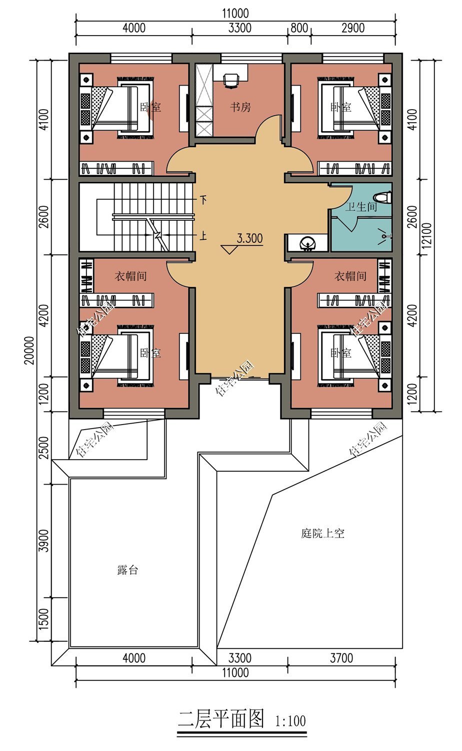
第8套:大露台+内庭院+舒适套间,12×11米新中式雅宅,主体预算40万

占地尺寸:11m×12.1m
占地面积:141.54㎡
建筑面积:309.63㎡
建筑高度:10.92m
建筑情况:设6室 2厅 3卫 1厨 1书房 1工作室 2衣帽间 1露台


第9套:对称外观+优雅圆形窗+多套间,12×12米冷色调二层美式住宅,主体预算40万

占地尺寸:12m*12.1m
占地面积:144.3㎡
建筑面积:293.7㎡
建筑高度:9.9m
建筑情况:共设5室 3厅 4卫 1厨 2储藏室 1棋牌室 1书房 1衣帽间 1露台


第10套:通透布局+大露台+落地窗,8×9米二层小户型别墅,主体预算20万

占地尺寸:8.7m×9.9m
占地面积:87.95㎡
建筑面积:157.46㎡
建筑高度:8.14m
建筑情况:3卧室 1客厅 1餐厅 1厨房 1露台


【 储藏室|10套二层农村别墅图纸,第3套第4套建的人最多,最后一套造价20万】这10套图纸都设计的非常好,第三套、第四套在农村建得人最多,你更喜欢哪一套呢?
推荐阅读
- 管道|为什么说:再穷也不买二层?了解这些弊端之后,就知道多糟心了!
- 疯狂|1月20日广州新房网签210套,增城以43套再次蝉联榜首!势头强劲!
- 修建|精选10套三层户型图纸,占地面积均不足百平,尤其适合新农村修建
- 贵州|利落挺括,12×11米现代二层别墅,4卧2厅好格局开启全新生活
- 农村|13.3×12.5米二层别墅,精致农村住房,带给你雅致的生活!
- 户型|实拍10套农村3层小别墅, 想省钱就建第6套, 养老房就盖第5套
- 一线城市|还记得那位一口气买了10套房,月供百万差点破产的女孩吗她现状
- 卫生间|想在老家建个好房,又没时间常住,这种美观大气的现代风二层别墅,挺实用
- 别墅|乡住免费图纸 土建造价参考58万 面宽14.4m进深13.4m二层现代别墅
- 户型|占地只有87平的二层小洋楼,让所有农村人都抢着盖
