买下人生第一个真正的家,这是一套62㎡建筑面积的小宅,实际上只能做一室一厅。装修我们是第一次经历,预算不够,空间有限。请不起专业的设计师,我们找了熟人装修,出图纸,设计都是我和老公绞尽脑汁想出来的,前后拆旧重装花了接近四个月时间,当初设计的时候,老公坚持给厕所装“两个门”,还给唯一的卧室,挤出了一个次卧来,并且给次卧床设1.2m高,完工才知这个想法很睿智!忍不住晒晒。
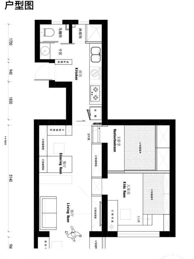
原始户型图弄不见了,只有设计平面图了。我家的户型我也说不上来,哈哈倒是有点像个大拇指,连亲戚都说我家的户型奇葩……哈哈废话不多说,一起看看现在的实景吧。
用于空间狭小,入户这里根本没有特定的空间装鞋柜,所以只好放了一个半高的靠墙鞋柜,厚度仅20cm,,虽然小了点,但可以很好的解决鞋子的收纳问题。
进门后便是我们的小客厅了,房子的层高并不高,但是有不少的房梁很难看,所以我们拉平了吊顶。而且我们也没有装什么主灯,都是点光源的筒灯,这样整个客厅的采光也没有死角。
首先我想说的就是我家的餐厅区域,这是当时木工的照片,因为房子小,一家三口人。收纳要充足,所以我们装了不少柜子,餐厅这里装了L型到顶的转角餐边柜,右边是整面墙的柜子,加隐形门的设计。
右边是整面墙的柜子,柜子用白色漆涂刷,很简约,不会有大面积柜子带来的压抑感。只有挂电视机的位置,预留了凹槽,看上去特别简约实用。只有挂电视机的位置,预留了凹槽,看上去特别简约实用。我个人认为小户型柜子就应该这么装。
餐厅柜子的细节,里面都是充足的隔板收纳。
餐厅这里装了L型到顶的转角餐边柜,整体是白色加木色的设计,既实用又好看。
客厅的面积所剩无几,所以主沙发也没办法买太大的了。只能买一个小的双人沙发,搭配一组绿植也是充满了自然气息,后期再买两个豆袋,可以坐在地上。
厨房的面积紧凑,所以冰箱、灶台和水槽只能并排摆放了,算是一个半开放式的厨房,因为通向客厅的位置装了一个推拉门,可以有效的隔绝油烟。

灶台左边还有一个空余的区域,用来放洗衣机,恰好也是厕所的门口,进水和下水也比较好布局。
灶台和洗衣机之间,有折叠的推拉门,如果两边都关闭,这里就是一个封闭式的厨房了。
厕所,其实也就是鞋柜对面ed这个区域,本身厕所的布局其实不是这样的,左边一半是原来的厕所,右边一半属于厨房的空间,现在改动之后。老公坚持给厕所装“两个门”,他说是为了方便使用,最开始我还觉得多此一举,搞的有点像日本的房子似的。
推荐阅读
- 春节|如果能重来,阳台一定“9不装”,并非迷信,是过来人的经验教训
- 买房|二手房指导价意义非凡,主要有这4点,想购房的来看看
- 烤漆面|老公坚持餐厅不做柜子,原来用吊兰做隔断可以这么漂亮,学到了
- 全屋|次卧空间小,老婆灵机一动不装“床”,孩子一眼就喜欢上了晒晒
- 插头|老公花了100块钱把家里插座装成这样的,再也不用拔插头了,真是太机智了
- 上海市|LPR来了,给购房者,释放的信号也非常明显了
- 主卧室|为了20㎡小院子,老公坚持买一楼,完工进屋就被迷住了,晒晒
- 住改非|“住改非”房屋能否获得停产停业损失的补偿?
- 组合柜|在阳台打了一组洗衣机组合柜,邻居们看到了,表示非常羡慕
- 防盗窗|老公硬把阳台改卧室,在窗外加个“假阳台”!完工都夸他机智
