农村建房,大部分都是老百姓,考虑最多的就是实用性,户型不大不小的小别墅较为普通,有很多朋友给小编留言说,多分享外观漂亮又简单的小别墅设计方案,以简约的设计风格为主,同时实用性和经济性也要有,今天小编就给大家分享几款漂亮又简单的二层楼房,希望大家会喜欢。
款式一:145平现代二层自建房屋

别墅效果图展示
145平方米现代二层自建房屋设计CAD图纸带外观效果图,这款别墅经济实用,带车库设计,功能布局合理,人车分流,洁净分开,空间利用率高,适用于大部分农村建房使用。
占地面积:14.2m*12.6m,145平方米左右;
建筑层高:二层;
建筑高度:9.95米(含屋顶);

别墅一层户型图展示

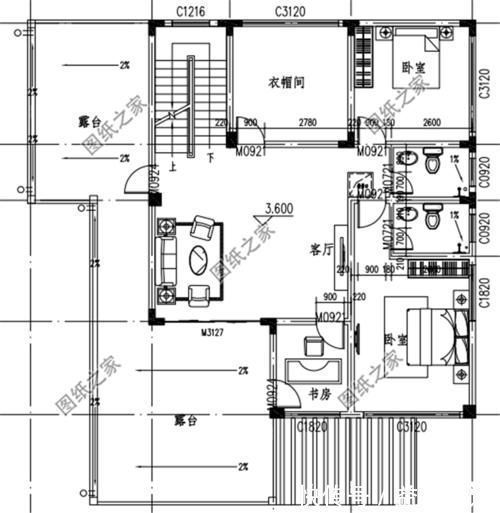
别墅二层户型图展示
设计功能:
一层户型:过厅、客厅、厨房、餐厅、洗衣间、老人房、卧室、卫生间x2、车库;
二层户型:客厅、书房、卧室(带卫生间)、卧室、衣帽间、卫生间、露台;
款式二:欧式两层别墅楼房设计图纸

别墅效果图展示
欧式两层别墅楼房设计图纸建筑施工方案带外观图,外观高端大气豪华,复式中空客厅,内部格局非常合理,本户型是居住生活的好选择。
占地面积:14.9m*11.9m,138平方米左右;
建筑层高:二层;
建筑高度:11.16米(含屋顶);

别墅一层户型图展示

别墅二层户型图展示
设计功能:
一层户型:客厅、厨房、餐厅、小餐厅/杂物间、卧室(带卫生间)、卧室、卫生间;
二层户型:客厅上空、卧室(带卫生间书房更衣室)、书房、卧室、卫生间、阳台;
款式三:带开放式车库二层农村自建别墅设计方案

别墅效果图展示
带开放式车库二层农村自建别墅设计方案,一层设计有两间卧室,可供家里的老人居住,另设计有客厅、餐厅、厨房和卫生间;二层主要做为生活起居场所,设计有三间卧室,还有两个屋顶露台。
占地面积:12.2m*9.42m,89.412平方米左右;
建筑层高:二层;
建筑高度:10.037米(含屋顶);

别墅一层户型图展示

别墅二层户型图展示
设计功能:
一层户型:客厅、厨房、餐厅、车库、卧室x2、卫生间;
二层户型:客厅、卧室x3、卫生间、阳台x2、露台;
【 别墅|漂亮又简单的二层楼房,自建房怎么又经济又漂亮,农村建房参考】以上就是漂亮又简单的二层楼房设计图,大家觉得怎么样呢,还想看哪款,欢迎留言告诉小编。
推荐阅读
- 餐边柜要做成什么样子才实用又好看看看这几款餐边柜设计
- 床头柜|95后姑娘的“穷装”卧室火了,环保又精致,软装的力量真强大
- 卫生间|129平现代美式三居室,打造出一个舒适又温馨的美式家
- 棚户区改造|开盘预告|合肥又有6盘要加推,均价1.39-2.54万/㎡全都有
- 建房子|面宽11米, 进深16.5米的农村三层别墅, 前后有花院还带车库, 完美!
- 别墅|参观亲戚上海的豪宅,别墅硬是住成农村房,真是糟蹋了好房子
- 她家148平米,进门就被玄关迷住,不做吊顶跟背景墙,阳台超漂亮
- 薄荷蓝|走进她家,才知什么叫美观与实用并存,全屋温暖又清爽,太舒服了
- 木纹板|装修案例欣赏:小北欧风格的居家设计,简洁的同时又不失温馨感!
- 马桶|把洗手台埋到墙里,卫生间一下变大了很多,美观又实用,好处多多
