明明只有110平,一个最理想的横厅圈粉加分了,住进去就不想出来!
简约装修风格越来越受欢迎,尤其是内含“木质元素”的风格,简洁清爽的自然之感,又不失干练的利落气质。
今天分享的这套装修案例,明明只有110平,扣去公摊可能就只剩100平左右了,但是它装修完工后的效果简直好得让人惊艳,视觉面积仿佛扩大到了200平,空间宽敞又通透,特别是横厅区域,让人住进去就不想出来了。

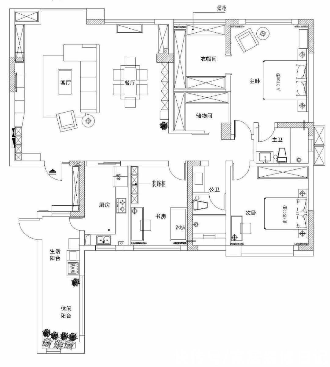
平面设计图
这是一个带有横厅格局的户型图,客餐厅并排在同一水平线上,拥有同等的采光通风条件,而且两者合在一起的整体空间效果达到了1+1>2的效果。

客餐厅全景图
墙面刷白色的乳胶漆,无限放大空间的宽敞通透之感,因为白色具有增亮的作用,由于大面积的白色会显得单调偏冷,所以选择以木质元素的木色来中和,打造简洁漂亮的日式风格。
地面选择通铺木地板,与白色的天花板和墙面相互呼应;同时家具也选择带木质元素,起到过渡衔接的作用;最后收纳柜也选择木色,避免过多的白色墙面显得极度单调。

没有做吊顶,层高显得更高,更进一步凸显空间的宽敞通透。

客餐厅之间以沙发作为空间隔断,起到断而不挡光的作用,餐厅选择简约风的实木餐桌椅,无一不是在营造轻松自然的就餐氛围,靠墙做了餐边柜,没有做整面墙,而是用照片墙装饰,点缀单调的白色墙面,丰富空间色彩。
另外,用射灯的灯光照射照片墙,让挂画更显得鲜艳美观。

厨房
地面铺贴灰色的瓷砖,简洁耐脏显得深邃,橱柜和吊柜选择木色的柜门,自然清爽让人为之精神一震,身心愉悦的炒菜做饭。

主卧室
干净利落的格局布置与木质元素的自然清爽相辅相成,素雅的色彩和简单的装饰,营造宁静致远的睡眠氛围,步入式衣帽间直接用窗帘代替推拉门,让空间更为通透宽敞,又能保证衣帽间需要的私密性。


衣帽间内部结构
因为把阳台包进来了,整个空间特别的大,真实让人羡慕。

书房
原木色的百叶窗帘搭配落地飘窗,可以调节百叶窗帘的角度,控制书房内部的光线,避免出现布艺窗帘容易过亮或者过暗的问题,而且也更为美观文艺。


次卧
颇有地中海风的布置,那抹蓝色有点惊艳,有点天空和大海的清爽感,而且飘窗自带大窗台,在上面摆几盆花搭配上明媚的阳光,很是喜人。
推荐阅读
- 碧桂园|深圳网友:当初90万买房,现在竟然出价只有53万,不卖了
- 保利|在33楼住了18年,心酸只有自己知道
- 房产证|二楼半的夹层户型你见过吗?层高只有2米5,装完空间照样给力
- 吊装|窗帘轨道如何安装
- 土地财政|努力5年买套房,虽然只有37㎡,只要不说,谁看得出来?
- 购房置业|看穿万年经济史,赚钱只有一种模式“收租”
- 表扬|15万装修好的房子,明明很漂亮,期待被表扬,好东西分享一下!
- 窗帘|老监工点名批评:很多业主人傻钱多,这14处乱装修,活该被坑钱
- 壁纸|130平新房装修花22万,客厅没阳台但超级漂亮,最满意一屋子窗帘
- 窗帘盒|挂窗帘万万不要装罗马杆了,装这种效果至少好十倍,不得不夸聪明
