这些年“去客厅化”非常流行,摒弃传统的沙发+茶几+电视墙的设计。把客厅这个最大的功能区,划分成更多实用的空间。不仅能够多挤出一些功能区,视觉效果还能更加时尚好看。
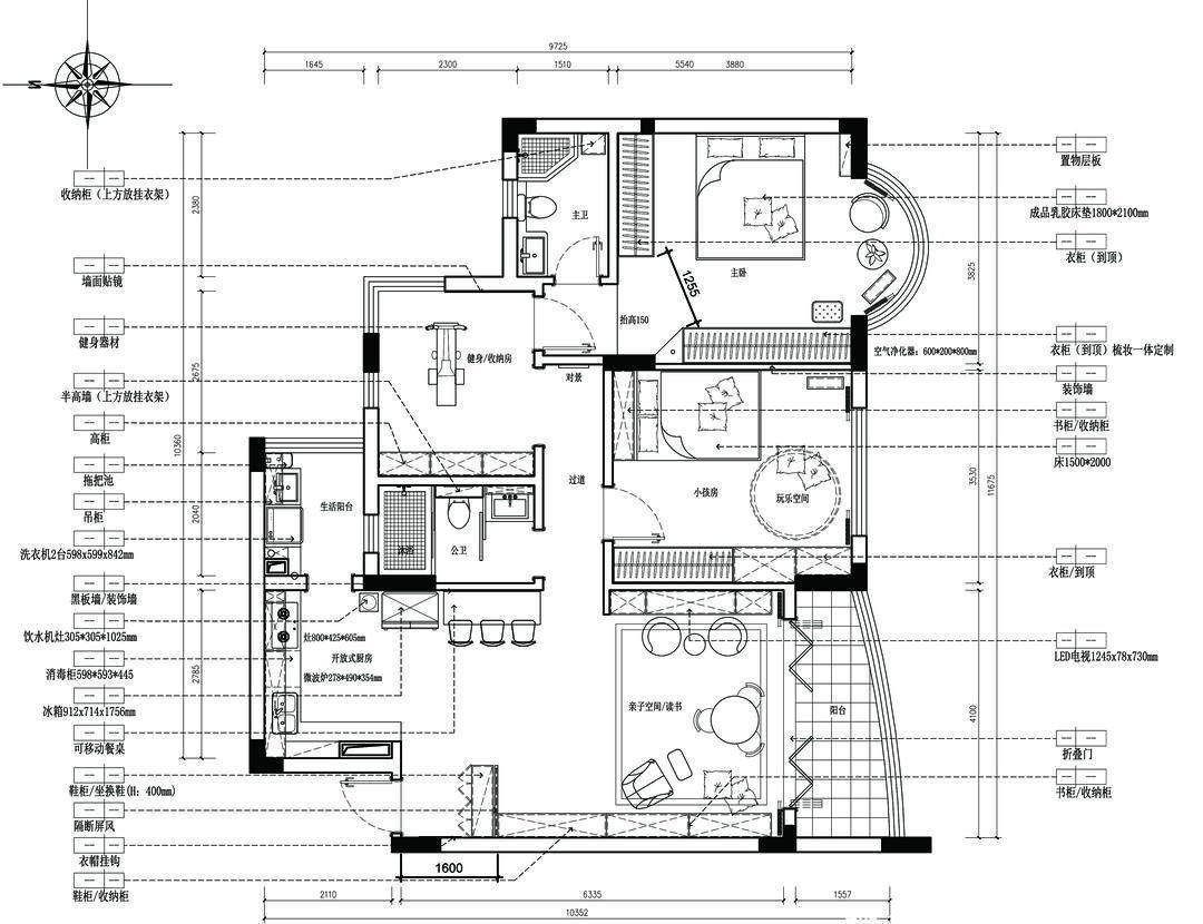
平面户型图
今天去参观了一套建筑面积100㎡的中等刚需户型,新房坚持“去客厅化”设计。摒弃了沙发和茶几,把沙发背景墙改造成书架。不仅可以给孩子提供活动空间,方便一家三口人享受惬意的亲子时光。为了提高舒适度,设计成了两室两厅一厨两卫的格局。户型方正,南北通透,可塑性非常强大。

入户玄关
一进门就被玄关给吸引了,打破传统的玄关设计,没有安装玄关柜。而是采用卡座+木栅栏屏风的设计,卡座上面铺了软垫,是非常舒服的换鞋凳,底下是悬空,方便摆放常用的鞋子。整面背景墙都是洞洞板,好看又实用,可以挂非常多的东西。

玄关地板采用非常漂亮的花砖,换鞋凳下面装了灯带,可以提高不少质感。

客厅
出了玄关之后,全屋都是原木色的木地板,搭配上奶白色的墙面,整体效果显得温馨又敞亮。客厅的电视墙和沙发背景墙都是收纳功能,封闭式和开放式相结合。要收纳有收纳,要颜值有颜值。

客厅的沙发墙是书架,上下两部分是白色柜门的柜子,中间是收纳架。收纳架的一部分装了玻璃推门,不仅可以保证视觉效果,还不用担心堆积粉尘。

没有沙发,在原本沙发的位置,摆放了两张休闲的北欧风格沙发椅,中间摆放了一张正方形的小桌几。原本茶几的位置铺上地毯,还有一张懒人沙发。打造成了儿童的休闲区,方便父母和孩子一起游戏、阅读,一家三口享受惬意的亲子时光。

餐厅
放弃了传统华而不实的电视背景墙,打造成了强大的收纳电视柜。悬浮的电视桌,带了收纳抽屉。顶上是一排的吊柜,电视机的两边是收纳架,可以摆放了一些装饰品。

客餐厅都是木地板,中间隔着一条走廊。因为餐厅和玄关紧挨着,平时把餐桌椅靠着墙壁摆放着。墙壁的背景墙延伸了玄关背景墙的设计,一整面墙都是蓝色的洞洞板。

把餐桌往墙上靠,就可以当做办公桌来使用。墙上的洞洞板可不仅仅是装饰,还可以有无限的收纳可能。

开放式厨房
厨房紧挨着餐厅,是开放式的设计。L型的工作台,灰白色的主基调。不仅整体效果干净整洁,而且拥有很不错的收纳空间。白色的橱柜和吊柜,与灰色的地板和墙面瓷砖非常搭配,很有时尚感。

洗衣房
厨房再往里面是一个生活阳台,打造成了洗衣房。一整排的收纳柜,嵌入了叠拼的洗衣机和烘干机。美观又实用,还能创造不少的收纳空间。
推荐阅读
- 装修|乔迁新房3月以泪洗面!当初的不理智,连犯15个极品装修坑!作孽
- 装修|淋浴房还可以坐着洗澡,一开始很不理解,装修后才发现太实用了!
- 施工者|不管家多大,装修时做好这12处细节,美观与舒适并存,幸福感提升
- 心塞|5个月装修一套房,硬装让我喜出望外,结果家具一上全废了!心塞
- 疯狂|1月20日广州新房网签210套,增城以43套再次蝉联榜首!势头强劲!
- 装修|空调外机万万不能这样挂墙,若不是师傅提醒,我家都装错了!
- 洗头|崩溃现场:装修的10条坑,我都替你踩扁了,请你一定要避开
- 抽油烟机|婆婆抠出新境界,5万装修婚房还带家电,如此寒酸真让人不想嫁了
- 房子|越来越多人用这“两个方法”装修房子,可升值十几万!
- 卫生间|房屋装修6大暗坑,哪个踩了都会导致返工,希望你没踩到。
