【 莫兰|143平欧式风三居室,莫兰迪色富含生命力的色彩】简单、随性、不追求富丽堂皇的设计,不论是建筑或是居家空间,北欧人的住宅,总能让人从根源处感受到贴近自然、人性、质朴的美好。北欧的居家设计,有许多经典、历久不衰的作品,有追根究底的体贴设计,有富含生命力的色彩运用。
一进门就是客厅怎么装修?可以设置隔断或玄关,避免气冲大门,如果以低柜矮台成型的家具在空间内进行玄关隔断设计,就可以避免一进门就是客厅的情况,低柜矮台还可以起到划分空间的功能。

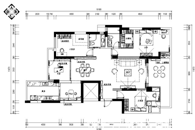
纯手工拼色腰线以及入户为起点,通过直线牵引出空间动线,使空间呈现出层次丰富的动态变化。
卧室床怎么摆放?一般来说舒适是卧室最大的诉求,好的卧室能给你带来一个舒适、深度的睡眠。而床是卧室的整个中心,它的摆放影响到整间卧室的格局,我们在装修的时候可以在床的两侧都预留一定的空间,让活动作息不会受到影响。

主卧采光度很好,利用原木的床搭配高级灰的床品很有质感,床上的壁灯很有文艺气息。
餐厅装修的时候一定要兼顾软装和硬装,把控好材质的对比和色彩的统一。冷暖色调搭配适宜,让视线更加柔和,居室更加温馨。

根据动线流畅上的考量,餐厅与客厅在同一空间。
厨房在装修的时候是一个难题,如果装修得不合适的话,那么以后用起来是非常麻烦,而且一般厨房空间相对狭小,想要在进行改装也无处可改了,所以厨房装修尽量一步到位!

厨房是U型设计选用了经典的灰白色设计,厨房的设计还是比较宽敞,利用地柜加吊柜来增加收纳空间,非常实用。

推荐阅读
- 卫生间|129平现代美式三居室,打造出一个舒适又温馨的美式家
- 三居室|118平现代风三居室,一个简单而纯粹还原生活色彩的家
- 郑州|买房月供曝光!郑州最新平均工资8694元,撑得起房贷么?
- 石家庄|144平的面积,无人值守棋牌室,这是如何做到的?
- 简单感|现实的平衡取舍,才是生活之道!143平现代风格设计欣赏!
- 她家148平米,进门就被玄关迷住,不做吊顶跟背景墙,阳台超漂亮
- 修建|精选10套三层户型图纸,占地面积均不足百平,尤其适合新农村修建
- 南通|拍卖成功!江苏南通一处197平住宅192万成交!
- 购房置业|农村建新房就选这套四层别墅,占地100多平,8间卧室人人都有地睡
- 现代简约|青岛房价不是低洼地了,房价高达1.6万一平
