建房来说对于每家每户都有自己的想法,一家人要反复商量,还要跟街坊邻居沟通,跟上边申请宅基地,所以在建房的时候要多琢磨,参考别人的房子,多听别人的建议,尽量让自己的房子造型美观,内部舒适实用。今天要分享给大家的是三套11米*8米的农村房屋设计图,您也可以提出意见,我们会根据大家的意见来设计修改。
别墅户型一:110平米三间两层农村别墅房屋设计图
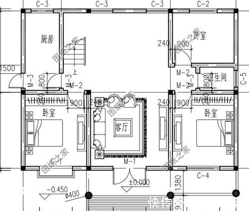
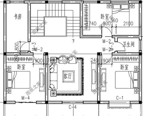
图纸介绍:本方案为110平左右三间两层农村别墅房屋设计图,户型经典、外观造型适合农村自建。

别墅效果图展示
占地面积:11.94m*8.94m,107平方米左右;
建筑层高:二层;
建筑高度:8.80米(含屋顶);
设计功能:
一层别墅户型:客厅、餐厅、厨房、卧室x3、卫生间;
二层别墅户型:客厅、卧室x3、书房、卫生间;

别墅一层户型图展示

别墅二层户型图展示
别墅户型二:11*8米三层别墅房屋设计图
图纸介绍:本方案为11x9三层别墅房屋设计图,含效果图片,本方案户型简单、实用,小户型设计,三层带大露台。

别墅效果图展示
占地面积:11.0m*8.8m,97平方米左右;
建筑层高:三层;
建筑高度:11.0米(含屋顶);
设计功能:
一 层:客厅、餐厅、卧室、卫生间;
二 层:休闲区、卧室x4、卫生间;
三 层:卧室x3、卫生间、大露台;

别墅一层户型图展示

别墅二层户型图展示

别墅三层户型图展示
别墅户型三:实用三层新农村住宅设计图
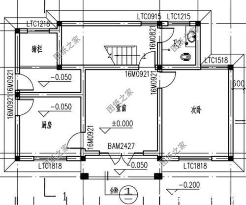
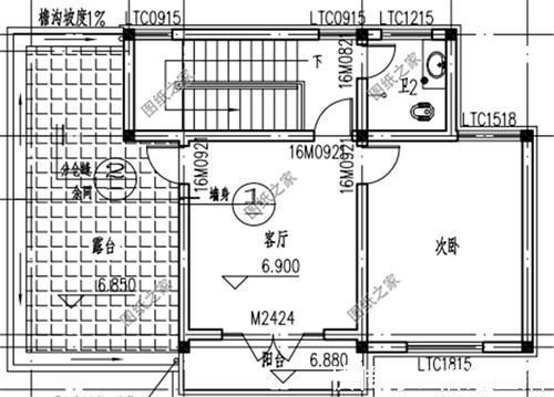
图纸介绍:本户型为100平米左右实用三层新农村住宅设计图,采光好,卧室多,外观造型美观,布局实用,十分适合农村自建。

别墅效果图展示
占地面积:11.9m*8.6m,100平方米左右;
建筑层高:三层;
建筑高度:11.8米(含屋顶)坡屋顶;
设计功能:
一层:猪栏、厨房、堂屋、次卧、卫生间;
二层:卧室、客厅、次卧、2间卫生间、阳台;
三层:露台、客厅、次卧、卫生间;

别墅一层户型图展示

别墅二层户型图展示

别墅三层户型图展示
【 农村|三款农村住房设计图,适合11米×8米的宅基地,收藏好开春就建】
推荐阅读
- 情形|速看!武汉住房公积金贷款信用审核新标准发布
- 缴存基数|@长春人 2022住房公积金缴存基数有调整 详解全在这
- 住房公积金|疫情之下,打破唯价格论 预见天津楼市未来趋势
- 购房置业|这个城市住房补贴都涨到600万了!
- 流拍|因城施策效果不断显现,保障性租赁住房继续发力
- 建房子|面宽11米, 进深16.5米的农村三层别墅, 前后有花院还带车库, 完美!
- 别墅|参观亲戚上海的豪宅,别墅硬是住成农村房,真是糟蹋了好房子
- 购房置业|今年起,农村老家的老房子,统统按照“新规”处理,子女提前知晓
- 住建部|高层“停建”?已明确:2022年按“新规定”处理,两类住房遭疯抢
- 修建|精选10套三层户型图纸,占地面积均不足百平,尤其适合新农村修建
