见过不少的装修,室内很豪华,看一眼确实很高大上,但这种过度装修的家住久了不仅难打理,而且还有一种不太真实的感觉,真正的生活环境应该是接地气的,看上去就有家的样子。下面这对夫妻的家,我认为就是最为接地气的装修,室内不豪华但很温馨,入住两年后,空间依然是如此的简洁大方,要装修的朋友,可以学学。

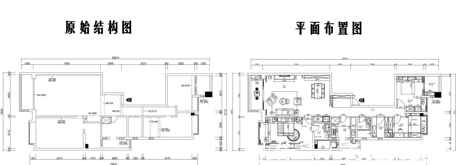
讲真的,我看到这套房子的原始户型图时,第一感觉就是很不好,厨房在中间,南北过道很狭长,中间还有一个大缺角。但装修就是如此神奇,在改造的时候可以把诸多不完美全给修饰掉。
改后的平面布置增加了一处玄关,保留了所有卧室供一家三口日常生活,下面就随我一起去看实景!
玄关

入户第一处就很接地气,不论是功能还是色彩搭配,都叫人很喜欢,酱色的大门也没有做任何的修饰,非常自然。

“L”型的鞋柜靠近室内处并没有做宽,而是在边上增加一个通透的屏风,这样做非常赞,进门后不会感受到迎面而来的压抑感,而且让空气对流的同时,化解在大门处将室内看光的尴尬。
进来后就是客餐厅了,两厅连在一起选择统一的现代布置,我们分别来看具体细节。
客厅细节

为什么说这个家接地气?看到顶上的主灯就知道了。我们知道无主灯设计很火,特别是像这样一体的大空间,如果走上大平顶,那是相当大气。但这个有小孩的家庭,还是希望室内更为亮堂,方便调皮捣蛋的小朋友自由玩耍,当然还有辅助的灯光,两个背景有装有小射灯,可实现不同场景的切换,譬如等小朋友睡着了,两个大人就能坐在沙发上看看电视,灯光柔和温馨,十分美好。

客厅面积不小,但选择的家具造型都很小巧,这样也是为了能腾出更多的地面出来,方便一家人互动,所以整个家通铺木地板,脚感很舒适。

蓝色的皮质沙发深邃静谧,放在家里很是优雅,这是女主人最喜欢的款式。右边搭配着头等舱的按摩椅,男主人洗完澡后就会坐在这里放松片刻,还有左边的小单椅搭配着两个小茶几,这样的混搭,正是自己喜欢怎么来,提升了幸福感。
装修不需要过于刻板
,就像上面提到的豪华装修,所挑选的家具一定会是全套的款式,如果放在家里只是为了好看,我更加喜欢像这对夫妻家的舒适度。
餐厅细节

玄关的背后就是餐厅,这里依然很简洁,功能很实用。融入一些自己喜爱的中式元素,让家的氛围更有格调。

靠墙定制的大柜子可以藏下很多生活用品,这个家住了两年看着还是像新的,这个大柜子可帮了不上忙,里面可都是生活中必不可少的家居物品,用柜门挡起来,看不见里面的乱,而且更好清洁。
推荐阅读
- 大悦城|家里这两个地方别漏了贴瓷砖,许多人为了省钱,入住就后悔了
- 别墅|买不起别墅,买了一楼带30㎡院子的房子,入住两年多,后悔了吗?
- 明贴|房子装修一定要装这几样东西,好多人没听劝,后悔入住才察觉
- 校地|“拎包入住”!四川大学院士公寓交付使用
- 贷款市场报价利率|中国近两年来首次下调房贷参考利率
- 填缝|新房入住5天没合过眼,这9处全部装错了,钱也没了房也毁了
- 洗碗机|厨房装修不要买这两种电器,入住后就知道有多不实用了
- 顶式|厨房这3样东西选择对了,基本就万事俱备,入住使用轻松方便
- 油烟|入住一月总结厨房10个装修遗憾,都是真金白银砸出来的经验!
- 后悔|入住新房1年好后悔:当初满意的25个装修细节,返工砸了10万
