中古风大别墅,9种色彩搭配3条动线,塑造华丽又精致的欧风空间
本案的房主很喜欢中古风的设计,不同于纯现代的风格,中古风既有中世纪的华丽奢美同时还兼有现代主义的设计延伸,是一种更富有质感和表现的家居设计理念。设计师在空间当中大量运用绒面以及金属材料对氛围进行渲染,三条迴型动线,九种色彩搭配,从而塑造出一个华丽精致的欧风空间。
案例:
288平中古风别墅
居住成员:
四人
房屋面积:
288平
房屋类型:
别墅
空间格局:
客厅、餐厅、厨房、卫浴×3、书房、休息室、陈列室、阳台、卧室×3
主要建材:
木作、雕塑、金属、清玻等
【 本案|中古风大别墅,9种色彩搭配3条动线,塑造华丽又精致的欧风空间】预算:
50万以上
设计师:
瀚高
本案考虑到房主全家的饮食需求,因为之前全家人也有多年海外生活的经历,不论是中餐或者是西餐都很能够接受。因此设计师做中厨和西厨,方便满足全家人的胃口。
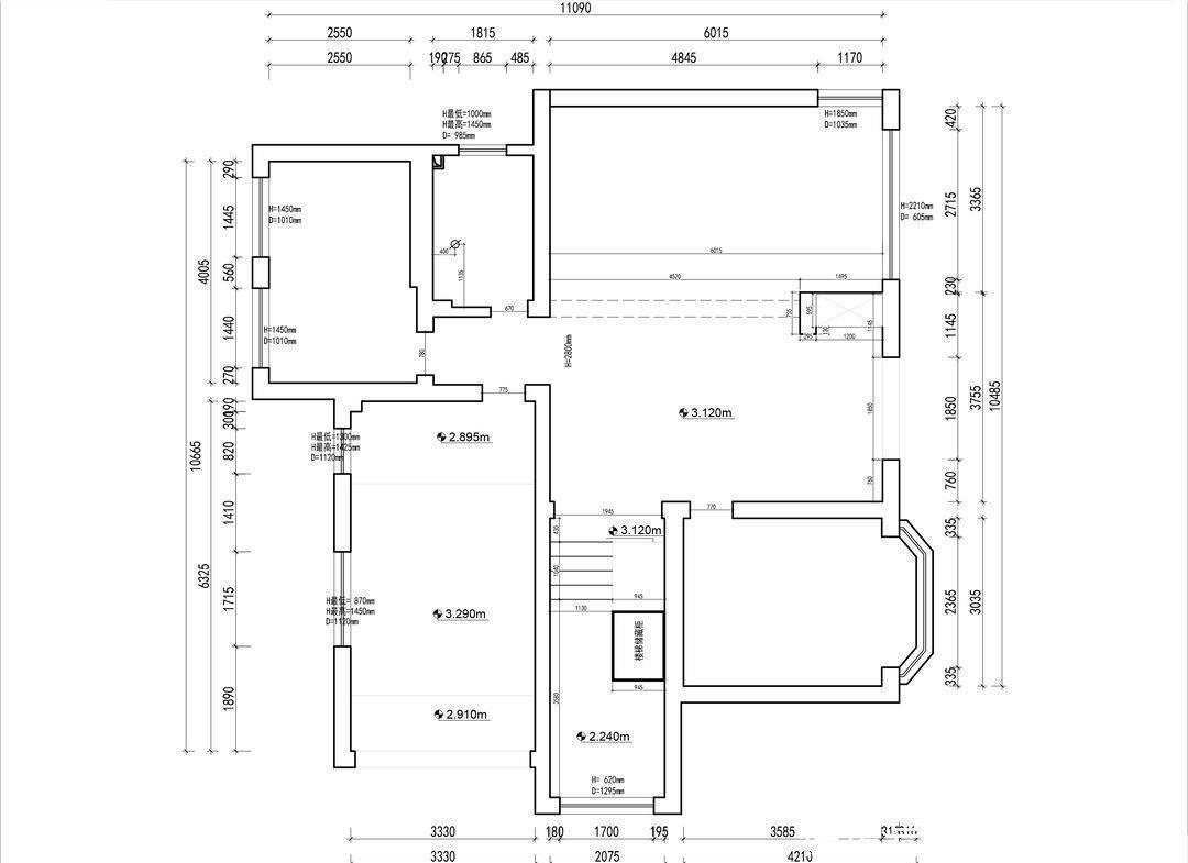
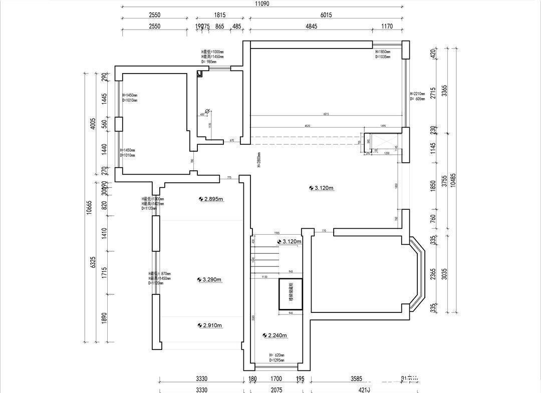
【户型图】

本案是一个别墅空间,坪数比较大且内部的格局设计也相对会更加复杂一些。设计师在内部格局方面还是做了不少的改动的,基本是为了扩充更多的功能区空间,像是衣帽间、卫生间都是拆除了部分的隔墙之后做了扩展,从而达到房主想要的效果。
【客厅】

设计亮点:造型挂画
客厅的沙发墙上有相当多的中世纪风格的油画艺术作品,加上一些造型挂件和装饰性的小镜子,很有一种古典欧式风格的感觉。沙发也都选用了绒面的材料,搭配金属质感的小几,轻奢氛围呼之欲出。

设计亮点:壁炉
客厅沙发正对着的就是一个壁炉造型墙面,其实这里也是电视墙。因为原本这里是没有墙体的,为了实现场域分割同时安置电视,做了一个小隔墙,两边动线通畅,同时设计师还在下面做了一个壁炉。墙体对面是一个柜子,充分利用空间,扩大储物机能的利用率。

设计亮点:内嵌柜体
客厅的另一侧墙面重新设计,用砖砌成了四等分的空间,并且内嵌柜体,复古风的柜子很有一种唐人街中古老店的味道,同时凸显出来的罗马柱又让整体造型多了些精致典雅的感觉。
【厨房】

设计亮点:宽敞阔朗
因为空间本身面积比较大,因此厨房空间也相对宽敞一些。没有做吊柜的设计,一个是因为有窗户的缘故,再者是因为储物空间比较充足。
【餐厅】

设计亮点:吧台
其实餐厅和西厨是连在一起的,中间的小吧台就是一家人的餐桌,不仅可以作为轻食区同时也可以在这里阅读或者是工作。空间整体色调以墨绿为主,加上木系的地面和谷仓门,古朴氛围格外的浓郁。
【卫浴】

推荐阅读
- |户型改造丨青岛136㎡原木风大收纳,LDK、套房主卧
- 三室|136㎡ 简约风三室入户鞋柜是小型衣帽间,真是将收纳进行到底
- 本案|240㎡极简风设计,微白初冬,怡然清谈
- 装修|170平简洁明快三居室,经济实用,美观大方,温馨典雅
- 终本案件|富力地产所持北京富力8100万元股权被冻结
- 角度看|88平现代简约风大量的原木着大白墙,干净澄明有质感的空间
- 现代风|140平现代风大平层,宽敞明亮多了一份温暖的气息
- 北京旅游网|无滤镜实拍!北京这条街充满轻奢中古风,一秒回到明清!
- 风大时|三个技巧,让你家的门窗更隔音
- 现代|180平错层·现代风格设计
