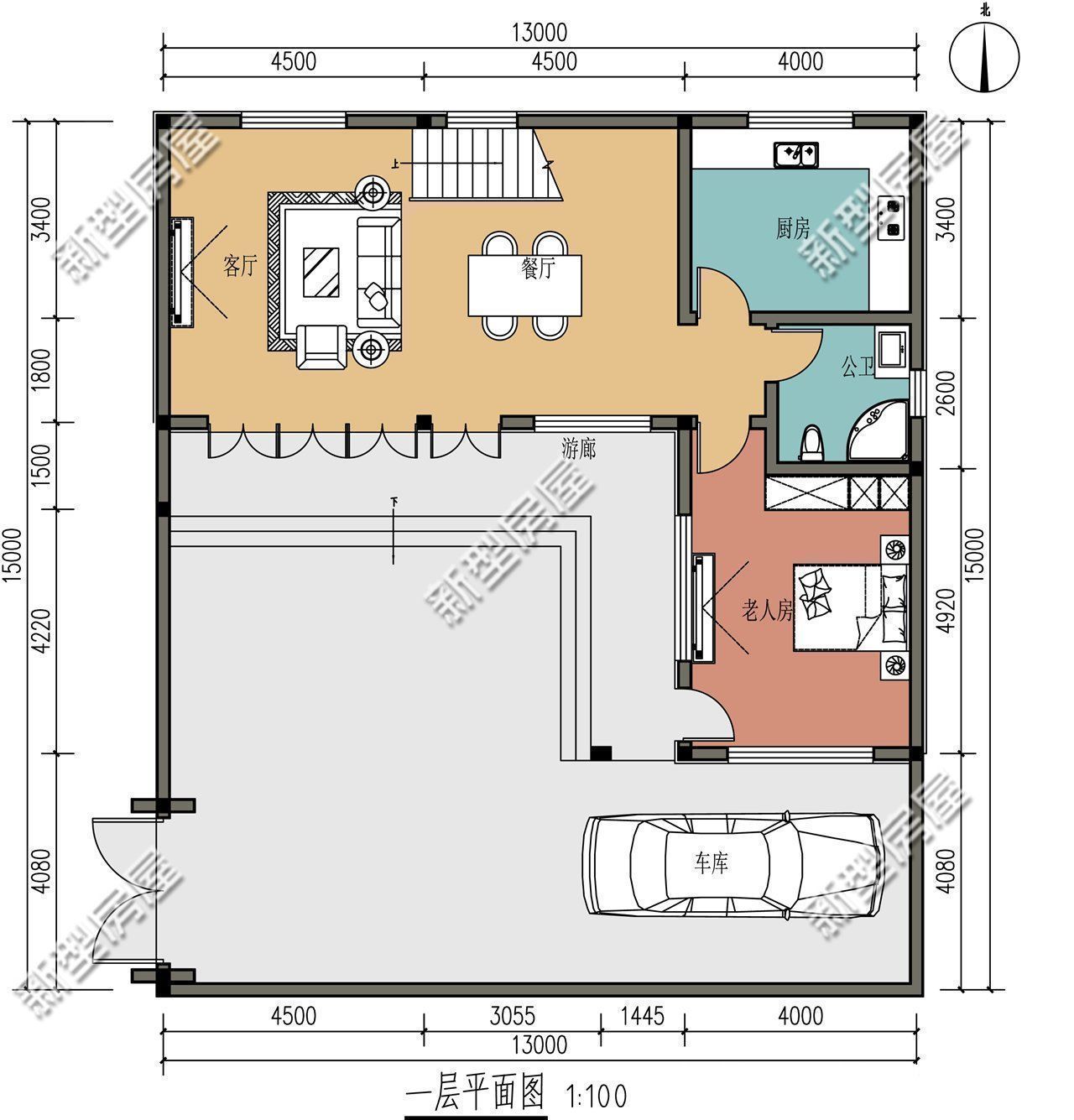
户型6:诗情画意的中式之美,砖混结构,毛坯造价18万起

占地尺寸:13.24m×24.24m
占地面积:176㎡
建筑面积:176㎡
建筑高度:6.2m
建筑情况:设5室 2厅 4卫 1厨 1茶室

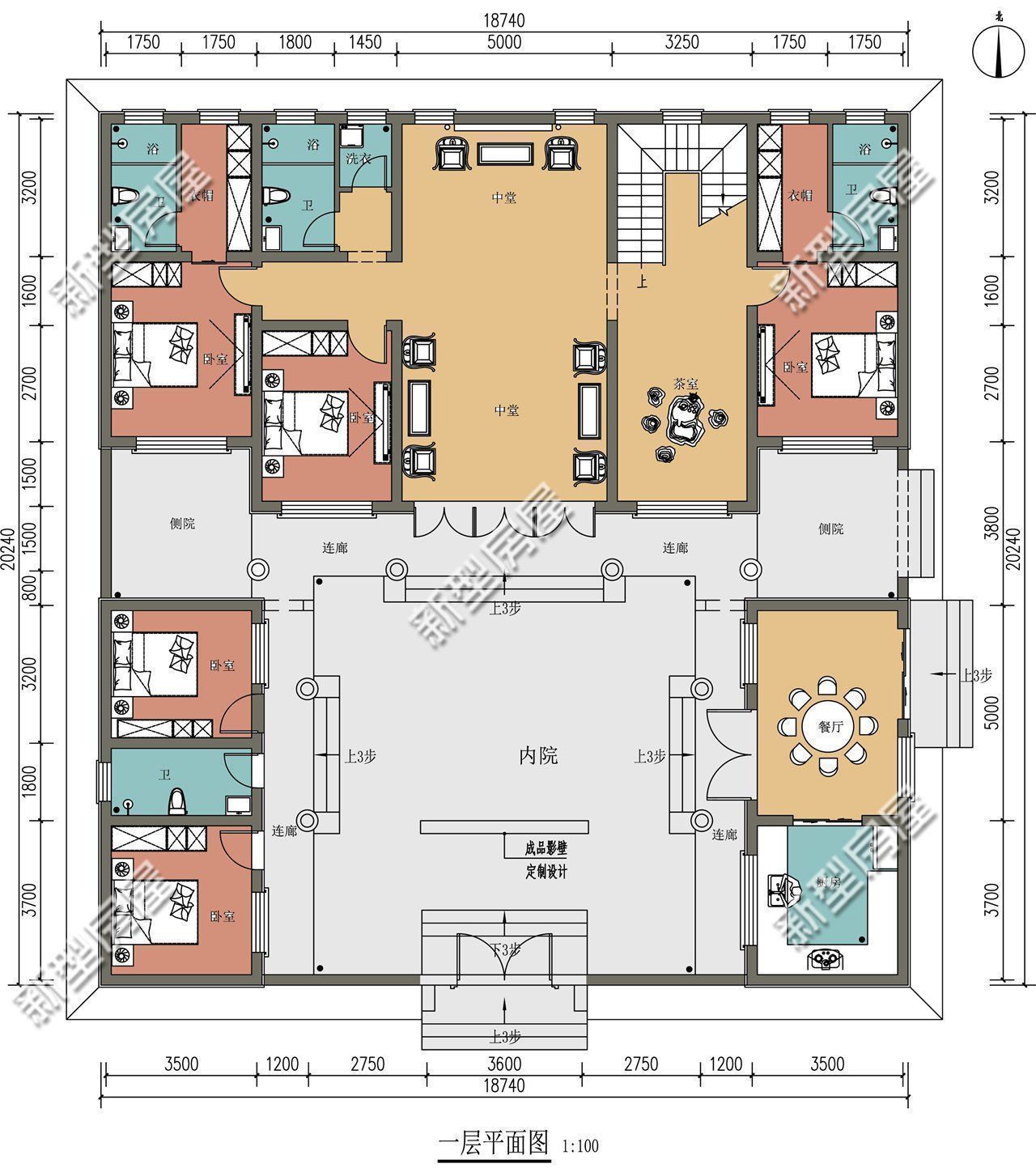
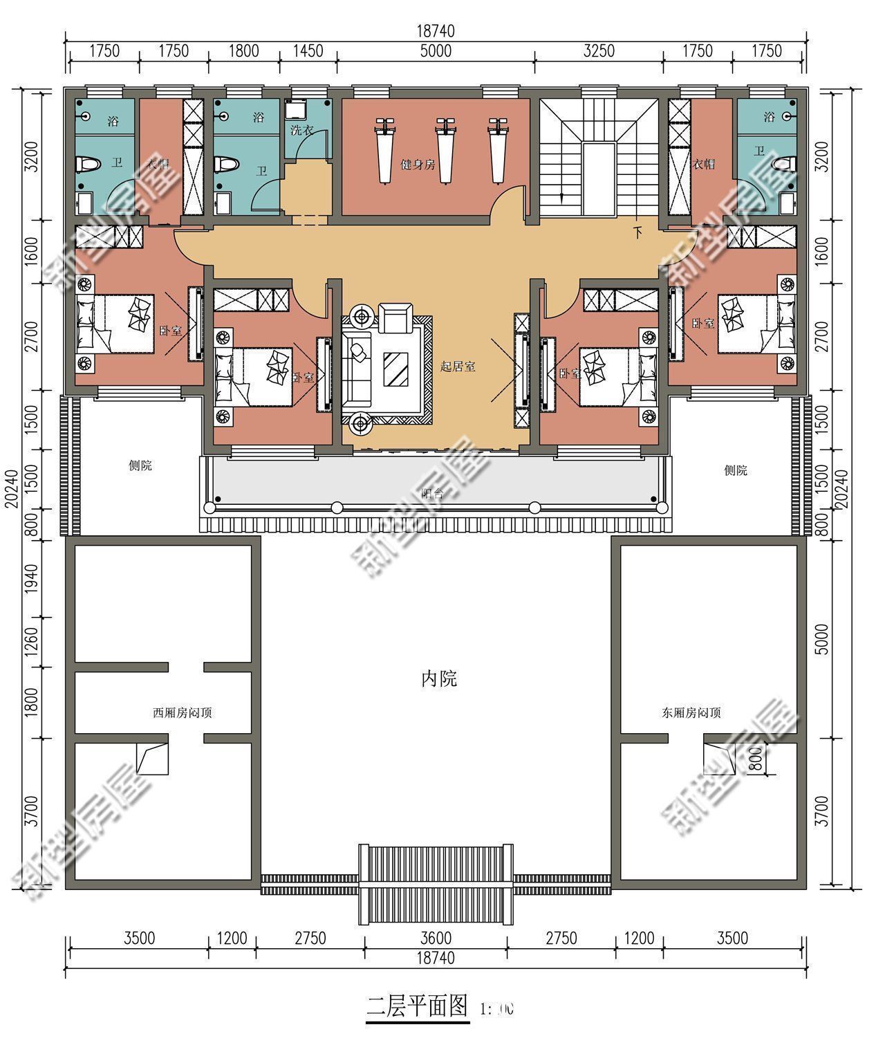
户型7:苏派三合院,砖混结构,毛坯造价45万起

占地尺寸:18.74m×20.24m
占地面积:257㎡
建筑面积:428㎡
建筑高度:9.6m
建筑情况:9卧 1厨 1餐 1中堂 1茶室 1健身房 7卫 1洗衣房 4衣帽间 1大阳台


户型8:素雅中式合院,砖混结构,毛坯造价25万起

占地尺寸:13×15m
占地面积:195㎡
建筑面积:219㎡
建筑高度:9.3m
建筑情况:4室 2厅 1厨 1餐厅 2卫 1茶室


关注新型房屋,还有更多中式别墅图纸分享。
推荐阅读
- 饱和度|173㎡轻奢新中式,古典和现代的碰撞,唯美浪漫!
- 建房子|面宽11米, 进深16.5米的农村三层别墅, 前后有花院还带车库, 完美!
- 别墅|参观亲戚上海的豪宅,别墅硬是住成农村房,真是糟蹋了好房子
- 购房置业|今年起,农村老家的老房子,统统按照“新规”处理,子女提前知晓
- 修建|精选10套三层户型图纸,占地面积均不足百平,尤其适合新农村修建
- 上海市|2022年农村人要“享福了”?实行按户补贴,跟村民们的房子有关
- 洗衣房|这三款农村四合院设计图让不少城里人羡慕,父母看了也欢喜
- 灵魂深处|全屋定制案例|儒雅新中式,展现灵魂深处的东方情怀
- |中式庭院,这才是最让我们心动的院子
- 购房置业|农村建新房就选这套四层别墅,占地100多平,8间卧室人人都有地睡
