不足80平的小家,卧室里有大浴缸,客厅里有健身房,超实用
房屋整体不足80平方,但是业主小夫妻俩希望家里能够有宽敞的公共空间,满足在家健身的需求。而且主要是两人居住,所以希望家里更能贴合年轻时尚的气息,感受独一无二的家居风格。

房屋户型
:两室
房屋面积
:79平方米
装修预算
:20万
所在城市
:四川 成都
设计师
:李文伟
主要建材
:大理石材、烤漆玻璃、天然木皮、进口耐磨地板、特殊磁漆


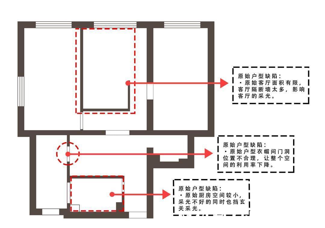
原始户型:
1:空间布局十分不合理,不必要的隔断太多,影响了采光和通风,还把整个空间划分的过于分散。
2:卫生间非常小,没有明确的干湿分离,也无法满足业主希望浴室里有浴缸的要求。
3:厨房的功能比较少,没有足够的收纳区,操作区也比较拥挤。

客厅主要是打通了不必要的隔断,增加空间的功能,让布局更加的合理自然。

厨房定制了收纳功能强大的橱柜,让烹饪的流程更加的简单方便。

整个空间改造之后非常的通透,空间布局更加合理,动线上也更加的流畅自然,打通了不必要的隔断之后,保证了空间的采光和通风,搭配精心挑选的软装,更显空间的精致优雅,足可以满足业主两个人的所有需求。

【玄关】

设计重点:划分出独立私密的空间
原来的玄关可以直接看到室内,十分的没有私密性和安全性,而且也没有独立的鞋柜,一家人的鞋子都只能在简易的木架上摆放。改造之后用超薄的蓝色鞋柜代替,满足了玄关的收纳需求,木格栅划分出独立的玄关,确保空间互不干扰。
【客厅】


设计重点:复古风情十足
客厅只保留了基本的实用功能,简约的双人沙发搭配异域风情十足的抱枕,鱼骨拼接木地板烘托出客厅的沉稳和大气,桃木色电视柜巧妙地迎合了整个空间氛围。这里既可以成为招待朋友的公共区,又可以作为两个人的活动区。

没有茶几的设计虽然感觉有些别扭,但是并不会影响到客厅的功能,留白的空间则可以作为女主人的瑜伽区,解决了业主想要在家中健身的问题。

除了公共活动区,在客厅沙发后侧是设计师为业主划分出的办公区,简约的现代桌椅勾勒出轻松自然的办公氛围,一直延伸到办公区的复古折页窗让两个空间风格保持和谐一致。

推荐阅读
- 卫生间|129平现代美式三居室,打造出一个舒适又温馨的美式家
- 三居室|118平现代风三居室,一个简单而纯粹还原生活色彩的家
- 郑州|买房月供曝光!郑州最新平均工资8694元,撑得起房贷么?
- 石家庄|144平的面积,无人值守棋牌室,这是如何做到的?
- 收纳|去邻居家参观才知道,卫生间不装柜子这样设计,防潮耐脏好清洁
- 卫生间|什么才叫好户型?来看看这5个标准,你家房子符不符合?
- 简单感|现实的平衡取舍,才是生活之道!143平现代风格设计欣赏!
- 她家148平米,进门就被玄关迷住,不做吊顶跟背景墙,阳台超漂亮
- 卫生间|房屋装修6大暗坑,哪个踩了都会导致返工,希望你没踩到。
- 修建|精选10套三层户型图纸,占地面积均不足百平,尤其适合新农村修建
