今天分享的是一套建筑面积102平米的现代北欧风二居室案例,房子整体的搭配就给人一种年轻大方的感觉,设计师通过几何花砖、开放式的布局和舒适的软装来营造出一种悠闲自在的居住氛围,居住其中也会让人感觉羡慕不已。

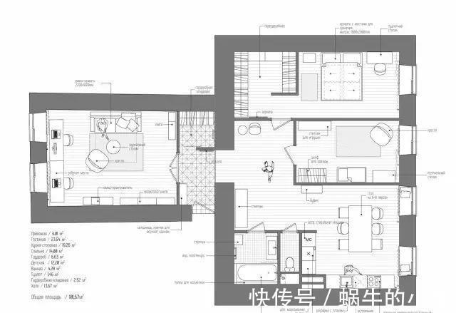
平面布置图

入户玄关走廊的地面铺贴了黑白色的几何花砖,在墙角摆放一个换鞋凳,换鞋凳上方做挂衣钩和置物架的设计,虽然收纳不多,但也够用。

玄关走廊的边上是客厅空间,屋主更多的是把它作为一个休闲、阅读区来使用,两个带玻璃柜门的书架和电视柜结合,让客厅拥有更多储物空间。

简简单单的灰色布艺沙发和地毯,搭配一个迷你的茶几和挂画、绿植、鹿角装饰等,客厅从软装细节处展现出了北欧风独特的美感。

餐厅和厨房被放在了同一个空间,灰色调的橱柜和整墙的柜子满足了餐厨的收纳需求,白色的小砖和抽油烟机处的黑色墙面形成对比,让厨房更加时尚。

餐桌椅选择了比较简单的款式,齐家小菜很喜欢这种不同颜色和款式的餐椅混搭的设计,给餐厅带来了更多的变化。

【 花砖|102平的现代北欧风二居室,悠闲自在的设计让人羡慕】主卧室的面积并不是很大,以白色为主的设计搭配浅木色的地板,带来了简洁而又舒适的感觉,角落里的小串灯也给卧室增添了一些色彩。

在卧室靠窗的地方还摆放了一张书桌来代替床头柜,小书桌方便屋主平时化妆或者是工作,齐家小菜觉得大家都可以尝试这样做。

卫生间内也是以黑色和白色的花砖来作为点缀,不同的花砖带来更为时尚的感官。用浴缸来代替淋浴房,可以拥有更为惬意悠闲的沐浴时光。

马桶被放在了另一个单独的空间内,所以卫生间内有了更多的空间来做收纳,梯子状的收纳设计也是很多卫生间设计当中有用到的。
推荐阅读
- 卫生间|129平现代美式三居室,打造出一个舒适又温馨的美式家
- 三居室|118平现代风三居室,一个简单而纯粹还原生活色彩的家
- 郑州|买房月供曝光!郑州最新平均工资8694元,撑得起房贷么?
- 石家庄|144平的面积,无人值守棋牌室,这是如何做到的?
- 简单感|现实的平衡取舍,才是生活之道!143平现代风格设计欣赏!
- 她家148平米,进门就被玄关迷住,不做吊顶跟背景墙,阳台超漂亮
- 修建|精选10套三层户型图纸,占地面积均不足百平,尤其适合新农村修建
- 南通|拍卖成功!江苏南通一处197平住宅192万成交!
- 购房置业|农村建新房就选这套四层别墅,占地100多平,8间卧室人人都有地睡
- 现代简约|青岛房价不是低洼地了,房价高达1.6万一平
