建筑面积|2021年回农村建房,爸妈和我各选了一套图纸,你们看看哪套好
一家三口在外打拼,好不容易有了点积蓄,打算2021年回农村建房。但在建房的问题上却出现了分歧,爸妈和我各选了一套图纸,三人各执己见,谁也不肯让步。你们帮忙参考参考,看看哪套图纸好。老爸选的户型基本信息:占地尺寸:11.84m*14.84m占地面积:89.48㎡(不含庭院)建筑面积:165.14㎡建筑高度:8.528m建筑情况:设4卧室 1厅 2卫 1露台

白墙灰瓦,木质围栏,这是中式的古韵,也是中式的气度,老爸喜欢的就是这样的中式别墅。家中北侧还有一间副房,老爸打算拿那间副房做厨房使用,这样油烟也不会影响到室内。餐厅客厅贯通设计,室内宽敞通透。一层设立两个卧室,一主一客,布局合理。二层也设立3间卧室,满足日常使用也足够了。

【 建筑面积|2021年回农村建房,爸妈和我各选了一套图纸,你们看看哪套好】
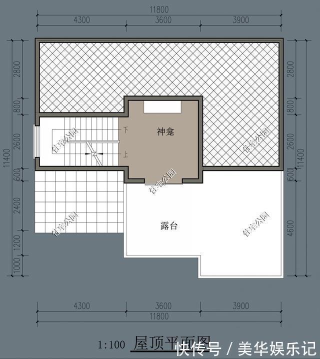
老妈选的户型基本信息:占地尺寸:11.8m*12.2m占地面积:142㎡建筑面积:436㎡建筑高度:13.1m建筑情况:共设6室 4厅 4卫 2厨 1阳光房 1玄关 1书房 1储物间 1车库 2衣帽间 1起居室 1备用空间 1阳台 2露台 神龛

老妈喜欢的是欧式风格,外观采用质感十足的真石漆装饰,营造出典雅、高贵的气氛。而大气的门斗和拱形窗的融入,也让房间外观造型更加丰富,颜值也还是不错的。

一层架空处理,设置车库、柴火灶、储藏室等功能区域。客厅位于二层,招待客人稍微有点不方便。二层三层都是多卧室设计,逢年过节也不用担心亲朋好友的留宿问题。神龛设置在顶层,重大节日方便祭拜。



我选的户型基本信息:占地尺寸:11.6×13.7m占地面积:118.81㎡建筑面积:311.4㎡建筑高度:10.62m建筑情况:6卧 3厅3卫1厨 1书房 2阳台 2露台 1玄关 1庭院

我喜欢简约大气的现代风格,选的这套图纸看似布局简单,但艺术气息十足。一方舒适庭院加上时尚大气的落地窗,保障了生活舒适性。

一层设立一个宽敞的挑空客厅,配上旋转楼梯,很有档次感,招待客人时也更有面子。餐厅独立于居室之外,与厨房相连,有朋友拜访时,在独立餐厅用餐会更显尊重。每层各两个卧室,足以满足日常使用需求。顶层设立一个观景露台,方便晾晒衣物、乘凉观景。


综合算下来,这3套图纸造价其实相当不大,你们觉得哪一套更适合农村呢?
推荐阅读
- 房价|房地产要变回支柱产业,你知道吗?
- |最高暴涨70万!宁波二手房市场即将回暖?
- 安置|上城区紫阳街道加速回迁安置 焕新美好家园
- |“最惨购房者”相关话题登热搜榜首,到底是怎么一回事?
- 中海珑悦府|中海珑悦府好不好?置业顾问从项目现场发回新组图
- 融创中国|融创手握1600亿现金,回笼资金超300亿元,孙宏斌有牌可打了?
- 厦门|2021年中国新增6座超300米摩天大楼,数量领跑全球
- 瓷砖|远嫁十年回娘家,走到家门口房子已经旧貌换新颜了,都快不认识了
- 鞋柜|我家无玄关的玄关设计超赞!左邻右舍来参观,看完都要回家照着装
- 台州|杭州房价连续上涨12个月,涨幅领跑全国,楼市要回到2016年巅峰?
