今天给大家分享这套建筑160㎡新房,女屋主是一位90零后的家庭主妇,算是在家专门带孩子。这是属于她家人生第一套房子,男屋主在外面努力赚钱养家,装修只能由女屋主负责了,而且还带着孩子,对于一个女人来说算是比较辛苦!不过很庆幸的是,装修过程两夫妻没有任何的争吵,即使买家具家电和材料等都没有分歧,有什么决定一起商量,很和睦!现在已经装修完工了,面积比较大,前后装修花了38W,装修北欧风格,全屋简约舒适,对于我来说客厅电视背景墙实在喜欢,忍不住给大家晒晒!正在打算装修的业主喜欢这样的装修,可以做参考哈。

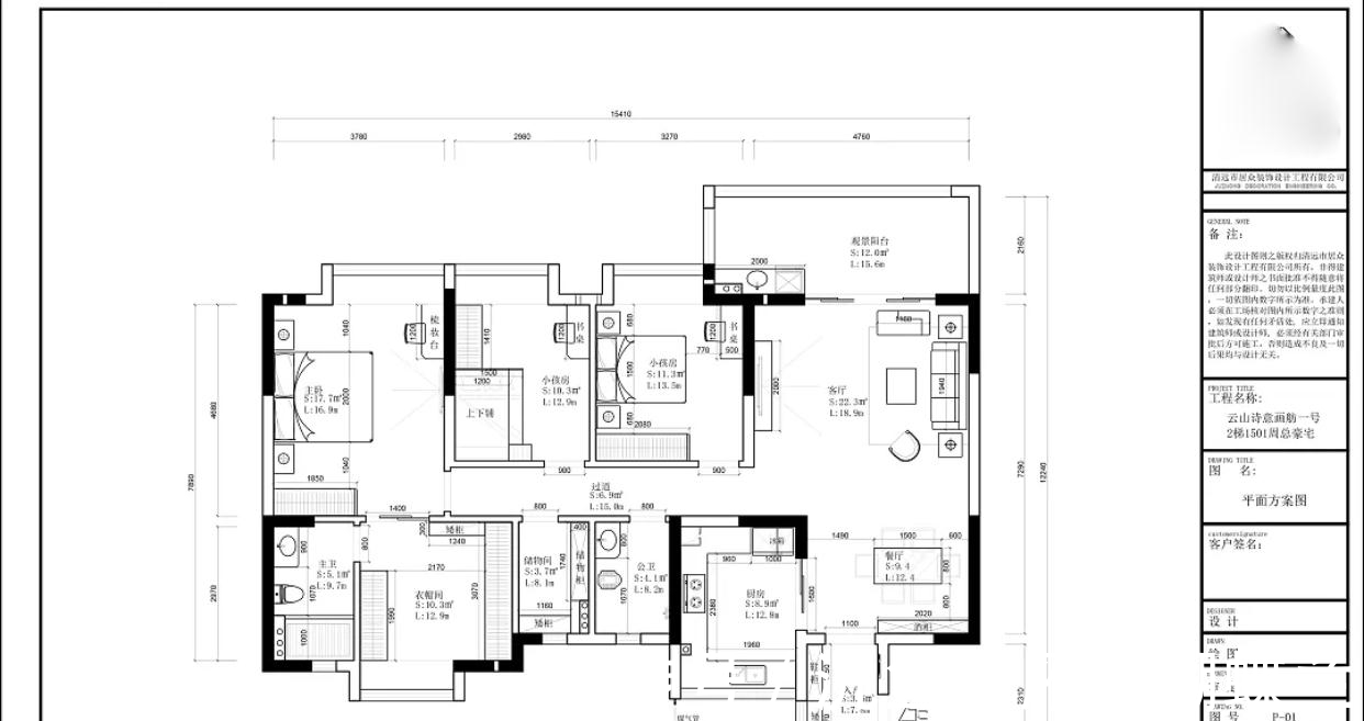
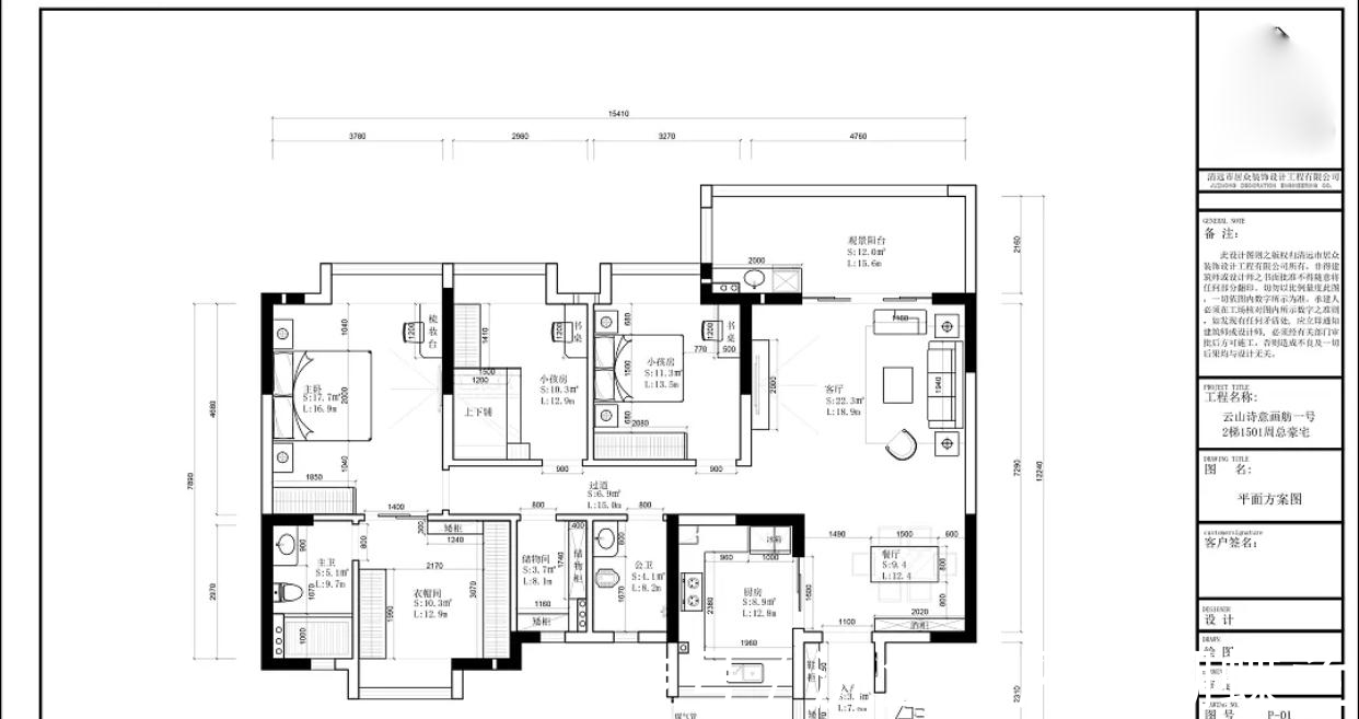
从户型图上来看,算是比较标准的四房两厅的户型了,户型方方正正,不想要修改墙体,室内也比较敞亮,超喜欢这样的户型,动静空间部分非常合理。

入户大门重新换了一个白色的子母门,效果非常漂亮,换了大门相对会比较安全,主要是考虑到这点,而且与整个空间搭配很协调。

入户玄关的设计可以说费力合理,而且能让人进来眼前一亮,效果非常漂亮,大气!玄关设计做了换鞋凳,平时可以很方便的换穿鞋子,非常实用。墙上挂着一幅非常漂亮的装饰画,可以起到很抢眼的装饰效果,显得空间比较丰富多彩。

玄关鞋柜中间放着白色的毛毯,效果非常漂亮,而且还安装了灯可以起到照明的效果。鞋柜中间可以摆放装饰品或者钥匙等其他,很实用。

餐厅空间不是很大,旁边打了一个酒柜,对于她家生活需求,酒柜不单单是为了收纳酒瓶而已,平时一些东西完全可以收纳到酒柜上,很实用,而且空间也没有浪费,设计也比较合理!餐厅布置方形大理石餐桌,餐桌椅的款式特别时尚,超喜欢。

餐厅墙上挂着两幅装饰画,通过顶面射灯的光照衬托,可以起到非常漂亮的装饰效果。两幅装饰画的画面风格完全不同,可以起到很好的对比!
【 书桌柜|160㎡新房,装修花了38W,全屋简约舒适,电视墙实在喜欢!晒晒】
电视墙实在喜欢,直接是用硅藻泥做的效果,有点类似文化砖的感觉,很大气。对于我们年轻人来说,不是很喜欢太过于复杂的造型,往往这种简约,而且很容易出效果的装饰很满意。电视机是挂在电视墙上,相对比放在电视柜更安全一些,毕竟家里有小孩子。

真皮的沙发坐着很舒服,显得很有档次,也比较耐脏。墙上的装饰画也很漂亮,与整个空间搭配很协调,很完美。那么大的空间,花了38W装修还是比较划算的,很温馨。

过道比较常,有四个房间,顶面原本是有房梁的,做了吊顶刚好可以挡住,显得比较美观!通过筒灯的光照,照明亮度最够,很温馨啊。
推荐阅读
- 餐边柜要做成什么样子才实用又好看看看这几款餐边柜设计
- 地板|160㎡四居室,玄关比我家卧室都大,这才是真正的低调奢华有内涵
- 床头柜|95后姑娘的“穷装”卧室火了,环保又精致,软装的力量真强大
- 置物区|全屋定制柜子时,记得把这3个柜子做到位,钱不白花用着也舒服!
- 融创中国|融创手握1600亿现金,回笼资金超300亿元,孙宏斌有牌可打了?
- 收纳|去邻居家参观才知道,卫生间不装柜子这样设计,防潮耐脏好清洁
- 小房间|参观140㎡大婚房,朋友都夸餐边柜有档次,我却更喜欢主卧的飘窗
- 衣柜|定制柚木衣柜,衣柜的黄金尺寸一定要知道
- 垃圾桶|家庭主妇:厨房地柜不要全打满,空一格更实用!后悔我家装太早了
- 收纳|打柜子不是越多越好,6个地方别随便装,多装一个都闹心
