户型|58万盖一栋中式三合院,兄弟双拼共庭院,享受和谐幸福的生活
农村宅基地够大,最好是建传统的三合院。灰瓦白墙青砖是传承几千年的经典,外观耐看,作为传世之宅一点不为过;三合院一般是一到两层,接地气更适宜居住,试想入户就是上百平的庭院,庭院周围是通过连廊连接起来的各个房间,这种房子谁不爱呢?

今天要分享的是一款两层的三合院,占地265平,户型方正带露台,每间卧室都带独立卫生间,茶室配有独立的厨房,两兄弟合盖起来花费58个W。

外观上属于对称式设计,窗户做了简化设计,传统的三合院结合了现代风的玻璃别有一番风景。正屋中间是堂屋,沿着堂屋中轴线分下来左右户型相同,属于一个双拼户型的三合院


别墅图纸编号:TC2163
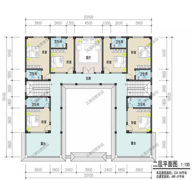
面宽:20.1米,深度:19.1米
结构形式:框架
占地面积:265.63平方米
【 户型|58万盖一栋中式三合院,兄弟双拼共庭院,享受和谐幸福的生活】建筑面积:489.67平方米
建筑层数:2层

一层平面功能布置:庭院、走廊、中堂、茶室、2间客厅、3间餐厅、3间厨房、2个公卫,3间带内卫的卧室。

二层平面功能布置:客厅、走廊、露台,6间套卧均带独立卫生间。

推荐阅读
- 屋主|56㎡小户型老房改造,小而美的设计!
- 小户型|发现丈夫赠人房产 妻子怒讨买房款
- 卫生间|什么才叫好户型?来看看这5个标准,你家房子符不符合?
- 修建|精选10套三层户型图纸,占地面积均不足百平,尤其适合新农村修建
- 住房公积金|什么才叫好户型?来看看这5个标准,你家房子符不符合?
- 民营企业|小户型必看扩容6招,让家里每 1㎡ 都不浪费!
- 别墅|土豪农村盖大别墅,人人羡慕,如今却成为全村人眼中的大笑料
- 山东省|好住│金牛岭片区的刚需户型,两梯两户还配入户花园
- 公卫|回农村建房,展示一套“牛”户型,二楼稍微改动就完美了
- 户型|北漂夫妻买下24㎡婚房,柱子4米宽,窗台就占户型面积一半
