用木元素渲染空间,舒适又有设计感,打造空间感极强的家
业主平时工作非常忙碌,需要到处出差奔波,所以他希望自己的家能够比较温馨和简单,能够让他有一个足够放松身心的地方。不需要设计得多么华丽和复杂,只需要能够容纳下自己的小小理想即可,回到家打开灯就能看到家的安逸和舒适。

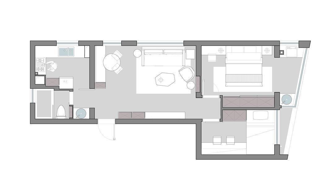
房屋户型
:两室
房屋面积:
90平方米
装修预算
:30万
设计师:
李文伟
主要建材:
线板、木皮、喷漆、大理石、黑铁漆、铁件、玻璃、木地板、壁纸


户型是传统的长方形结构,采光并不好,而且存在比较明显的结构缺点,厨房等主要生活区的面积都比较狭小,无法满足正常的使用需求,整个空间都没有一个完整的收纳区,一些日常的物品都只能散落在外,影响了整体的美观。

改造重点:
1:主卧和次卧进行了位置的更换,这样不仅增加了卧室的舒适感,也满足了不同的使用需求。
2:餐厅借用了部分客厅的面积,利用软装满足多人就餐的需求。
3:次卧增加了可以收纳的置物隔板,不仅不会占用空间,还能增加实用功能。

【客厅】


设计重点:原木色和白色的组合
客厅采用了大面积的原木色和暖白色,十分的清新和自然。大量的定制木质家具不仅满足了正常的实用需求,也减少了空间的压抑感和紧凑感。

【 收纳|用木元素渲染空间,舒适又有设计感,打造空间感极强的家】角落里摆放的小人偶十分的俏皮,更增加了空间的延伸感。

电视背景墙的收纳柜设计得十分巧妙,利用一根黑色隔板穿插进去,不仅突破了传统的古板,也增加了额外的小物件收纳区,实用感十足。

木质隔板下方的隐藏灯带既能保证空间足够明亮,又增加了温馨静谧的安逸感。

大面积的木元素,浅色系的组合沙发,凸显出客厅的安逸和温馨。平时也可以席地而坐,感受木地板的自然,放松自己的身心。


沙发边的绿植又增添了一丝绿意。


进行挑选的各种家具,都是房间里不可缺少的主角,点缀着日式的简约风情。
【餐厅】
推荐阅读
- 收纳|去邻居家参观才知道,卫生间不装柜子这样设计,防潮耐脏好清洁
- 收纳|打柜子不是越多越好,6个地方别随便装,多装一个都闹心
- 收纳|这8个位置装修记得装柜子,收纳面积增加20㎡不是问题!
- 收纳|床尾墙这个小地方,装修时容易忽视,到底该如何设计呢?
- 纸袋|她家房子不大,但全屋“隐形”收纳确实惊艳,真是美观与实用兼具
- 小物件|这10个收纳小物件,一物多用太巧妙,家里有的别再闲置了!
- 镜面|104平现代风两居室,美式元素护墙板,构建高雅生活空间
- 装修|玄关太窄怎么办?老师傅建议这样装修,收纳多还宽敞
- 盐城|走进古天乐在香港的家,窗户全用木板遮住,外人几乎看不见里面
- 收纳|一年卖30亿!呼和浩特《城市年度成交榜》金地江山风华喜提榜首
