大家好!都说越优秀的女人越容易单身,无论是国内还是国外都是这样。宅哥都记不清分享了多少个单身女士的室内装修案例了,昨天我们分享的是一位上海的单身女程序员的53㎡小户型的装修设计案例,有兴趣的朋友可以到我的主页翻看。本篇文章给大家分享的这套套内面积56平米的公寓的装修案例,业主也是一位单身女性。
这是一套二手房,原始布局中有两个卧室和两个卫生间,一个面积不大的厨房和餐厅,以及一个小的阳台。业主是一位年轻的女性,自己创业开了一家公司,一个比较成功的女性,32岁,单身。业主需求:①宽敞舒适且独立的卧室②衣帽间③大浴室④宽敞明亮的客餐厅⑤功能齐全的现代化厨房⑥现代风格设计⑦尽可能多地使用天然的材料
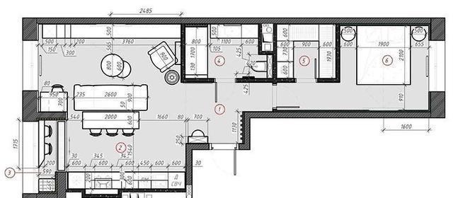
设计师根据客户的需求,对空间进行了重新规划,设计出了上图的平面布置:1.拆除了小卫生间,扩大了厨房操作台的面积。2.舍弃了一间卧室,厨房、餐厅、客厅一体化设计,通透明亮又宽敞。3.扩大了卫生间面积,重新规划布局,移除了洗衣机位置摆放马桶,满足业主需要一个大浴室的需求。4.卧室装上门,形成一个私密空间,在卧室内隔出了一个步入式衣帽间。下面来看看完成后的实景效果吧。
入户门厅开放式设计,没有设计鞋柜或者隔断,入户门左侧墙上设计了一个梳妆柜作为梳妆台,下方摆放软凳作为梳妆凳和换鞋凳使用。另一侧墙面上用原木板硬包设计,弱电箱嵌入墙中。这里重点说一下入户门正对卫生间门的问题,这是一个国外的案例,他们不信风水,所以没有进行错开或者遮挡,大家装修的时候可以设计一个隔断,就能解决入户门正对卫生间门的问题。
化妆台对面卫生间门旁边墙面上设计了一面全身镜,方便出门的时候整理着装。厨房、餐厅客厅一体化设计,让整个空间宽敞通透。沙发和餐桌作为功能区隔断,各个功能区的顶面设计也不同。
厨房橱柜靠墙一字型设计,两侧立柜中嵌入冰箱、微波炉、烤箱等厨房电器。整体白色的柜门中点缀了原木色的吊柜和黑色的大理石,整体给人一种简约大气的感觉。
挨着沙发摆放的神色大理石餐桌和深色的沙发颜色呼应,简约大气。餐桌顶面上的几个黑白色的圆形吊灯,给空间增添了一抹高级感。电视背景墙以原木色搭配黑色设计,大气感十足。
客厅深色的布艺沙发搭配黑色台面的茶几,为了让空间不过于冷淡,用了黄色和黄铜色进行点缀。客厅顶面白色的吊顶中间用原木色的木条作为装饰,别致温馨又大气。客厅另一侧墙面以灰色为主色调,上面点缀了几个白色山石状的石膏造型,简约而不简单。
客厅靠窗还设计了一张书桌,和沙发之间用木质栅栏隔开,既呼应顶面造型,又作为功能区隔断。墙面上用了一幅装饰画作为点缀,让墙面不会显得那么单调。造型别致的台灯给人眼前一亮的感觉。
推荐阅读
- 厨房|一居室也能如此精彩,展现单身人士的高端生活,享受生活的乐趣
- 地板|160㎡四居室,玄关比我家卧室都大,这才是真正的低调奢华有内涵
- 床头柜|95后姑娘的“穷装”卧室火了,环保又精致,软装的力量真强大
- |龙吟师傅教你在卧室找到自己的桃花位
- 购房置业|农村建新房就选这套四层别墅,占地100多平,8间卧室人人都有地睡
- 主卧室|为了20㎡小院子,老公坚持买一楼,完工进屋就被迷住了,晒晒
- 小知识|农村建新房就选这套四层别墅,占地100多平,8间卧室人人都有地睡
- 精致|女孩28㎡小家:满墙的柜子贯通厨房至卧室,蜗居一样精致又舒心!
- 海绵|新年新气象,装点美丽新生活!顾家卧室床推荐,建议收藏!
- 防盗窗|老公硬把阳台改卧室,在窗外加个“假阳台”!完工都夸他机智
