本案是套105㎡三居室,屋主一家五口,三代同堂,男业主职业是广告策划,女业主是自由职业者,两人有个两岁的儿子,家里有老有小,收纳空间和私密性自然是第一位,为了照顾全家人的喜好,装修并不需要太华丽,细节做到极致,才能达到老少皆宜的舒适度!

基本信息:
风格:现代风
面积:110㎡
半包:11万
地址:合肥-创泽园
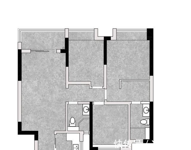
这是套精装房,乍一看,三室一厅一厨两卫的原户型,似乎也能满足全家人的居住需求,但仔细了解后才发现里面的很多细节设计并不符合业主的需求:
①厨房功能单一,缺少现代化的电器;
②除了厨卫全屋没有储物空间,家里人多东西根本不够放;
③客餐厅空间有些拥挤,采光也不是很好;
④主卧中间墙壁挡住了卫生间的采光。


结合业主对于储物和空间利用率的需求,设计师针对不同空间做了以下几个改造:
①厨房增加电器高柜,嵌入各种电器的同时也尽量避免占用橱柜台面;
②不同空间定制相应功能的储物柜,满足全家人的收纳需求;
③阳台打通包进室内,加上客餐厅一体,视觉效果更加敞亮;
④拆掉主卧卫生间和床之间的隔墙,沿着墙壁设计衣柜,既能收纳又不会挡光。

改造前客餐厅采光比较差,精装房自带的地砖颜色比较土,严重缺乏储物空间。装修时将阳台玻璃门拆掉,扩大室内采光,通铺灰色亮面地砖耐脏又显大,沿墙定制电视柜和餐边柜,不再担心收纳问题。

改造前的阳台空荡荡,实在是有些浪费空间,作为家里唯一的阳台,开发商已经预留好了上下水,靠墙定制个阳台柜,左侧洗衣机+烘干机,右侧是洗衣池,上下都有储物空间。

客厅
自从打通阳台后,一进门就能看到外面,敞亮的视觉效果让原本不大的客厅也显得开阔起来。根据业主对木纹饰面的喜好,于是电视背景墙选择定制格栅拼接木饰面,不光具有层次感,也有助于在日常生活中营造舒适温馨的氛围,一个出彩的电视背景墙是可以为家里整体效果加分的。

电视直接挂在墙上,全家人不管是坐着还是躺着都可以得到最好的角度。下面一排悬空抽屉显得轻盈有层次感,分类收纳加上不用蹲下来找东西,拿取更方便,另外日常扫地拖地都不存在任何死角。
【 收纳|11万改造的105㎡精装房,简装为主,贵在细节,满足三代同堂所需】


沙发背景墙选择乳胶漆(色号:太空漫步)和木饰面拼接,简约的墙壁往往更具有高级感。深棕色的皮质沙发耐脏好打理,地面铺上地毯,多边形茶几重心低不易翻到,边角圆滑碰撞也更安全。另外角落处加上一盏极简线条落地灯,看书方便,格调满满!
推荐阅读
- 屋主|56㎡小户型老房改造,小而美的设计!
- 棚户区改造|开盘预告|合肥又有6盘要加推,均价1.39-2.54万/㎡全都有
- 收纳|去邻居家参观才知道,卫生间不装柜子这样设计,防潮耐脏好清洁
- 旧城改造|5万亿旧改来了,20年以上的老房子再度吃香?这两类人有福了!
- 棚户区改造|对房地产态度有新变化, 央行等释放了哪些信号?
- 收纳|打柜子不是越多越好,6个地方别随便装,多装一个都闹心
- 王石|低价捡漏一套28㎡小公寓,花5万块整体改造,这效果都舍不得出租了
- 购房置业|夫妻俩大胆改造老房,坚持把3房改为1房,过于舒适了
- 棚户区改造|预制板楼房成危房?旧改政策实施,预制板楼房还会被拆除吗?
- 智睿|老装修升级计划 篇九十五:魔都二手房全屋灯光改造,给自己一个明亮智能的家!
