大胆运用色彩的家居空间,每一个房间都独具特色,审美真是独特!
今天和大家分享的这个房屋是一对年轻小夫妻的新家,两个人都是很有主见的95后青年,对于新家也有着很多独特的见解和看法,在装修之前两个人也是研究了很多不同风格的装修设计,不过对每一种都不是很满意,所以就找到了我们的设计师希望可以定制一个独特的家居空间,在装修的时候两个人也是提出了运用很多亮丽的色彩,就连设计师都觉得这些颜色过于亮丽,不过只要业主满意就可以了,最后呈现的效果也是很有个性,每一个房间都独具特色,让人感叹业主两个人的审美真是独特!
房屋户型
:别墅
房屋面积:
330平方米
装修预算
:50万元以上
所在城市
【 摩洛哥|大胆运用色彩的家居空间,每一个房间都独具特色,审美真是独特!】:北京
设计师:
何雨晴
主要建材
:皮革、实木皮、石材、铁件、镜面

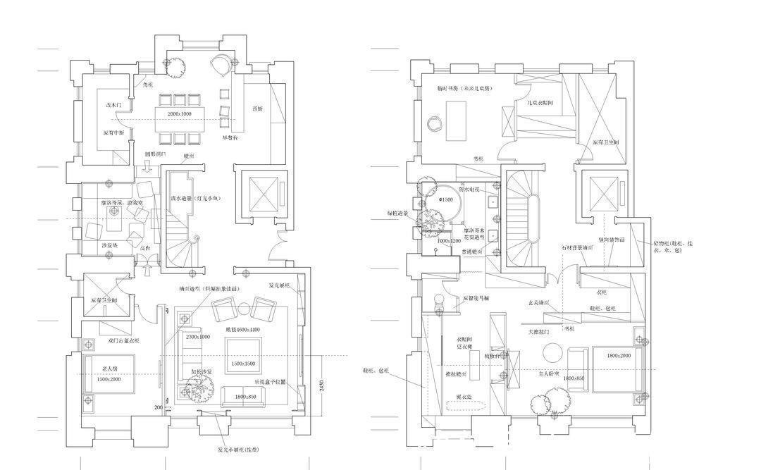
【户型图】
这个房屋是一个双层的别墅空间,每一层的空间都很规整,装修的时候也很方便,不需要做出太多的调整只需要将重点放在软装方面就可以了,业主两个人都是很有个性的人,新家里面也选择了很多亮丽的色彩,用大胆的设计来打造了一个独特的家居空间,最后呈现的效果也是让人眼前一亮。


【客厅】
设计重点:沉稳大气
客厅位于一楼的区域,作为家里待客和休息的客厅,装修的时候还是选择了比较沉稳的颜色,毕竟客人到家里之后的第一印象还是要沉稳一些比较好,过于个性的客厅还是不太适合日常的生活。


客厅选择了很多实木的家具来装饰空间,还选择了很有个性森林画作来装饰家里的沙发背景墙,给人留下了深刻的印象,增加了家里的艺术气息,多边形的茶几也很多独特。



【休闲区】
设计重点:浪漫温馨
这个休闲区位于家里的二楼,是一个相对比较私密的空间,这个休闲区平时也就只有业主夫妻两个人会使用,所以选择了比较大胆的设计,温馨浪漫的红色来装饰家里的空间,这个房间的面积不是很大,也不会占用太多的空间。


【餐厅】
设计重点:摩洛哥风格
餐厅也是平时待客会使用到的区域,所以和客厅一样选择了比较沉稳的设计,另外添加了一些时尚的元素,打造了摩洛哥风格的餐厅,给人一种大气时尚的感觉。

推荐阅读
- 购房置业|夫妻俩大胆改造老房,坚持把3房改为1房,过于舒适了
- 银行|银行不会主动告知,“还房贷”有3大窍门,运用得当或能省一辆车
- 暴利|马云又“大胆预言”2021年房价将高位解体,暴利时代将要来临!
- 潘石屹|李嘉诚大胆预测2020年房价将遇到“强风暴”暴利时代即将到来
- 文艺复古风|98㎡文艺复古风,大胆跳色+通铺人字拼地板,感受一整屋的浪漫
- 房车|装载机拉的冲击压路机基本原理,yct25冲击碾压路机的运用?
- 大胆的极简主义:Alan Prekop两室公寓
- 屏障|大胆打通客厅和阳台,刚入住就后悔当初不听劝,错得太离谱了
- 两室|夫妻二人大胆将两室改一室,70平之家也很宽敞,巧妙隔断值得学习
- 房价|李嘉诚、王健林对房价的预言错了?王思聪“2句话”大胆说出真相
