
户型图展示
户型图展示第四款:乡村一层带阁楼自建别墅设计图,带车库
效果图展示
效果图展示
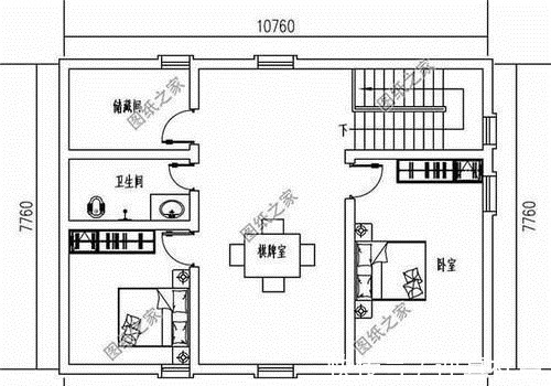
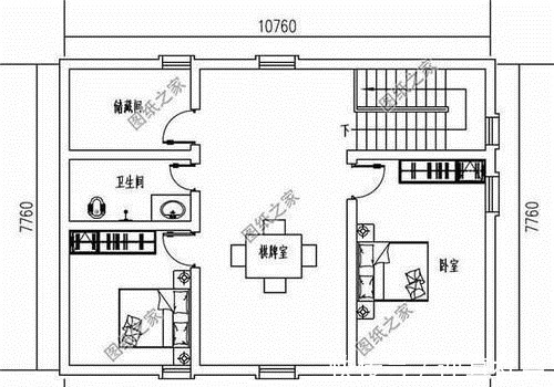
效果图展示外观非常简洁,灰色的外墙砖,简约大气的方柱,迂回的走廊,构成建筑明亮舒适的格局。屋顶采用的是传统的坡屋顶,建筑的层次感更分明,舒适感更全面占地面积:10.76m*7.76m,80平方米左右;建筑层高:一层;建筑高度:7.2米(含屋顶);设计功能:一层户型:走廊、客厅、餐厅、厨房、卧室、卫生间、车库;阁楼户型:棋牌室、储藏间、卧室x2、卫生间
户型图展示
户型图展示第五款:占地80平一层乡村别墅设计图以及户型图,平屋顶设计
效果图展示预留楼梯,以后可以加盖二层,造价仅7万!墙体采用大面积的米白色外墙砖搭配黄色文化石,以及蓝色屋面瓦,整体配色素净淡雅。建筑周边绿植的点缀,大大提升了空间品质,为业主打造出了自然舒适的生活环境。室内布局也很实用,两式两厅一卫,农村一般的家庭都很适用,楼梯处可以预留后期加建或者做储藏间。占地面积:10.6m*7.9.m,79.478平方米左右;建筑层高:一层;建筑高度:6.17米(含屋顶);设计功能:一层户型:客厅、厨房、餐厅、卧室x2、卫生间、储藏间(也可以预留楼梯口,后期加建)户型图展示以上就是小编推荐的适合农村75平米左右的自建房设计图以及户型图,喜欢哪款?分享给自家人看看吧!
推荐阅读
- 地板|160㎡四居室,玄关比我家卧室都大,这才是真正的低调奢华有内涵
- 床头柜|95后姑娘的“穷装”卧室火了,环保又精致,软装的力量真强大
- 建房子|面宽11米, 进深16.5米的农村三层别墅, 前后有花院还带车库, 完美!
- 别墅|参观亲戚上海的豪宅,别墅硬是住成农村房,真是糟蹋了好房子
- 购房置业|今年起,农村老家的老房子,统统按照“新规”处理,子女提前知晓
- 修建|精选10套三层户型图纸,占地面积均不足百平,尤其适合新农村修建
- 上海市|2022年农村人要“享福了”?实行按户补贴,跟村民们的房子有关
- |龙吟师傅教你在卧室找到自己的桃花位
- 洗衣房|这三款农村四合院设计图让不少城里人羡慕,父母看了也欢喜
- 购房置业|农村建新房就选这套四层别墅,占地100多平,8间卧室人人都有地睡
