90年代的70平老房,比小编的年纪还大,那么怎么设计才能打造出更适合现代人居住的空间呢?这套老房最大的缺点就是没有客厅,一起来看一下改造的最终效果吧!
【 三居|70平老房翻新,客厅装进卧室,华丽变身精致复古小三居】
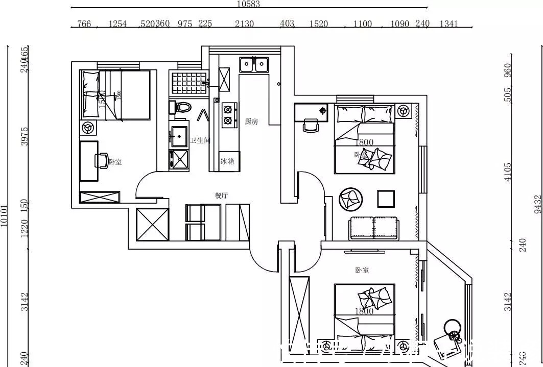
整体来说,该户型是属于比较规整的,除了没有客厅这个缺点以外,并没有其他特别困难的地方,因此对于设计师来说,还是相对比较轻松的。


由于屋主不想进门就将所有的空间一览无遗,所以选用了半高鞋柜结合长虹玻璃作为玄关处的隔断,同时也增加了收纳空间。而隔断的另一面就是结合了餐厅的卡座设计,将空间利用到极致。

选用U型橱柜与吊柜,满足厨房所需的储物空间,整体根据动线打造出最适合的空间布局,节省时间,选用大白墙搭配上彩盘装饰,打破单调让厨房倍感清新。

将次卧与客厅功能结合,木地板搭配上蓝绿基调的丝绒家具,以及六层书架设计,显得轻奢精致。

这就是次卧的休息区,蓝色背景墙让整个空间清新十足,再搭配上两个窗户,让卧室变得更加通透。

选用蓝灰色调的乳胶漆当作床背景墙,再搭配上简单的石膏线勾勒以及金边复古挂画,展现出雅致的休息空间。

第二个次卧选用灰绿色背景墙,搭配上木地板以及精致装饰,打造出一个精致清新的空间。

卫生间采用折叠门实现干湿分离,干区白色墙砖搭配上金色壁灯,黄铜水龙头、金色把手,精致感无处不在。
本文内容来源于网络,如有侵权请联系删除,谢谢!
推荐阅读
- 混淆感|146㎡北欧经典白色三居室,诠释令人心醉的优雅
- 卫生间|129平现代美式三居室,打造出一个舒适又温馨的美式家
- 三居室|118平现代风三居室,一个简单而纯粹还原生活色彩的家
- 现代|100平现代简约风三居室,软硬装的设计都很漂亮!
- 美式|18万装126㎡美式三居,光设计费就1万,这效果给力不
- 购房置业|调查:刚需和改善买房意愿增强 三居室是主要需求
- 别墅|Charles Zana以不拘一格的勇气,翻新巴黎的18世纪联排别墅
- |参观精装楼盘样板间,三居都市轻奢范儿,玄关柜墙太惊艳了
- 二居室|买不起三居室先买个二居室?内行人:很多人都在这个问题上犯傻
- 地板|英国夫妇翻新旧屋意外发现地下室,自己动手改造成小型游乐园
