住了十几年的房子,突然将门厅一分为二,效果竟然如此惊艳!
这个房屋已经居住了十几年了,不过从入住开始家人就对原本的户型不是很满意,只不过因为当时买房子加上装修已经花费了很多的费用,所以就将改造房子的事情搁置了下来,这样一住就住了好多年,其实这些年家人一直有想要改造房子的计划,不过因为一些原因和稍微的拖延症就一直没有动工,现在家里的孩子也长大了,业主也终于确定了改造房子的决心,将老房子交给设计师,让住了十几年的家焕然一新!
房屋户型
【 业主|住了十几年的房子,突然将门厅一分为二,效果竟然如此惊艳!】:三室
房屋面积:
112平方米
装修预算:
30到50万元
所在城市
:宁波
设计师:
曹晶晶
主要材料
:文化石、大理石、复古镜、木皮板、进口木地板、结晶钢烤等

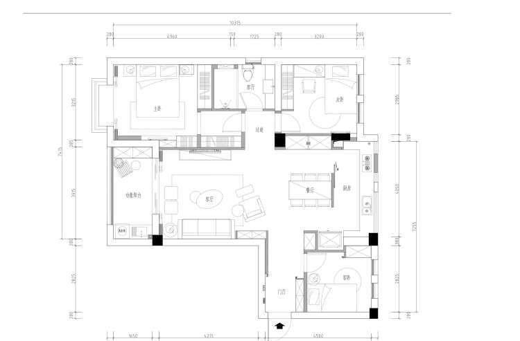
【户型图】
原始的房屋户型其实还挺规整的,不过住了这么多年业主还是觉得有些地方不是很完美,比如卫生间的面积就比较小不是很方便,餐厅面积也不是很大有客人的时候就会觉得拥挤。

针对业主提出的问题并结合房屋的整体情况,装修的时候特意将原本阳台的位置空了出来,将厨房搬到阳台从而扩大了餐厅的使用面积,并对主卧进行一些改动让卫生间的利用面积变得更大,同时对进门的玄关进行了重新的规划。


【玄关】
设计亮点:一分为二
进门的门厅比较狭长,原始的装修也浪费了一部分的空间,所以装修的时候特意将门厅分成了两个部分,减少了过道的狭长感,利用墙壁的色彩差异让整个空间更有层次感,进门的区域看起来更加的独特。


【客厅】
设计亮点:亮黄点缀空间
客厅整体都是黑白灰的色彩,打造了一个静谧的空间,也很符合业主沉稳内敛的性格,同时客厅在局部添加了亮黄色作为点缀,为空间增添了生机和活力,也让客厅看起来更加舒适。

黑白色的装饰画、黑色的真皮沙发、白色的茶几,整个空间将黑白灰运用到极致。


客厅添加了立体的储物柜,增加了房间的储物空间同时也让房间变得更有层次,整个空间看起来更加丰富。

【厨房】
设计亮点:煤气灶代替集成灶
本来厨房使用的是集成灶,不过集成灶会遮挡窗户的位置影响厨房的采光,所以现在选择了用传统的煤气灶代替集成灶,让厨房看起来更加开阔大气。

推荐阅读
- 房子|越来越多人用这“两个方法”装修房子,可升值十几万!
- 银行|如果出现大规模的房贷断供现象,银行和业主将两败俱伤
- 杭州|仁恒置地楼盘窗户玻璃被减配 开发商:全体业主签字后再整改
- 主卧室|为了20㎡小院子,老公坚持买一楼,完工进屋就被迷住了,晒晒
- 淄博|公益验房团再验金茂中欧国际城:维修难排号,金茂业主收房得跨年
- 浙江省|浙江兰溪:法院助力200多名业主拿到了等待5年的住房钥匙
- 珠海|珠海一楼盘降价45万处理尾货惹老业主不满,开发商只能“偷偷卖”
- 装修|砸58万装修总结26条良心建议!上千万业主栽过跟头!你家别再错了
- 房产证|8000多户业主终于拿到了房产证
- 包头市政府|8000多户业主终于拿到了房产证
