房间|《梦想改造家》给的灵感,S型床铺分隔儿童房,儿女都有独立空间
二胎家庭业主被人问得最多的就是:你家一男孩一女孩,只有一间儿童房要怎么住呢?可不是每个家庭都能做到房子想换就换的,那最后就只剩下一种办法了,将房间一分为二,不用砌一堵墙,一张床就能搞定!

【 房间|《梦想改造家》给的灵感,S型床铺分隔儿童房,儿女都有独立空间】左右相隔就是在房间的中间位置加个隔断,两张儿童房靠墙摆放,上床下柜,中间则是两张书桌。

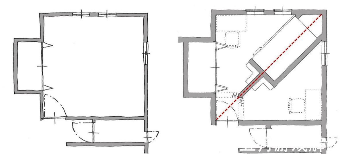
而斜着相隔则是将房间沿着对角线就行隔开,中间利用一张“S”型结构的床来代替隔断,从左边看上床下桌,右边则是下桌上床,《梦想改造家》节目中就出现过这种设计,一张床兼具了两床两衣柜的功能,书桌则是放在两边墙壁的角落处。


看完更纠结了,这下到底要怎么选呢?
左右分隔更适用于大一点的儿童房,而且中间可以选择一些比较灵活的隔断,比如入墙式推拉门,折叠门等,白天的时候可以将门打开,实现两间儿童房二合一,两个孩子可以一起玩耍,活动的空间也会更宽敞一些,也能一起做作业,方便交流感情,这种隔开方式的儿童房使用起来能具有更多的可能性。

斜着分隔最大的优势就是更省空间,适合小面积的儿童房,儿童房分隔开日常是没有办法随意进行移动的,每个房间里的活动空间有限。另外隔开后房间可能会出现很多拐角,想要利用比较难,着实是有些浪费了。


不管是哪种分隔的方式,有一点必须要保证,那就是两个房间都要有窗户,一些只有一面墙上有窗户的房间,那么在分隔方式的选择上就存在很多的局限。

其实想要将一间儿童房隔成两间的方法有很多,也可以增加双面隔断柜,扩容就是这么简单,各有各的空间,保证隐私的同时又能解决收纳问题。

如果家里有一男一女两个宝宝的话,那么在装修房子的时候趁早考虑私密性问题,不要以为设计一张高低床就完事了,住不了几年又得改了,当然了,如果你家房子够大,两个孩子一人一间自然是再好不过啦!


最后问一句,只有一间儿童房,上面两种分隔方式你们更喜欢哪一种呢?
(部分图片来源于网络)
推荐阅读
- 小房间|参观140㎡大婚房,朋友都夸餐边柜有档次,我却更喜欢主卧的飘窗
- 欧派上榜《2021胡润中国500强》|定制快讯| 欧派家居
- 画堂春|《画堂春》22首:寒风总把老枝欺,栖乌何故声啼?
- 建筑装饰装修工程质量验收标准|2022年正在执行的装修标准有哪些
- 交换空间|《交换空间》失败案例,户主直接砸了重装,没有金刚钻别揽瓷器活
- 收纳|一年卖30亿!呼和浩特《城市年度成交榜》金地江山风华喜提榜首
- 民法典|2022年1月份施行《民事诉讼法》的修改部分
- 二手房|广东女子租房来到奇怪房间,屋内还有石桌石凳,网友劝退:别住!
- 李筱|北京楼市悄悄回暖
- 电视背景墙|软装十大品牌之让家“直”起来,房间瞬间扩大30㎡
