时尚个性的北欧风,搭配独特的线条,打造与众不同的三室之家
业主不喜欢雷同的风格,希望自家足够个性和有创意。设计师以现代简约风为主体,搭配北欧风情的冷酷工业风,让房屋整体体现出独特的线条美感,舍弃复杂华丽的设计,更多的是保留结构的原始美感。

房屋户型
:三室
房屋面积
:150平方米
装修预算
:50万
设计师:
李文伟
主要建材
:线板、木皮、喷漆、大理石、黑铁漆、铁件、玻璃、木地板、壁纸

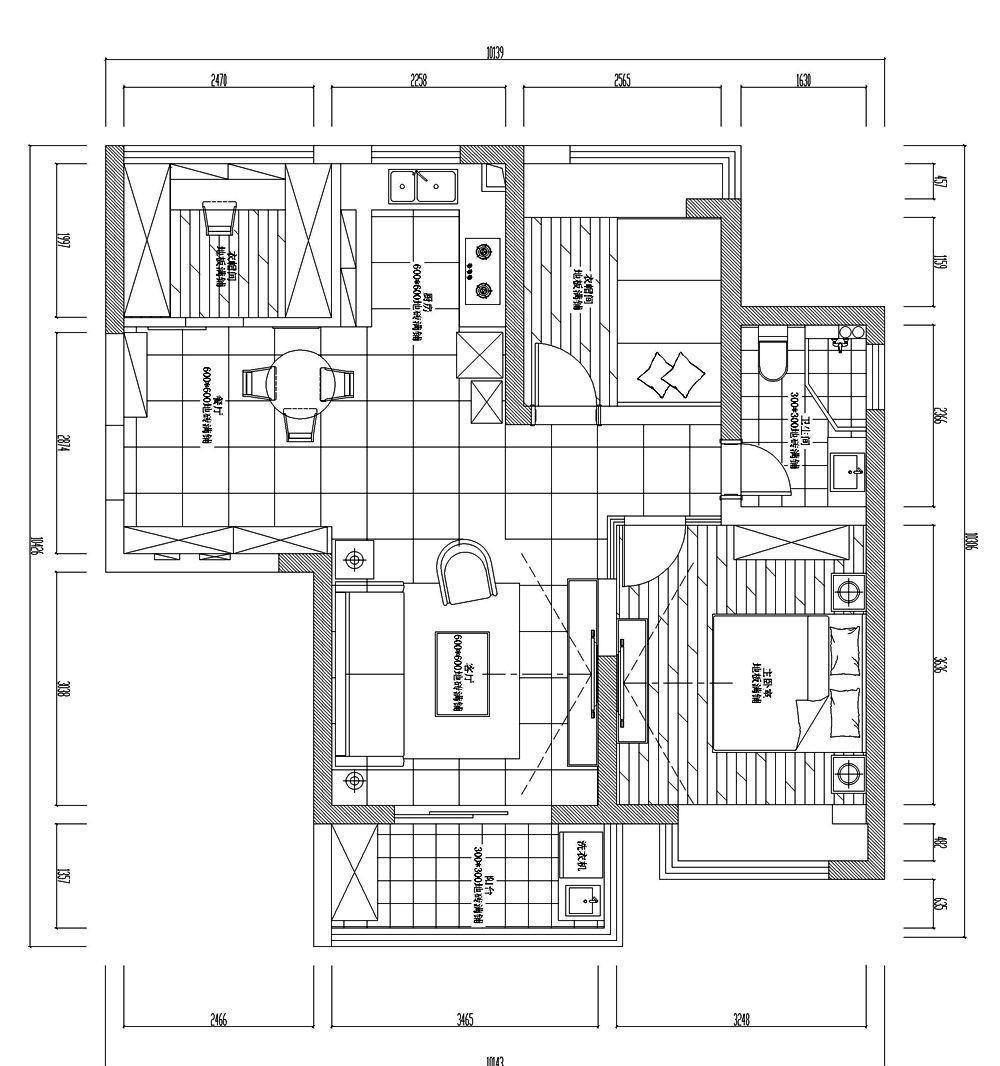
【户型图】

原始房屋结构上没有较大的缺陷,但是布局上有很多不合理的地方,比如没有收纳区,卧室的面积不足,空间私密性得不到保证等。设计师大胆地从房屋结构出发,为业主打造一个全新又舒适的私人套房。

开放式是整个空间的设计主题,在保证空间独立私密的基础上,又不失空间的沟通与互动,营造舒适自然的现代三居室。

【客厅】


设计重点:用最简单的设计打造最内涵的空间
一进入到客厅首先感受到的是开阔感和清透感。电视背景墙的钢化玻璃隔断是空间的亮点,既可以保证空间的独立,又形成现代的时尚之美。


玻璃隔断可以保证采光,又让空间多了些沉稳和大气。黑色玻璃简单但是并不单调,和纯白的背景墙相互衬托相互映衬。


一字型客厅可以看到厨房和阳台。不论是在哪一个空间都能和家人保持随时的互动沟通,朋友来了也不用担心一个人呆着感觉尴尬。


素雅的沙发舒适又温馨,搭配棉麻织的地毯,更显空间的安逸。
【厨房】

设计重点:采光充足
厨房改造之后没有保留之前的封闭布局,专门定制的橱柜不仅提供了大容量的收纳区,还让厨房更加的美观干净。保留的小窗可以让厨房有足够的采光,日常烹饪也会更加的便利舒适。
【餐厅】


设计重点:一体式布局增加空间互动感
餐厅十分的通透,在餐厅就餐的同时也能看到其他的区域,视觉上没有任何阻挡更加的开阔明亮。搭配简约的餐桌和餐椅,让餐厅的轻松感更加强烈。
推荐阅读
- 背景墙|97㎡现代风,以时尚打造空间,以新颖突出特点
- 吊顶|两米八以下的层高千万别吊顶,学学我家的装修,时尚美观还省钱
- 书房|成都80平三室之家,一体式餐厨设计,仿佛把日剧场景搬回家
- 承重墙|109㎡四口之家,全屋配色太清爽,三室两厅不压抑!
- 迷你|26㎡的迷你复式公寓,一楼装榻榻米房,二楼装地台床,够时尚!
- 佛山|90后夫妻爆改异形破旧老房,67㎡也挤出小三室,还有专门的工作室
- 丽水|200㎡现代简约 | 高级灰与黄色 永不落幕的时尚
- 简约风|140平现代简约风三室装修,全屋用莫兰迪色系太温馨了
- 时尚|297㎡时尚美宅,华丽优雅的简美轻奢风,晒晒现场照
- 选购|时尚休闲椅该如何选购?掌握这八个要点避免踩坑!
