储物|120平米新房花20万装修,全屋到处都是柜子,储物超强
新房是一套120平米的三居室,为了孩子能得到更好的教育,前年我们全家人咬咬牙在城里买下了这套房子,对于我们这种家庭经济条件不怎么好的人来说,买这套房子已经花光了家里的大部分积蓄了,去年房子也交房了,便开始着手装修的事情。一直听说装修比较费钱,所以我们对装修这方面要求不是很高,只要住起来有家的烟火气,温馨就行,其次就是收纳空间一定要足,因为随着居住时间增长,家里东西会越来越多,所以该有的柜子一样不能少。这套房子装修花了20万,历时三个多月时间,最后出来的效果全家都很满意,虽比不上样板房精致吧,但是简单大方,很有家的感觉,而且储物超强,觉得真心值了,下面给大家晒晒实景效果。

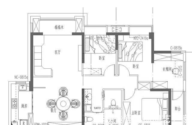
平面图

入户没有独立的玄关,在进门左手边的位置做了嵌入式鞋柜,把柜子分割为三层,中间的空位用来放一些进出门需要随身携带的物品,如钥匙、包包等,而最底部的空位放常穿的鞋子和居家拖鞋,就不用麻烦的打开柜门找了,上下封闭柜则用于放鞋、储物。旁边玻璃门的地方是厨房。

厨房

厨房里面白色储物柜搭配黑色拉手,简约中带着一些精致,再加上黑白格子砖,看上去非常干净、整洁,没有杂乱感,墙壁上安装了挂杆,可以将锅具铲子等通通挂上面,不仅方便沥水,还增加了厨房的收纳空间。还有高低操作台面的设计十分人性化,这样洗菜就不用弯腰,炒菜也不用架着胳膊了,做起饭来很轻松。

站在客厅角度看向入户处,因为没有独立玄关作为视觉过渡区,所以为了避免开门见厅的尴尬,在入户与客厅之间装了一道格栅作为隔断,看上去很漂亮,这样既能保持空间通透,又起了保护隐私的作用,对于家居风水也比较有利。

餐厅在进门右手边,利用空余的墙面定制了一组餐边柜,让餐厅的收纳需求得到满足,又能充分利用角落空间,柜子中间和右上方都是留空设计,方便摆放微波炉和一些餐具碗碟什么的。实木的餐桌椅自然环保,搭配墙上的羽毛装饰,让用餐氛围变得更加轻松。

客厅做了回型吊顶,安装了主灯和筒灯,照明效果非常好,整个屋子都显得更加亮堂,灰色的沙发耐看耐脏,与原木茶几搭配在一起,相当的沉稳大气,沙发背景墙挂了几幅规格不同的装饰画,不仅让墙壁看上去不再那么的单调无趣,也为家里增加了几分艺术气息。

阳台

客厅和阳台是打通了的,这样可以增加客厅的使用面积,让整个空间显得更加明亮。阳台的位置被改造成了榻榻米,上面摆了茶桌和坐垫,平时家里来客人的话就邀请他们坐在这里一起喝茶聊天,别提有多么悠闲惬意了,榻榻米侧面和底部都做了储物柜,可以放很多家居杂物,特别实用。
推荐阅读
- 装修|乔迁新房3月以泪洗面!当初的不理智,连犯15个极品装修坑!作孽
- 疯狂|1月20日广州新房网签210套,增城以43套再次蝉联榜首!势头强劲!
- 亮点|等了6个月终于能晒晒新房了,都挺满意的,客厅是最大的亮点
- 武汉|合肥楼市新房火热的原因找到了
- 购房置业|农村建新房就选这套四层别墅,占地100多平,8间卧室人人都有地睡
- 二手房|纠结!买房子是买市中心的二手房好还是买偏一点的新房好?
- 房价|东莞新房价格真的降了吗?盘点2022年东莞10大在售新楼盘价位
- 楼盘|12月保山新房用户关注度大数据报告
- 购房置业|豪横!熊磊手握3套房,仍不知足,疑购入新房,网友:楷楷的婚房
- 小知识|农村建新房就选这套四层别墅,占地100多平,8间卧室人人都有地睡
