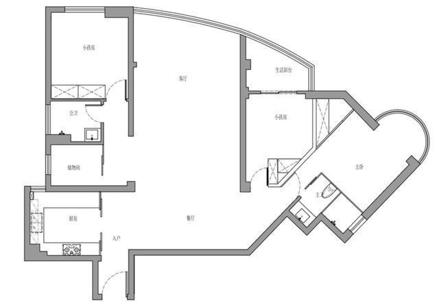
客厅作为家里唯一的活动区,通常都是以接待、休闲、视听功能为主的。不过在现如今装修设计中,已经有越来越多人喜欢将客厅定位成展示及储物区。说的简单一点,就是给客厅也打上柜子,从而进一步的增加收纳功能,以保证空间的整洁性。比如在本期分享的案例中,屋主夫妇也是这样来定位的。同时,为了营造出大空间的视觉感,以及拥有舒适的动线,还采用了离墙的方式来摆放沙发。不得不说,这种处理方式真的很实用。原始结构图
新房建筑面积137㎡,屋主一家四口,有两个儿子。原户型整体虽然属于不规则的结构,但空间布局这块也还算是比较合理,且拥有不错的采光。因此,在方案设计上,还是保留了原有的户型结构,并没有做改动。毕竟在户型结构能满足居住需求的情况下,不做改动不仅能节省成本,也不会对墙体结构产生影响。平面方案图
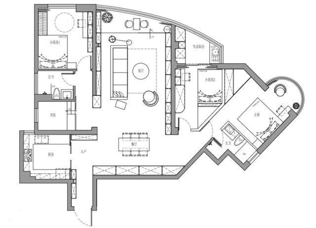
从方案来看,整体是以三室一书房的布局来规划的,并且为了更加合理化的利用空间,还做了很多储物柜,以保证充分的收纳功能,尤其是客厅这里,电视墙与沙发墙都做上了柜子。具体通过下面的实景可以看到,不管是功能性,还是空间及采光,都是非常棒的。进门玄关
从玄关效果看到,整体是以现代简约风格来定位的,从而表现出干净明亮的视觉感。鞋柜做成了左边,采用了上下分体式的结构来设计,可以满足不同的收纳需求。右边则安装了一块镜子,来起到扩展空间及整理仪容的作用。而玄关的正对面同样做了一组柜子,并给柜门做上了错缝造型,以表现出层次之美。餐厅
餐厅墙面同样做了一组柜子,且在结构设计上,也突出了层次感。比如柜子中间留空的位置,上面做了一排深度非常小的柜子,并选择了原木饰面。这样既不会浪费空间,也表现出了色调反差感。而下面当作收纳台来使用,也为生活增加了便捷性。
一张八人的餐桌离柜摆放,既让空间的动线更加自由舒适了,也满足了多人就餐功能。这里有一个小细节提一下,就是屋主家所有的柜子,都采用了按压门的结构来设计。这样不仅使用起来很方便,视觉上也显得非常工整干净。客厅
电视墙上的柜子设计非常实用,底部一排的地柜,承担了电视柜的功能,且解决了小东西的收纳作用。右边的一组高柜,则再次提高了储物空间。而给中间墙面刷上低饱和度的乳胶漆,既与柜子的饰面突出了反差层次,也增加了视觉空间感。当然,投影设备的配置,也让客厅有了视听功能。
沙发墙上的柜子主要以收纳书籍为主,毕竟家里有两个孩子,所以书籍收纳问题肯定是要提前考虑到的。沙发离墙式摆放,既没有影响到与电视墙之间的开间尺寸,也使客厅的动线更加灵活了,且方便了书籍的拿取。
从上图中的视角可以看到,沙发与电视墙之间距离还是非常宽敞的,所以并没有因沙发离墙摆放了,开间尺寸就受到影响了。原有的南阳台则是整体做了抬高处理,以营造出休闲感。厨房
推荐阅读
- 大悦城|家里这两个地方别漏了贴瓷砖,许多人为了省钱,入住就后悔了
- 置物区|全屋定制柜子时,记得把这3个柜子做到位,钱不白花用着也舒服!
- 收纳|去邻居家参观才知道,卫生间不装柜子这样设计,防潮耐脏好清洁
- 房子|越来越多人用这“两个方法”装修房子,可升值十几万!
- 收纳|打柜子不是越多越好,6个地方别随便装,多装一个都闹心
- 烤漆面|老公坚持餐厅不做柜子,原来用吊兰做隔断可以这么漂亮,学到了
- 明贴|房子装修一定要装这几样东西,好多人没听劝,后悔入住才察觉
- 玄关柜|房子再小也要把这7个地方装上柜子!比多买一间房都值!
- 实用|衣柜太占地方?越来越多人这样装衣柜,好看实用还省地!
- 装修|房子装修一定要装这几样东西,好多人没听劝,住进去才知道后悔
