现在的国人对房子大致分为两种流派,一种是买房族,一种是自建族,再也没有别的情况。对于咱们农村人来说,自建别墅当然要比买房省钱的多,而且划算,像下图这个别墅,主人公仅仅花了18万就盖好了毛坯,这要是拿18万去城里买房,恐怕连卫生间都不够。

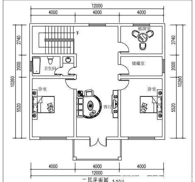
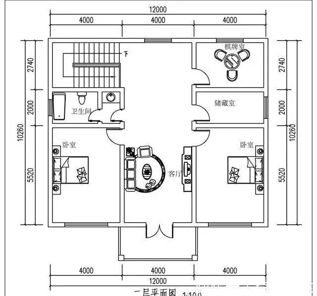
平面布局图:
别墅面宽12米,进深10米,总占地面积138平方米,建筑面积270平方米,是一栋二层农村小别墅,首层布局经典大气,各功能用房一应俱全,客厅卧室全都有,满足农村人的日常生活需求。

二层布局两卧一棋牌室,同时卧室之间还设有单独的一个小偏厅,以方便居住在二层的人生活。

【 别墅|农村小伙18万亲手建造大别墅,实拍户型,经典大气】怎么样,这样的小房子,是不是你心头大爱?
推荐阅读
- 建房子|面宽11米, 进深16.5米的农村三层别墅, 前后有花院还带车库, 完美!
- 别墅|参观亲戚上海的豪宅,别墅硬是住成农村房,真是糟蹋了好房子
- 购房置业|今年起,农村老家的老房子,统统按照“新规”处理,子女提前知晓
- 修建|精选10套三层户型图纸,占地面积均不足百平,尤其适合新农村修建
- 上海市|2022年农村人要“享福了”?实行按户补贴,跟村民们的房子有关
- 洗衣房|这三款农村四合院设计图让不少城里人羡慕,父母看了也欢喜
- 购房置业|农村建新房就选这套四层别墅,占地100多平,8间卧室人人都有地睡
- 别墅|土豪农村盖大别墅,人人羡慕,如今却成为全村人眼中的大笑料
- 别墅|买不起别墅,买了一楼带30㎡院子的房子,入住两年多,后悔了吗?
- 贵州|利落挺括,12×11米现代二层别墅,4卧2厅好格局开启全新生活
