一位单身的年轻女孩,买下了这套25㎡的公寓,既是家也是工作室,所以室内既要考虑生活所需的功能区,也要考虑办公和会客需求。业主希望设计师能够在有限的预算下,创建一个时尚漂亮的设计。
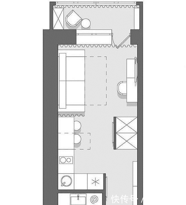
设计师在和业主进行多次沟通后,定稿了上图所示的平面布置图。公寓的布置是此类房屋的典型配置,狭长的空间通常分为两个主要区域:厨房和卧室/客厅。设计要点:卫生间设计钻石型淋浴房,既节省空间,又做到干湿分离,定制的浴室柜下方嵌入洗衣机。狭长的玄关过道设计换鞋凳、挂衣区、翻板鞋柜,既不会浪费空间,又方便使用,增加玄关空间的收纳能力。开放式厨房L型布局,并延伸厨房的操作台面设计两人位的餐桌。在餐桌对面的空间设计了一组双面衣柜,既能增加室内的收纳空间,也能作为功能区的隔断。用沙发床来替代传统的卧室,白天是客厅,晚上是卧室。电视背景墙处摆放电视柜和办公桌,满足业主在家办公的需求。阳台上设计了一组通顶衣柜,增加室内的收纳空间,摆放单人沙发和茶几作为一个小的休闲区。
玄关处利用入户门左侧空间设计了一组收纳架,靠入户门一侧开放式设计,摆放换鞋凳,方便进出门坐着换鞋,上方设计横杆,用来收纳外套。白色的收纳柜用来可以用来收纳包包、围巾、鞋子等,架子上方也可以用来收纳,增加收纳空间。
玄关过道旁还设计摆放了一组翻板鞋柜,占地面积小,但收纳能力极强,女主人再多的鞋子都能找到收纳的地方。鞋柜上方还可以摆放随手的钥匙、绿植、摆件等物品,既美观又实用。由于预算有限,室内的墙面上找平后直接刷了灰色与白色的乳胶漆,既节省了预算,也让墙面保持了一种粗犷大气的美感。墙面上再点缀继续黑白色调的装饰画,大气又经典。
玄关鞋柜旁边,设计师设计了一组双面衣柜来作为功能区的隔断,既能增加室内的收纳空间,也避免了入户后室内一览无余的尴尬。这样的衣柜设计,在国内的设计中是比较少见的,小户型在装修的时候可以借鉴。
双面衣柜隔断面向厨房一侧的墙面上,充分利用墙面空间,安装了一面大镜子,镜子四周安装了灯带,既可以作为梳妆镜使用,又能美化装饰墙面。暖色调的灯光搭配原木色的背景板,给空间增添了温馨的气息。
开放式厨房沿墙体L型布局,面积虽然不大,但洗切炒功能齐全,满足业主在家做饭的需求。旁边延伸厨房操作台面布置餐桌,可以满足业主在家用餐的需求。餐桌上方设计了置物板,可以用来摆放绿植,收纳杯子等,既实用又美观。餐桌上方顶面做了部分吊顶,增加了空间的层次感。
厨房餐厅与卧室客厅之间设计了帘子作为隔断,大家在装修时,如果不喜欢开放式厨房的设计,可以参考这个布局,把帘子换成折叠玻璃门或玻璃移门,就可以形成一个封闭式的中式厨房了。
靠墙摆放的餐桌在必要时可以横向摆放,形成一个四人位的餐桌,满足多人用餐的需求。
推荐阅读
- 厨房|一居室也能如此精彩,展现单身人士的高端生活,享受生活的乐趣
- 收纳|去邻居家参观才知道,卫生间不装柜子这样设计,防潮耐脏好清洁
- 收纳|打柜子不是越多越好,6个地方别随便装,多装一个都闹心
- 收纳|这8个位置装修记得装柜子,收纳面积增加20㎡不是问题!
- 精致|女孩28㎡小家:满墙的柜子贯通厨房至卧室,蜗居一样精致又舒心!
- 法拍房|90后女孩上海买房,竟然不通知父母,是一种什么体验?!
- 收纳|床尾墙这个小地方,装修时容易忽视,到底该如何设计呢?
- 摄像师|日本单身宅男9㎡小家,厕所巴掌大却有浴缸,玄关晾衣服格外整洁
- 纸袋|她家房子不大,但全屋“隐形”收纳确实惊艳,真是美观与实用兼具
- 自然之风|不怕房子小就怕你瞎搞!42㎡单身公寓,装出大户型的既视感!
