现在社会文明不断的进步,一波又一波新的思想浪潮翻涌而来,追求独立、活出自己、不拘泥于现实已经是越来越多女性的定义和标签,她们早已不拘束于婚姻和家庭,不在意传统的眼光,而是勇敢地活出自己,追求着自己想要的、最舒服的生活状态。今天本期案例给大家分享的是一个53岁的单身阿姨,阿姨是一家公司的高管,事业有成、但是追求独立和开放是她的标签。在参观阿姨的家和阿姨聊的过程当中,对MoMo也是一个很大的启发。人生可能也只有短短的几十年,能够活出自己最舒服的生活状态才是最重要的。下面快随着MoMo一起来看一看这个阿姨的家吧!空间布局图
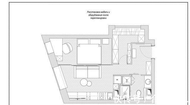
房屋的面积是33平米,整体上呈现不规则的梯形形状。
房屋为一室、一厅、一卫,另外有一个L型的衣帽间。房屋采用去厨房化的设计,整个客厅、厨房区是一体化设计。整个家给人的感觉是集富贵、时尚、大气、奢华为一体的精致小公寓。玄关
整个玄关处是现代简约设计,设计流线精美、大气。白色为打底色,金色镶边的设计显得十分精致。进门处的白色柜子满足储物的需求。整个空间特别注重细节的设计,小巧的橱柜也是既实用又精致。棕色的小软凳方便换鞋,长方形的镜子既精致又美观。
墙上的那幅十分有意境的画摆放的恰到好处,整个给人营造的感觉和玄关处的感觉融为一体。左右对称的灯源,精致又美观,金色的圆柱形设计处处体现着富贵、奢华之意。卫生间
整个卫生间从配色到设计可以说是高级、时尚与大气的结合,白色、原木色、绿色、深灰色的色彩搭配,高级感十足。整个区域最巧妙地在于灯源的运用,各式各样灯的灯源运用也给整个区域增加了设计感和氛围感。马桶后面的墙壁上、白色储物格里面摆放的精致的香薰、绿植、香水等,无不体现出了阿姨的精致生活。
卫生间是干湿分离的设计,淋浴区绿色渐变叶子的设计颇有中国泼墨画的感觉,意境和设计感十足,这样的装修风格也体现出阿姨内心的大气和从容。淋浴间旁边是封闭式的柜子,很好地满足了阿姨化妆品和洗漱用品的收纳。
洗手池的背景是磨砂质感的深灰色和绿色的拼接,颇有富贵、豪华之意,椭圆形的镜子搭配左右两边灯源的点缀,也是精致感十足。深蓝色洗手池、原木色的抽屉以及洗手台上放置的绿植,无不体现出了阿姨的精致生活。甚至语言水龙头和开关都是金色的设计,整个装修在细节的处理上简直是十分完美。客厅
房屋本身不大,为了增加整个空间的通透性和视觉感,客厅和卧室区中间是玻璃式的隔断。灰色、十分有质感的沙发,十分舒适和美观,看似这样一个沙发,其实是阿姨花重金购买的,价格还不是我们普通打工族能够承受的。茶几的选择十分有创意,一大一小、一高一低的圆形金属小茶几,既美观又实用。金属立式吊灯也是设计感和实用性兼具。
推荐阅读
- 厨房|一位56岁阿姨的独居生活照:悠然自在,28㎡的生活让人羡慕
- 购房置业|为什么这个阿姨开发商给她退房后,还要大闹售房部
- 衣帽间|退休阿姨晒出自己的新家装修全屋大面积护墙板造型,温馨有个性
- 购房置业|55岁德国阿姨晒退休生活意外火了:全屋悠闲自在,治愈了超多人!
- 化妆台|90后小姐姐独居生活,一个人住26㎡小公寓,太解压了,买个照装
- 灯源|53岁阿姨独居33㎡公寓,房屋设计让人赏心悦目,高级又耐看!
- 独居生活|韩国90后女生的独居生活,一边买买买,一边断舍离,38㎡住了2年
- 设计|家里没有阳台怎么晾衣服!看完阿姨家设计,羡慕死了!
- 购房置业|70后阿姨含泪哭诉:我就不应该给女儿买房,真实原因引家长们共鸣
- 玄关|旧房改造丨75㎡原木风二手房改造,从老破小到独居豪宅
