前言
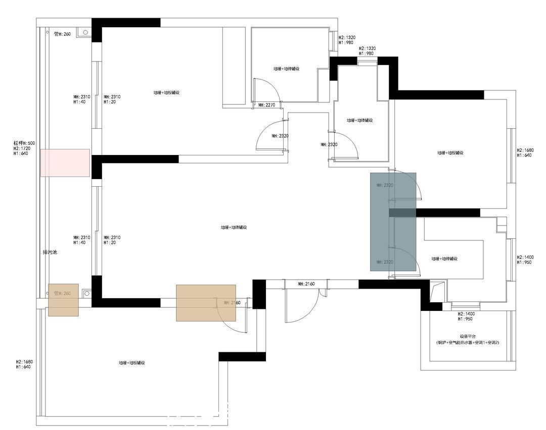
自然品质的物质家园不是简单地将自然要素引入室内,而是结合居所自然环境以及屋主自身特质,创造性地打造灵魂栖居之所。本案为精装房改造,屋主是一位单身的IT男士,讨厌一切繁杂的装饰,也不想操心任何装修的事情,把设计未来的家这件事完全交于我们。他希望自己的家有黑白灰的简约,还希望用一些中性色调来打破冰冷的感觉,要有专门的储物空间。平常工作虽然忙碌,但屋主希望在工作之余,在家中能享受休闲生活,另外还需要留一间卧室作为次卧,偶尔父母会过来看望小住两天。考虑到业主的生活习惯以及实际情况,我们决定把原木融入设计,调和空间清冷氛围,运用棉、麻、皮、藤、等不同材质诠释自然气息十足的家居氛围,巧改门洞方向,辟出单独的储物空间,并为屋主布置出舒适休闲之地。户型图

原本的房子是精装修,不论功能还是布局其实都不算太差,并不需要太大的改动,不过对于业主自由、休闲的需求,现在的空间稍微闭塞,动线上还可以更加自由。长阳台也可以重新规划一下,现在显的有些狭长,并且客厅卧室通过阳台相互连通,缺少了一点隐私感。

在不大拆大改的基础之上,将空间的动线进行了一些优化: 首先将阳台的一部分纳入到客厅里面,同时打通客厅与书房之间的墙面,仅留下承重墙作为电视背景墙,采用两个移门来增加功能实用,洄游式动线更加自由,两边的采光也会变得更好。餐厅依靠厨房布置,并且厨房门改为玻璃移门,动线更为简短。 客厅阳台与主卧室阳台采用背靠背柜体来增加收纳,同时让空间更加私密。客厅

阳台纳入到客厅后,大扇窗户带给了室内更加明亮的采光,加上书房开放式的设计,整个客厅会显得很宽敞,动线也更为自在。原本的地砖并没有拆除替换,顶部吊顶也只是做了局部改动,将改造的重点放到优化空间中。

电视背景墙拆除了两边的墙体,承重墙的部分用木饰面装饰,特意将电视柜做到与墙体一样的宽度,减少旁边柱体的突兀感,电视柜顺着木饰面打造,同样的材质让它们效果更整体,底部挑空的造型显得简洁轻盈,打扫也很方便。

沙发与茶几均为矮脚设计,拉低入户者视线,空间更显宽阔。由于简洁的硬装布置,室内的氛围显得有些冷清,于是在软装上以棉、麻等突出自然气息的材质为主,营造出更亲和舒适的环境。

浅灰色简洁的空间看似有些冷清,不过搭配上原木以及棉麻布料这些材质,显得氛围变得柔和了许多。站在书房看向客厅,长城板的线条具有很强的层次感,简单却不单调。


主卧门体加高,选择用与客厅一样的长城板装饰,设计成隐形门,视觉上看更加简洁美观,加上通铺的地砖,主卧与客厅的整体性也更强。餐厅
推荐阅读
- 房产证|婚前财产婚内可以自行处理吗
- 屋主|56㎡小户型老房改造,小而美的设计!
- 当事人|房产商不办按揭怎么办?
- 房价|房地产要变回支柱产业,你知道吗?
- |最高暴涨70万!宁波二手房市场即将回暖?
- 装修|乔迁新房3月以泪洗面!当初的不理智,连犯15个极品装修坑!作孽
- 装修|淋浴房还可以坐着洗澡,一开始很不理解,装修后才发现太实用了!
- 中间商|出租房屋可以不用中介,打造自助门店,同样收租金
- 对象|廉租房和公租房的有什么区别?
- 贷款|5月起,“2道铁令”,今后这1种买房方式再也行不通了
