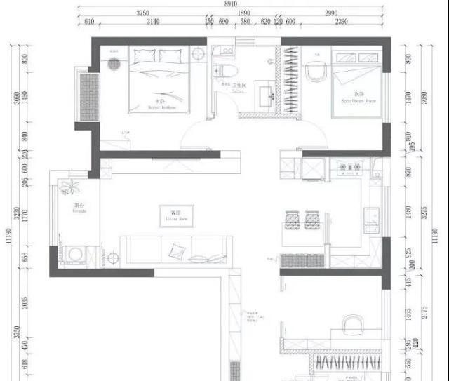
110平户型带衣帽间110平的房子面积应该算是刚需面积了,一般差不多是三房或者三房带一个小书房,但是对于一家三口来说怎么样合理去分配这个空间,怎么利用起来更舒适实用才是关键的问题;

进门的地方是玄关,而玄关的最重要作用大概就是换鞋了,所以鞋柜是一定不能少的,玄关过道的宽度也就只有1.3米,利用墙体转角做个鞋柜后只有不到一米的宽度,但是又想进门的地方宽敞一些不压抑,最好就是鞋柜不要做满柜做成矮柜,像这样做个台面,平常台面上可以摆放一些装饰物或者进门随手放钥匙包包;
进门右手边其实是个小房间改成了个衣帽间,对女人来说,家里有个衣帽间真的是件很幸福的事情,其实衣帽间的门可以往外做到与书房墙平,但是考虑那样的话会显得过道特别狭长,所以干脆就把衣帽间往里面缩一点,这样留出一点转角位还可以做个装饰墙,既好看又不影响使用;
整个客厅的色彩格调其实还是很清新的,电视背景做了个雾霾蓝,利用了墙体的转角做了个书架和地柜,这样就不用单独买电视柜了,而且储物量也比较大;
沙发背景算是利用色彩拼接的,其实自己动手做一些乳胶漆色彩分隔还是比较有意思的,家里既显得活泼有趣又很有情调;
餐厅在厨房门口,餐桌不大,但是一家三口吃饭也不需要太大的地方,靠墙的位置做了个卡座,这样节省空间也能储物;
主卧的设计也很简洁,墙面刷了米黄色的涂料,顶上没有做太多的吊顶,只是用石膏板做了一圈石膏板条,看起来墙面有层次感,床头舍弃一个床头柜,换成一个小的梳妆台,这样在房间护肤化妆就方便了;
书房的门是做了个玻璃移门,这样主要是不想遮挡过道的光线,也不影响个人办公的清净;
最喜欢的大概就是这个衣帽间了,整个户型虽然不大,但是有个衣帽间就能方便很多,家里的衣服,被褥等等东西都可以有个地方安稳的放进去,也不会显得很杂乱了;

110平的户型,还做了个满意的衣帽间,真的还是很喜欢的。
推荐阅读
- 卫生间|129平现代美式三居室,打造出一个舒适又温馨的美式家
- 三居室|118平现代风三居室,一个简单而纯粹还原生活色彩的家
- 郑州|买房月供曝光!郑州最新平均工资8694元,撑得起房贷么?
- 石家庄|144平的面积,无人值守棋牌室,这是如何做到的?
- 简单感|现实的平衡取舍,才是生活之道!143平现代风格设计欣赏!
- 她家148平米,进门就被玄关迷住,不做吊顶跟背景墙,阳台超漂亮
- 修建|精选10套三层户型图纸,占地面积均不足百平,尤其适合新农村修建
- 南通|拍卖成功!江苏南通一处197平住宅192万成交!
- 购房置业|农村建新房就选这套四层别墅,占地100多平,8间卧室人人都有地睡
- 书房|讲真,这是我见过的最完美的边户,没有之一!
