这块基地面积将近500平米。卢先生跟我们强调的是想要一个一层住宅,他不喜欢爬上爬下的感觉。这么大的基地面积,也让设计师有足够的设计空间,来满足业主内心的那匹野马--醉心驰骋,何需登高。

尺寸面宽22.5米进深21.2米建筑面积252.0㎡项目概况
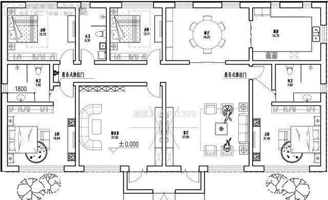
【 别墅|一层新中式别墅,双入户门,房间均能采光,屋檐外挑,简单大气】
△总平面示意图基地情况:东:邻家住宅西:邻家住宅南:村内道路北:村内道路项目简介:这块基地面积将近500平米。卢先生跟我们强调的是想要一个一层住宅,他不喜欢爬上爬下的感觉。这么大的基地面积,也让设计师有足够的设计空间,来满足业主内心的那匹野马--醉心驰骋,何需登高。平面布局户型概况:1层/4室2厅3卫1厨1影音室1门廊

△一层平面图双入户门,能独立入户且相互贯通,打开不同的户门便是代表了不同的心情,与家相处的体验也变得细腻丰富起来。一条走廊解决所有交通问题,精简通达。所有房间均能采光,南北门窗洞口贯通,气流顺畅。造型设计

△南侧效果图

△西南侧效果图为了凸显新中式的简单大气,屋檐采用富有层次感的外挑。配色采用黄色真石漆与红棕色线条的搭配,加以文化石勒脚点缀。屋顶采用四坡五脊的形式,与宝蓝色瓦当结合,一气呵成。

△东南侧效果图

△西北侧效果图没有挺拔外露的形象,功能的丰富,院落的惬意,都融入在日常的使用体验里。轻松愉悦的田园式回家体验,雅奢内敛的立面处理,将注意力集中在使用者的生活情调表达上。

△庭院效果图一

△庭院侧效果图二日光洒射,影壁相对,营造出一处静谧的身心归处,酌一杯暖茶,感受阳光,茶香,听风,闻雨,以雅客的姿态,观园林之意境,寻文人之精神,体会诗意生活之美好。
推荐阅读
- 饱和度|173㎡轻奢新中式,古典和现代的碰撞,唯美浪漫!
- 建房子|面宽11米, 进深16.5米的农村三层别墅, 前后有花院还带车库, 完美!
- 别墅|参观亲戚上海的豪宅,别墅硬是住成农村房,真是糟蹋了好房子
- 灵魂深处|全屋定制案例|儒雅新中式,展现灵魂深处的东方情怀
- 购房置业|农村建新房就选这套四层别墅,占地100多平,8间卧室人人都有地睡
- 别墅|土豪农村盖大别墅,人人羡慕,如今却成为全村人眼中的大笑料
- 别墅|买不起别墅,买了一楼带30㎡院子的房子,入住两年多,后悔了吗?
- 贵州|利落挺括,12×11米现代二层别墅,4卧2厅好格局开启全新生活
- 北碚|重庆北碚高端别墅群,数量众多依山而建,满目疮痍好比世界末日
- x2|三层现代风格别墅 140平米,清新脱俗,是当下年轻人最喜欢的设计
