本方案是150平米复式户型围绕现代简约为主题,一对夫妻一家四口常住,两个女儿房子,偶尔父母亲会过来,主人比较喜欢简约设计元素混搭。相互结合,相交融。简约主义给人的感觉就是极尽简单,但是非常宁静、和谐。所以在色彩的运用上要,不能选择太多的过于繁杂的色彩,要尽量保持色彩的大体统一。
客厅也叫起居室,是主人与客人会面的地方,也是房子的门面。客厅的摆设、颜色都能反映主人的性格、特点、眼光、个性等。客厅宜用浅色,让客人有耳目一新的感觉。

【 户型|150平复式四居室,简约设计元素混搭相互结合,相交融】客厅是因布局的变化,导致客厅上方有一道梁,设计通过吊顶的造型做处理,再用艺术吊灯,主人品味的象征,体现了主人品格,地位,也是交友娱乐的场合

主卧做了一个套间设计,卧室作为休息空间,一些静好幽静是设计师的设计理念。

餐厅是采用艺术吊顶,利用过道空间做一个宽敞的用餐空间,虽然不能让空间变得敞亮,但是做得大而顺畅。
卧室里挂什么画最好?只要不辣眼睛都可以,人像、几何、植物,都是永不过时的元素,甚至你可以用自己拍摄的作品,稍加装饰就可以让整个空间更具个人特色,也让人更有归属感。所以不用纠结卧室挂什么画好,装修时可是有很多的选择的。

电视背景墙采用爵士白仿大理石砖,既简单又大方,配上顶部照下来的灯光,整个客厅家具做点缀提升起来。

进门看到卫生间门做了隐形门的处理设计,做了一个玄关设计。解决进门正对卫生间门的问题,关键是要解决了无门厅之尴尬。

书房采用整排书柜,提升整体的文化底蕴。也可在朋友来游玩之时可以更好地融入整个空间设计,增加休闲的气氛。
儿童房装修应该以孩子的健康成长为宗旨,所以要隔音也要考虑到给孩子足够的成长和活动空间。但是一定要选择环保型的装修材料,而家具在棱角方面的处理也一定要注意。风格上来讲儿童房可以装饰的活泼一些,所以在色彩的选择上可以选择鲜艳一点,也可以先咨询一下孩子的意见。

沙发背面用大理石吧台做背景,让吧台休闲和客厅融为一体。

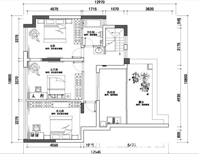
户型图,原始结构图,平面布局图二楼

户型图,原始结构图,平面布局图一楼
推荐阅读
- 屋主|56㎡小户型老房改造,小而美的设计!
- 卫生间|129平现代美式三居室,打造出一个舒适又温馨的美式家
- 三居室|118平现代风三居室,一个简单而纯粹还原生活色彩的家
- 郑州|买房月供曝光!郑州最新平均工资8694元,撑得起房贷么?
- 小户型|发现丈夫赠人房产 妻子怒讨买房款
- 石家庄|144平的面积,无人值守棋牌室,这是如何做到的?
- 卫生间|什么才叫好户型?来看看这5个标准,你家房子符不符合?
- 简单感|现实的平衡取舍,才是生活之道!143平现代风格设计欣赏!
- 她家148平米,进门就被玄关迷住,不做吊顶跟背景墙,阳台超漂亮
- 修建|精选10套三层户型图纸,占地面积均不足百平,尤其适合新农村修建
