今天分享的是一套建筑面积125平米的现代简约风三居室案例,设计师以复古的绿色搭配大理石、黄铜元素,来营造出一种文艺、轻奢的格调感。很喜欢这套案例当中的主卧室的床头背景墙,迷雾森林加上壁灯,让人感觉非常好看。
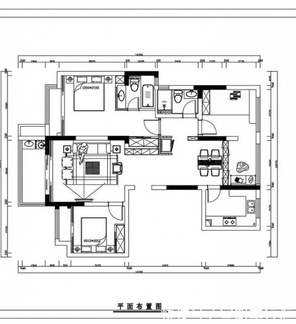
平面布置图
入户门对着墙面,设计师在这做了端景台加鞋柜的组合式设计,白色的柜子搭配黑色的搁架,再加上多彩的绿植图画,让人感觉很有格调。
位于入户门一侧的是客厅空间,客厅的电视背景墙做了满墙的定制柜设计,电视周边的空间选择了黑色调,让电视背景墙的层次更为分明。
而沙发背景墙是延续了整体的复古绿色,皮质的沙发搭配大理石加金属的茶几,一个多彩的脚凳作为点缀,整个客厅的元素丰富却又不杂乱。
餐厅和厨房空间位于入户门的另一侧,两者之间用玻璃推拉门作为隔断。餐桌椅也是大理石加金属的款式,软包的布艺坐垫让人感觉更舒适,墙面还做了镜子扩大空间视觉感。
厨房内部的空间还是比较宽敞的,U字形的橱柜布局方案带来更短的厨房动线,也拥有更多的储物空间,橱柜转角做了弧形搁架的设计,既安全又实用。SHAPE * MERGEFORMAT主卧室的床头背景墙是铺贴了迷雾森林图案的壁纸,两侧对称的壁灯也给卧室增色不少。卧室内的飘窗加上了抽屉柜,让储物空间更为充足。
主卧室内的卧室和卧室之间选择了用玻璃加半墙作为隔断,通透的设计让空间更显宽敞。灰色调的大理石和白色的浴室柜结合,带来简洁大方的感觉。
次卧也被作为一个工作区来使用,设计师在靠窗的位置做上了长书桌,榻榻米加上衣柜的组合式设计,让空间被有效的利用起来。
在次卧内还有一个迷你的阳台空间,屋主在这里摆放一个复古的休闲桌椅,搭配侧方的到顶储物柜,偶尔在这里晒晒太阳、看看书,想必也是非常惬意的事情。?
推荐阅读
- 屋主|56㎡小户型老房改造,小而美的设计!
- 地板|160㎡四居室,玄关比我家卧室都大,这才是真正的低调奢华有内涵
- 床头柜|95后姑娘的“穷装”卧室火了,环保又精致,软装的力量真强大
- 限购|哈市125家房企将列入重点监管范围,详细名单→
- 小房间|参观140㎡大婚房,朋友都夸餐边柜有档次,我却更喜欢主卧的飘窗
- 买房|二手房指导价意义非凡,主要有这4点,想购房的来看看
- 宋智雅|不只穿假货!宋智雅豪宅全是租的,公主风奢华住所都是TA在出钱供
- |龙吟师傅教你在卧室找到自己的桃花位
- 垃圾桶|家庭主妇:厨房地柜不要全打满,空一格更实用!后悔我家装太早了
- 银行|如果出现大规模的房贷断供现象,银行和业主将两败俱伤
