作者:木木装修笔记
家传递了屋主对生活的感知和体悟。温柔与安静的屋主,将这里化作一个温柔的灵魂居所,用法式浪漫衔诉了自然主义的核心:实用且舒适。

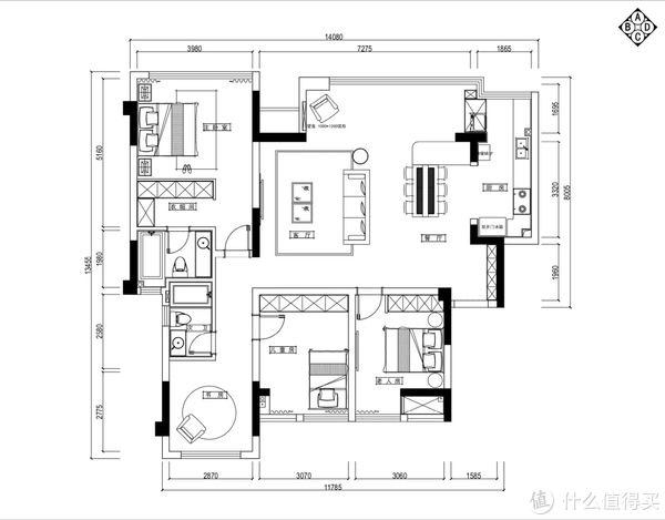
房屋信息
- 房屋坐标:重庆
- 户型面积:128
- 装修风格:法式自然风
- 户型格局:四室两厅两卫

整个空间被奶咖色系贯穿,圆弧吊顶和拱门将温柔的情绪沉淀,法式小浪漫的惊喜跃然眼前。原木与布艺,将温柔进一步量化,化作安静的代名词放置在这里。暖灰色的乳胶漆墙面给人以舒适和放松的气氛。这样的小家,把对生活的每一份温柔与耐心,氤氲在每一寸细致空间里。
装修点解析【 装修|全案分享第二期:自然主义里的法式浪漫风装修】

客厅打通阳台,风格统一空间显大

每一个大横厅都必须配上大阳台,才算完整。将阳台收入客餐厅空间中,并将设计风格统一。小阳台上保持了温柔法式风,与客餐厅融为一体,空间上显大不止一倍。

客厅阳台区域用人字拼实木地板通铺,温润的木质地板陪伴着阳光,日子被舒适和温暖浸润。阳台封窗做了整块大玻璃的落地窗,光线通透而且视觉效果更优秀。拉上白色的梦幻百叶纱帘,光线变得柔和,将法式风的温柔感衬托地淋漓尽致。

阳台门洞做了拱形设计,与阳台内的拱门造型壁龛一呼一应。壁龛下面放了一把木质的半躺椅和黑色铁艺落地灯,经典的法式元素运用地恰到好处,慵懒随性的自然感流露出屋主的生活态度和处世之道。
无电视客厅,按需装修更合心意

客厅一定需要电视机吗?答案是未必的。随着时代的发展,我们的娱乐方式越来越多样化,看电视这项活动在我们生活中的比重越来越小,电视已经不是必要的家电了。居住需求的变化,导致客厅的形态更加多样化了。

秘书布艺单沙发,搭配厚重的同色毛线地毯,黑色铁艺茶几有种沉稳的浪漫氛围。客厅在这里更像是一个可以半躺着,点上木质味的香薰蜡烛,播放一曲自由舒缓的爵士乐,放松灵魂的小憩空间。
餐桌连接开放式厨房,设计感满满高级

厨房其实不算严格意义上的开放式,门洞依然保存着,只是没有安排移门之类的隔断。既保留了开放式厨房的通透感,又有一点和谐的私密感。
厨房里安装集成灶和洗碗机,精简空间的同时功能性实现最大化。13套洗碗机可以容下所有餐具以及锅具,节省了不少做家务的时间和精力。集成灶在这里很合适,因为烟道在右边,所以既不会浪费地柜又可以让吊柜整体性更优。集成灶的下柜是蒸烤一体的,对于酷爱制作西餐的女主人来说,拥有一个容量巨大的烤箱简直是太方便了,不管是制作烤菜、还是烘焙甜品都用得上。而且蒸烤箱还独有蒸汽嫩烤功能,烤鸡烤羊排会更嫩更好吃。
推荐阅读
- 装修|乔迁新房3月以泪洗面!当初的不理智,连犯15个极品装修坑!作孽
- 装修|淋浴房还可以坐着洗澡,一开始很不理解,装修后才发现太实用了!
- 施工者|不管家多大,装修时做好这12处细节,美观与舒适并存,幸福感提升
- 心塞|5个月装修一套房,硬装让我喜出望外,结果家具一上全废了!心塞
- 装修|空调外机万万不能这样挂墙,若不是师傅提醒,我家都装错了!
- 洗头|崩溃现场:装修的10条坑,我都替你踩扁了,请你一定要避开
- 抽油烟机|婆婆抠出新境界,5万装修婚房还带家电,如此寒酸真让人不想嫁了
- 房子|越来越多人用这“两个方法”装修房子,可升值十几万!
- 卫生间|房屋装修6大暗坑,哪个踩了都会导致返工,希望你没踩到。
- 木纹板|装修案例欣赏:小北欧风格的居家设计,简洁的同时又不失温馨感!
