露台|两层现代别墅,自带阳光房和大露台,更让人心动的是最美庭院
基本信息建筑面积:388.7㎡基地面积:390㎡建筑尺寸:15m×20m占地面积:245㎡户型概况:4室2厅4卫1厨3衣帽1阳光1茶室1工艺1储备1书房建筑结构:砖混结构参考造价:58万元(不包含室内装修费用)别墅设计:简约时尚现代别墅,庭院美景让全村人羡慕。
业主一直都不想在城里买房,于是就把家里的老楼房翻新,好让父母住的也比较舒适,业主追求时尚大气感,最终就决定把建筑定为现代风格别墅。
建筑俯视效果图
建筑整体为现代风格,造型相对比较简单,外立面选择文化石、偏灰色的石材和白色真石漆作为主体,使整个别墅更加的大气时尚。【 露台|两层现代别墅,自带阳光房和大露台,更让人心动的是最美庭院】
房屋设计为平顶,为了使立面造型看起来更加的时尚符合现代感,二层露台处的石墙围栏与墙相互呼应,使得建筑有了起承转合。
建筑二层有个露台的设计,闲暇时间露台上喝喝茶聊聊天也是一种十分惬意的生活。两层现代别墅,自带阳光房和大露台,更让人心动的是最美庭院。
建筑院门采用木质门,门上的纹路也符合现代感,让人感觉很有特点。
庭院里最特别的是阳光房,整体都被玻璃包围,即使是在下雨天也可以坐里面休息。
阳光房外再设计了一处休息地,使用碎石遮挡,使休息地也有私密性。
院内植物以颜色各异的树木为主,配合一些竹子和其他小型绿植,以留白和错落的布置在随性中让庭院景观融为一体。
庭院给人一种很开阔的感觉,简单的装饰与建筑主体简约的线条和造型相互衬托,风格的近似让建筑和庭院相辅相成。
建筑正立面效果图
建筑左立面效果图
建筑右立面效果图
建筑背立面效果图
一层主要用作老人房和公共区域。餐厅与客厅相连,开阔的划分方式让客厅仍能享受到景色的美好。老人房做成套间形式,并与楼梯相邻,尽最大可能方便老人日常使用。
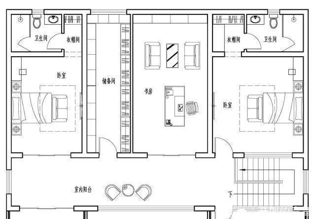
二层有两间卧室,都带有衣帽间和独立卫生间,满足一家人的居住。书房设计的较大,室内阳台也是欣赏美景的最佳位置。
推荐阅读
- 现代风|168㎡现代风,带着浓郁的归属感与愉悦感
- 饱和度|173㎡轻奢新中式,古典和现代的碰撞,唯美浪漫!
- 背景墙|97㎡现代风,以时尚打造空间,以新颖突出特点
- 购房置业|上海女子拍下对楼住户家无敌露台,超大空间网友酸了:买房送操场
- 卫生间|129平现代美式三居室,打造出一个舒适又温馨的美式家
- 三居室|118平现代风三居室,一个简单而纯粹还原生活色彩的家
- 简单感|现实的平衡取舍,才是生活之道!143平现代风格设计欣赏!
- 轻奢风|什么样的生活空间,才算得上是美好现代轻奢风,大道至简
- 楼盘|现代·森林国际城|仙北新拍现场图片,实时了解楼盘新动态
- 贵州|利落挺括,12×11米现代二层别墅,4卧2厅好格局开启全新生活
