平层|和盈观海户型怎么样?都有多大面积的?
住的舒不舒服,户型设计尤为重要。普通户型的标准就是方正通透、动静分区、干湿分离、尺寸合理,但若好的户型更能给购房者极致舒适的体验。据了解,和盈观海由国企四建开发建设,专注于产品的雕琢,会带来什么惊喜?运城和盈观海户型怎么样?
和盈观海,运用“铝板幕墙、LOW-E三层双中空玻璃”的材质组成,构筑极具现代艺术感的流线立面,使整栋楼宇设计更加轻盈剔透,富有肌理和质感。在户型打造上,以奢阔、通透、舒适、灵动的空间理念,打造更符合当代运城家庭需求的品质居所。
和盈观海户型面积142-297㎡环幕大平层,揽境约5000亩禹都公园一线湖景。
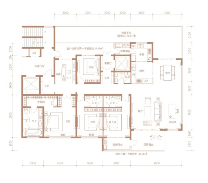
建面142.24㎡三室两厅三卫户型
南向三开间,光影空间,270°视角远眺湖海,约9m环幕露台设计,IMAX级观景视野。
建面296.52㎡五室两厅双卧四卫户型
豪华主卧套房,南向连接约14㎡大露台;超大星空双阳台设计;南向四开间、三房设计,赋予其方正户型格局;私家电梯入户,专属配置,出行自在。
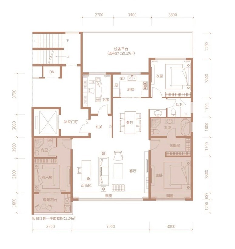
建面187㎡环幕平层四室两厅两卫户型
约14.3M南向三开间设计,双套房空间设计,为空间注入更多对于家和生活的深刻理解。主卧空间有序兼容衣帽间、卫浴、星空飘窗,享观景视野,拥抱湖光静谧。
【 平层|和盈观海户型怎么样?都有多大面积的?】不负久候,和盈观海户型约142-297㎡环幕平层认筹即将盛启。
推荐阅读
- 对象|廉租房和公租房的有什么区别?
- 饱和度|173㎡轻奢新中式,古典和现代的碰撞,唯美浪漫!
- 客厅|参观向华强和陈岚的豪宅,房子层高太矮了,住着不压抑吗
- 武汉市自然资源和规划局|确定了!白沙洲将新添一所高中
- 净利率|低盈利质量、票据违约,中南建设怎么了?
- 房价|100万存款无房产和100万房子无存款相比,谁更幸福?
- 房子|退休以后当“包租婆”,该庆幸还是后悔?答案或许和你想的不一样
- 地产|宜和宜美与金科服务强强联合,创造“定制精装房”新赛道!
- 二手房|拖垮你的不是高房价和高压力,而是鸡毛蒜皮,不拘小节,更自由
- 万科|看了塔吊安装和拆卸的费用,难怪烂尾房开发商直接跑路啥都不管了
