新家|终于入住新家了,晒晒,花20万装修,效果美极了,全家都满意!
终于入住新家了,忍不住晒晒,花20万装修,效果美极了,全家都满意!新房是120多平的三居室,从装修到入住,花了差不多近半年时间,主要是通风时间,稍微长一些,就算装修再简单,使用的材料再环保,也避免不了甲醛,所以为了健康,还是多晾一段时间,大家说呢。新房装修,一共花了20万,包括全部家具、家电等,都算在内,还算相对实惠的,因为很多东西也确实不便宜,以下先来晒晒效果,看看如何。
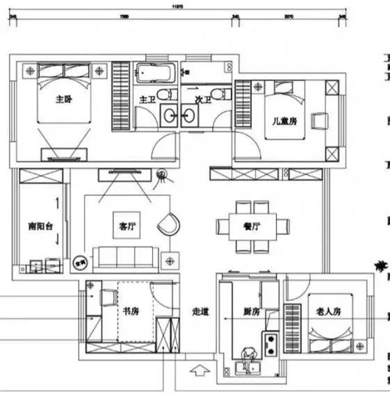
平面图
【 新家|终于入住新家了,晒晒,花20万装修,效果美极了,全家都满意!】玄关
先来看一下,新房一进门玄关区域的装修设计,首先地面铺瓷砖,菱形铺设,颜色相间搭配更美观,相较于客餐厅木地板来说,更耐用,也更容易清洁。然后在走廊一边墙壁上装了嵌入式鞋柜,紧邻着书房。另一边是厨房,与餐厅之间的墙壁,是装了一扇窗户,更通透明亮。
厨房

厨房装的是通透的玻璃推拉门,省地方也通透,就是有一点值得注意,厨房在玄关区域,且是透明玻璃,这样一来厨房肯定需要经常清洁,保持干净整洁的效果,不然挺容易凌乱的,给人留下不好的印象。厨房里面,空间不大装满柜子,超实用,看着也不压抑。
餐厅
这是餐厅,这边有大大的落地窗,视野开阔,光线通透,亮堂无比,餐桌椅设在这里,不需要太多饰品装饰,都是很美好的感觉。在一边墙壁上,也有装餐边柜来满足日常收纳需求。餐桌桌面,选择的也是容易清洁的材质,方便极了,最适合家用。
客厅

这是客厅,空间不大,布置得也极为简单,都是一些日常必备家具,看看这沙发体型不大,舒适性不差,客厅连茶几都没设,就为了能让地方看起来显大。对于客厅背景墙来说,沙发墙简单,挂画装饰,电视墙就丰富很多了,漂亮的图案,看起来生动又自然,两边的盆栽装饰,也让居室更多一些绿意,挺喜欢这简单,却很有氛围的感觉
阳台

客厅阳台,是装了玻璃推拉门的,这样划分开来,对两个区域来说,都极为方便。要是觉得光照太强的话,可以把轻薄的纱层窗帘拉上,这样不挡光还通透。阳台是洗衣晾晒的区域,一端设有洗衣机,洗手盆,这样使用起来,也方便灵活一些。
卧室
这是主卧,专门买了超舒适的床,床靠背柔软极了,这对于睡眠质量的保证,都极有帮助。背景墙上有装挂画、壁灯,这些既有装饰,还有照明,同时也丰富了这简单的墙壁。看着效果不错呢,因为空间小,家具也都简单实用一些。
这是主卧卫生间,地砖看着有没有很特别呢,让单调的卫生间,更多了一些特点。主卫装了大浴缸,方便泡澡,洗手台、马桶及浴缸,都是紧挨在一起的,使用起来多少会有些影响,不过这也是最好的方式了。
推荐阅读
- 大悦城|家里这两个地方别漏了贴瓷砖,许多人为了省钱,入住就后悔了
- 装修|总结我的新家装修完就后悔的37条防坑经验!记住少走弯路!
- 亮点|等了6个月终于能晒晒新房了,都挺满意的,客厅是最大的亮点
- 别墅|买不起别墅,买了一楼带30㎡院子的房子,入住两年多,后悔了吗?
- 明贴|房子装修一定要装这几样东西,好多人没听劝,后悔入住才察觉
- 杭州|专家:生育率低是年轻人结婚成本太高!终于有人说到点子上了
- 校地|“拎包入住”!四川大学院士公寓交付使用
- 填缝|新房入住5天没合过眼,这9处全部装错了,钱也没了房也毁了
- 洗碗机|厨房装修不要买这两种电器,入住后就知道有多不实用了
- 顶式|厨房这3样东西选择对了,基本就万事俱备,入住使用轻松方便
