李文伟|把有限变为无限,让空间拥有多样可能,营造一个多变的二人世界
把有限变为无限,让空间拥有多样可能,营造一个多变的二人世界
一个45平方米的家却需要有90平方米的储物空间才能满足业主的需求。一个狭小的客厅但是需要容纳下一个55寸的大电视。一家两口人但是需要独立的餐厨区。看设计师如何巧施魔法,把一个45平方米的空间变身成一个三倍的大空间。
房屋户型
:一室
房屋面积
:45平方米
装修预算
:20万
所在城市
:四川 成都
设计师:
李文伟
主要建材
:线板、木皮、喷漆、大理石、黑铁漆、铁件、玻璃、木地板、壁纸
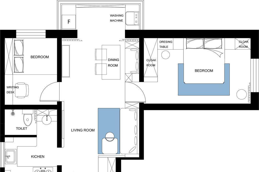
【户型图】
其实房屋户型还算是比较周正,只是整体面积比较小,没有较多的空间留给设计师改造,所以只能从结构上先下手,通过位置的转变巧妙地构建出多重的空间。也把空间动线进行了整合,打造出小户型中的翘楚。
【玄关】
设计重点:用木色做引申
玄关改造之后选用了木质的隔断代替墙体,这样在确保空间独立的基础上,也不会造成视觉上的拥堵。虽然玄关面积小,但是玄关柜还是分出了大容量的衣物区和鞋子区。这样不仅方便存放还可以减少家务的压力。
【客厅】
设计重点:隐藏式设计提高空间利用率
因为面积小所以家具大部分都是专门定制的,客厅的整面收纳柜不仅可以满足储物需求,还把客厅和餐厅紧密的连接在一起。卧室的门也恰到好处的隐藏在里面,如果不仔细找丝毫看不出它的位置,也让空间多了一丝趣味。
储物柜中间做出了卡座区,不影响收纳功能还能充当餐厅的餐椅。平时不论是吃饭还是休息都可以在上面舒服的就坐。软装上则是侧重使用中性色,巧妙地散落在客厅的每一个角落里,相互呼应又不失各自的风格。
【厨房】
设计重点:U型布局确保空间足够开阔
厨房的U型布局让空间动线更加合理,在操作使用的时候减少了很多不必要的走动。定制的蓝白色橱柜可以增加大量的储物空间,大型家电也可以嵌入在里面,实用又不失氛围感。中心位置保留的小窗确保了厨房的采光,关上厨房的门也能足够的明亮。
【餐厅】
设计重点:和自然美景融为一体
餐厅紧靠客厅的阳台位置,利用窗外的自然风光做点缀,营造出一种温馨浪漫的就餐氛围。卡座周边的木元素更加烘托出空间的清新质感。
卡座旁边的展示柜就可以收纳一些生活物品也可以作为酒柜存储美酒,夜晚来临点上蜡烛,倒上一杯美酒,享受一下难得的二人世界,再忙碌的日子也会充满情趣和欢乐。
【卧室】

推荐阅读
- 置物区|全屋定制柜子时,记得把这3个柜子做到位,钱不白花用着也舒服!
- 马桶|把洗手台埋到墙里,卫生间一下变大了很多,美观又实用,好处多多
- 插头|老公花了100块钱把家里插座装成这样的,再也不用拔插头了,真是太机智了
- 购房置业|夫妻俩大胆改造老房,坚持把3房改为1房,过于舒适了
- |工地烂尾了,开发商为什么不把塔吊撤走?还要继续给租赁公司租金吗?
- 玄关柜|房子再小也要把这7个地方装上柜子!比多买一间房都值!
- 阳光房|越来越多农村人把露天院子封闭成阳光房,农村又一景,美观又实用
- 书房|成都80平三室之家,一体式餐厨设计,仿佛把日剧场景搬回家
- 画堂春|《画堂春》22首:寒风总把老枝欺,栖乌何故声啼?
- 阳台上|装修时当“甩手掌柜”可不行,这5处细节,再忙也要去把关验收
